纵观当下居住需求的改变。人们从“有房住”步入“住好房”的选房时代,建筑已经不再是简单的空间,而是承载着仪式感与温度的家。
尤其是豪宅产品,正在进行深度和快速的迭代。在改善户型175㎡这个量级,户型已经发生很大的变化,房间数量、尺度、私密感等等都有了很大的改善。
下面来看看搜建筑挑选的几个175㎡户型,都有哪些亮点。
南宁万科瑧湾悦项目全板楼设计,户型极为讲究纯粹,起步面积便是175㎡。建面约175㎡瑧系大平层,两梯两户的设计,做到电梯直达入户,再进入玄关,做到双重礼序的仪式感与尊贵感。层高约为3.15米,也是豪宅的标配。
本户型提出一个空间“关系场”概念,公区LDKG一体化1.5厅的奢阔设计,实现「家庭聚场」这一全新的交融与关系处理。搭配南向阳台,让外界的景观、阳光与室内交互。

如此公共空间既容得下主人与客人的开阔社交,也放得下家人与个人的细腻温馨,亲密且独立。多触点互动的空间格局,实现家庭的高质量陪伴。
建面约175㎡户型样板间实拍图
大平层虽然在空间形式上,更容易让人产生互动和交流,但并不意味着每个人都因此失去了独立的生活空间,建面约175㎡的户型做到了4房双套间设计,进一步可全家交流,退一步可互不干扰,可以满足各类功能所需,让居住者更自在、更便捷。
万科瑧湾悦的建筑整体采用现代风格,强调简洁清晰的体块关系,非常有辨识度。建筑外立面采用的是清晖月色,形成了以低饱和度色系为主的建筑色彩体系。
西安枫林九溪·漪溪主力户型为建面约175㎡和建面约235㎡,今天来看一下建面约175㎡户型,四室两厅三卫的纯改善大平层产品,两梯两户,具有独立入户前厅,承接内外空间,让出入更具安全性与私密感。
此户型尺度阔绰,户型全明,整个户型南向面宽约15.6米,在四面宽朝南的基础上,实现客厅的南北通透,带来明亮舒朗的空间享受。
主人房带独立衣帽收纳空间+卫浴空间,从功能到享受,每一个细节都满足改善客群的生活理念追求。客卫是三分离卫浴间,让生活更舒适从容。
▲项目效果图,具体以交付为准
项目建筑立面采用国际流行的简约主义风格,以冷暖色彩搭配,呈现出简约、整洁、大气的城市封面感,彰显品质人居通透感和层次感。
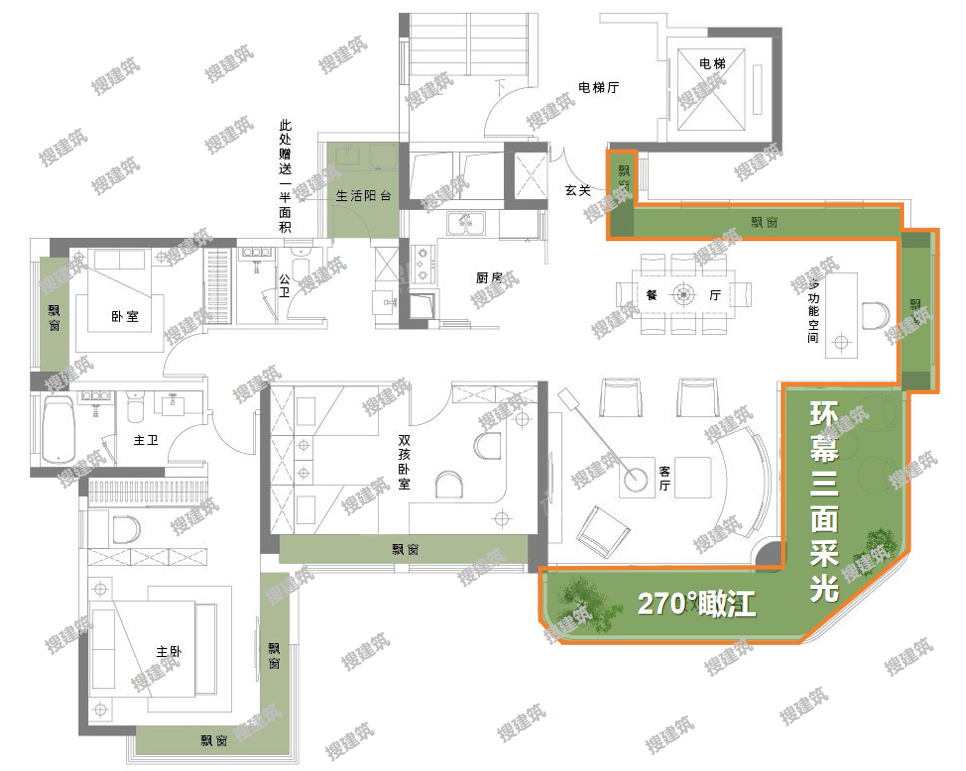
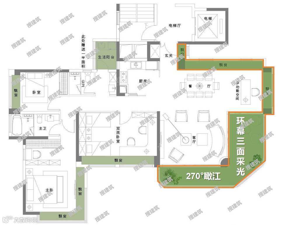
佛山城发·高明壹号从效果图看,11栋高层住宅呈V型排布,只为实现户户望江,让家家享受270°巨幕江景。

▲建面约175㎡户型示意图
建面约175㎡户型,设计令人叹为观止。该户型拥有超大面积采光,有一南L型转角阳台、一北生活阳台,全屋飘窗设计,提升采光与实用性的同时,还升级了整体的空间感。
其中“LDKB+X ”超大边厅,形成约74㎡的超大社交空间,满足家庭聚会、商务私宴等多种场景。“X”空间,可以作为书房或茶室,享受一方静谧和安逸。

公区实现了超强大的三面采光,环幕大面积采光,打破空间界限,实现270°瞰江。餐厅超大飘窗与客厅观景阳台实现南北对流,让整个公共空间清爽明亮。
除了公区之外,豪华主卧套房也同样设计了L型环幕转角飘窗,大面积飘窗拉伸景观视野,实现270°瞰江,让生活的每时每刻,都浸润在阳光清风中,让居住舒适度大大提升。
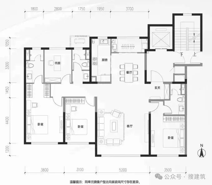
南宁中国铁建西派御江项目有两个175㎡的户型,各个都很精彩。
第一个建面约175㎡户型,四房两厅三卫布局,最吸睛的是超大尺度的LDK空间,客厅、餐厅、开放式中西厨房组成的动区面积达到将近50㎡,形成一个通透性、可视性、互动性更强的开放空间,构成家庭的核心区域。再配以罕见的超12米长L型宽幕阳台,犹如空中庭院,约270°环幕窗景,四季美景俯首可得。
南向约35㎡酒店式套房,约4.5m超大开间,拥有独立衣帽间、独立卫浴间,男女主人能同时拥有自己的空间,主卫设置浴缸+淋浴+双台盆+马桶5件套,比肩五星级酒店套房的奢适格局,让生活更加从容。

▲建面约175㎡户型示意图
此户型是南北双宽幕阳台设计,北向生活阳台,装的是家庭的温暖,私密温馨;南向宽慕观景阳台,阔景视野,引风光入室,使得空间更加通透明亮舒适。
约57㎡一体式客餐厅,聚会、待客、娱乐皆游刃有余,餐厅贴心设计西厨岛台,将整个空间更好的融合在一起,西厨中岛,让厨房更能融入进客餐厅。
双套房豪华主卧,奢华享受。双套卧的设计让家庭成员各自有天地。约28㎡星级主卧套房,奢享独立卫浴、衣帽间。
建筑外立面的线条是南宁的超宽公建化立面,堪称南宁豪宅盘的“高颜值代表”。
绿城·馥香园建面约175㎡户型,创新的将客厅公共设计在边侧,约7米的超大阳台与客厅餐厅融合在一起,使之公共空间宽阔明亮,也带来了更宽的瞰景视野。
三开间卧室朝南,让居住生活惬意舒适,其中两个卧室带有飘窗,一个卧室为大阳台,更确保室内能拥有良好的采光,同样也减少面积浪费。
项目外立面沿用绿城经典的铝板+玻璃幕墙,一脉延续绿城经典的现代简约风格立面造型,具有极高的美观度和识别性。

▲项目效果图,具体以交付为准
项目容积率低至2.1,项目设计由知名设计机构大象设计(GOA)操刀,唐中汉等豪宅设计团队加持。
总的来说,这几款建面约175㎡户型颜值更高、功能更强、居住体验更佳。
随着城市居住形态的不断升级,人们对美好空间的追求也在同步迭新。家的空间没有标准答案,产品力还没有跟上的房企,必须要抓紧了。
2.本资料为要约邀请,不视为要约,所有政府、政策信息均来源于官方披露信息,具体以实物、政府主管部门批准文件及买卖双方签订的商品房买卖合同约定为准。如有变化恕不另行通知。
3.因编辑需要,文字和图片无必然联系,仅供读者参考

合作、宣传、投稿
联系微信:soujianzhu006