第四代住宅(生态立体楼盘)
专题考察+房企论见会
【中国 · 福州】

福州,第四代住宅的全国领跑者,在各方面累计了大量的落地经验,在此,搜建筑特别邀请业界大咖,为大家分享落地过程中遇到的问题与解题思路。
搜建筑携手国贸集团、尚恩设计、北京柏涛与参会董事长/总裁,通过楼盘案例,分享、探讨第四代产品现在如何落地实施,如何通过设计赋能产品力升级、助力企业发展。

分享会亮点:
一、第四代住宅:政策与设计要点
二、第四代住宅:操盘落地经验
三、红盘背后的解题思路
四、立体生态住宅创新设计理念
分享会嘉宾:

二、第四代住宅丨实地考察 | 七大精品

七大精品考察+董事长论见会
报名+咨询

咨询微信:soujianzhu03
咨询微信:soujianzhu008
2、联系电话:18132657351(微信同号)
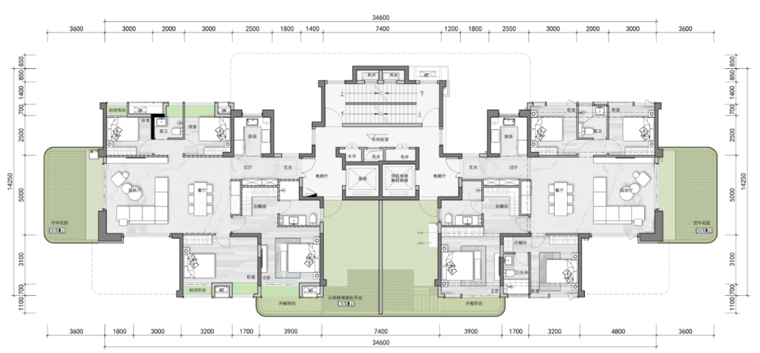
榕发•誉湖郡
建筑设计:福州市建筑设计院
榕发誉湖郡将别墅的院落搬到空中,创造一个“上有天、下有地、前有庭、后有院”的高层住宅。
社区共有8栋两梯两户主楼,南北各4栋,中间为39米X170米中央大花园,是区域拥有临湖景观且自带中央大花园的高端社区。
项目采用大组团式规划,小邻里式空间组合方式,每一栋住宅都采用风雨连廊连接且串联至社区主入口大堂。连廊整体形成环状形式,总长约400米,宽约2.5米,净高约3.3米,门厅空间廊宽放大至6米;

社区大门采用星级酒店的设计风格,人行主入口广场设计有迎宾水景,以灵动温婉的姿态迎接业主归家。

每户超大公共平台与空中花园,奇数层是南公共平台与南空中花园组合,偶数层是北公共平台与北向及山墙向空中花园组合。

▲ 项目效果图
采用钢结构外饰金属饰面,整体形象高端;连廊衔接段采用折线形式增加空间趣味性,满足小区业主全天候的休闲娱乐。

▲ 项目效果图
项目产品有180、160、140三个面积段,其中180、160两个户型为独梯独户形式。产品设计注重空间格局、室内采光、奇偶层隐私等需求。


▲ 户型示意图
超大公共平台与空中花园
空中花园绿化率达到60%,公共平台绿化率达到40%,采用自动化灌溉系统,确保绿植常年水分充足。

三木•乐府
设计单位:尚恩设计
三木乐府,作为长乐首座第四代住宅,相较于同类产品,在社区立面的设计、户型空间尺度、露台设置的均衡性及户型利用率上全面提升,为城市的人居方式进行了彻底的迭代更新。


示意图,仅供参考
以建面约170㎡偶数层户型为例,做到了大别墅才有的“爽点”。五开间朝南,采光率更高,生活起居面面向阳。四房两厅三卫,南向双主卧设计,独占空中景观,这也是奢宅的无形资产。



第三方装修建议效果图,不作为装修方案承诺
榕发•麓里云筑
设计单位:尚恩设计
榕发深研人居未来发展趋势,以独木成林的顽强基因赋能第四代生态住宅,突破豪宅规制,倚生长之势繁衍的柱状建筑元素,打造层级丰富的建筑形象,为福州第四代生态住宅打开新局面。


▲ 项目效果图
在初稿的基础上,立面竖向造型线脚避免过多出现对称阵列感,强调整体造型树形生长之意,使得建筑整体更加灵动写意。其次,在此基础上又将立面竖向造型线脚结合分户墙简化,在营造树形自下而上生长的同时也注意避免对住户在空中花园的居住体验。简单几笔树干树枝的勾勒也更显简奢大气。
在基本体块的基础上叠加奇偶层270°环绕景观全景露台形成住宅标准层,并引入多层次垂直绿化形成空中花园景观。取树形生长之意,米白色主造型线脚如同树干向上茁壮生长,枝干向左右不断延伸形成整体生命树整体形象,再添加咖色线条及其余造型细化形成最终建筑立面造型。
▲示意图
通过对市场上已经出现的第四代住宅方案立面的分析,决定将屋顶造型拉通,造型更整体,山墙面竖向线脚造型简化,增加住户空中花园生活体验。

设计回归传统人居理念,利用270°环绕景观打造错层全景露台,奇偶层露台错位,形成通高院落及多维度的城市上空森野谧境。露台通过使用弧形精工化建筑线条及通透天幕玻璃立面,增加建筑的流畅感和未来感,打造奥体片区独特IP标杆形象。

设计通过灰白色的建筑底图与立体生态空中花园交相辉映,彰显“第四代住宅”独有气质。高耸入云的树形装饰立柱成为塑造空间的重要要素,也是对屋顶的承托,横向白色线脚的“树枝”造型柱向两边生长不断延伸,贯穿楼层的玻璃栏杆如同在枝干上繁茂生长的枝叶,再通过香槟金色金属线条的点缀勾勒共同描绘出生命之树,透露出一种强烈的自然气息。
榕发麓里云筑别具匠心的采用了楼中有园的布局,专属“前亭+后院”的设计,满足都市生活中的庭院情怀。层层互错的庭院,最大化满足了各层房间采光的需求,同时增加居住私密性的同时,再利用错层挑高,将产品面宽、层高、采光等做到接近完美,形成超大景观视野。
▲意向图,不作为交付承诺
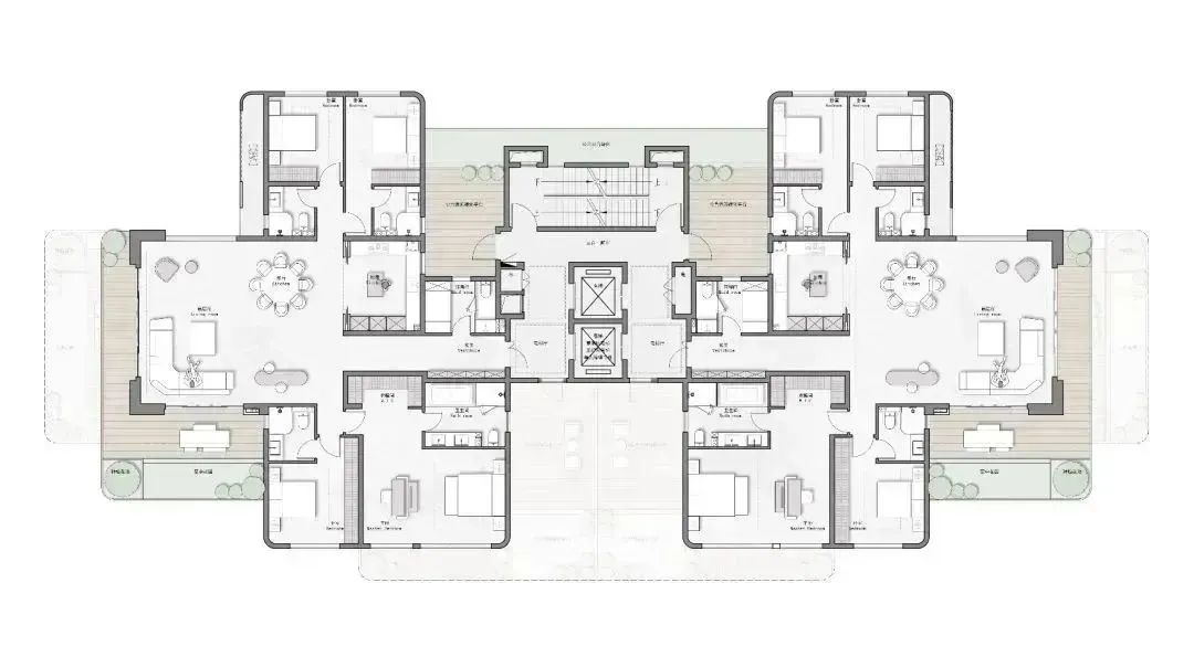
户型图

▲4室2厅2卫1厨, 建面139平米-中间户奇数层

▲4室2厅2卫1厨, 建面139平米-中间户偶数层
为打造尊贵怡人的归家环境,塑造美好社区生活,设计构建了一种独特的“酒店式的生活方式:53米超长酒店式社区入口,将仪式化、品质化、功能化、 便捷化、人性化贯穿于归家体系的每个角落,打造酒店式品质入户大堂,构筑归家礼仪空间。
▲效果图过程稿,不作为交付承诺

▲实景图
以低姿态诠释高优雅,榕发·麓里云筑以约2.4低容积率,成就城市中难以替代的稀贵藏品。7-11层洋房亲地式楼层设计,通风采光优越,推窗即揽无限绿意。
▲项目示意图,非最终交付效果
约36000㎡景观园林,将至美园林风光延伸至每家每户。高端航站式社区大门,风雨连廊贯通全社区,6大森活空间+5大主题泛会所空间,连接万般美好。居于此,尽享洋房生活的悠然惬意。
福州国贸天琴湾
设计单位:北京柏涛
项目位于闽江北岸CBD核心,生活配套繁华便利,道路交通汇集顺达,临江而居,距闽江直线距离仅0.5公里。建筑位于闽江沿岸倒U形城市天际线端点,与闽江、江岸城市亲水公园和市民广场共同构成了独特的绿色景观通廊,环境条件十分优越。


福州国贸天琴湾属于国贸地产顶级品系,客群定位高端,地域资源优秀,产品面积段240~280㎡。项目设计以立体花园作为项目打造目标,以“空中花园”作为设计的灵魂,最终呈现生长于自然的立体生态住宅。
项目设计把空中花园转译为两层高、奇偶层错位设置的大进深阳台。空中花园:每套的私属花园,从户内进入。空中园林街巷:每层的公共花园,从核心筒进入。
客餐方厅整体凸出,270°生态景观花园始终围绕客餐厅奇偶层错位设置,家庭生活中所有的公区活动都可以与室外有机联系。

每一层住户都可以从客餐厅任意位置进入私属空中花园,无差别体验新型生态住宅带来的阳光和空气。

公共休闲花园的位置在南北向、奇偶层错动布置,与私属花园形成互补与平衡,确保每一户都享有品质相当的绿化空间。



▲ 项目实景图
270°生态景观花园——两层高私家花园始终围绕客餐起居空间,配以超大落地窗,天空和江景一览无余。
公共休闲绿化平台 ——内凹式巧妙设置公共休闲绿化平台,与户内空间完全脱开,既不会对户内造成遮挡,又与核心筒公区直接连接。超乎想象的户外空间面积,令其功能和场景更为多元化,真正实现生态住宅的花园生活。




▲ 样板间实景图
国贸•天琴樾
设计单位:尚恩设计
国贸天琴樾深入研究了实际的用户实用场景,即全家庭人群对静谧性,以及多种家庭生活方式的需求,采取了双阳台的产品设计。

国贸天琴樾通过每层每户都有南向阳台+创新奇偶错层空中花园设计,实现观景、采光“平等化”,从根本上规避了奇偶户型的差距,保证了全部户型都可以实现很好的宜居效果。

▲国贸天琴樾效果

▲国贸天琴樾户型图

▲ 国贸天琴樾样板间实景图
保利·国贸天琴湖
设计单位:北京柏涛

项目定位高端改善住宅,为国贸地产高端天琴系产品,采用第四代立体生态住宅,将传统建筑引入多重空中花园系统,以人为本,体现生态宜居理念。


▲168㎡偶数层户型图

建筑立面基于天琴系海洋美学的设计风格,在此基础上再次做了提升与优化。建筑整体采用横线条、中轴对称方式呈现出建筑的延展与轻盈的姿态。横向银白色的线条,通过宽、窄的变化和端部倒角的曲面化处理,消除建筑锐度,增强建筑柔和感与平衡性。
▲项目效果图
在灰色背景基调基础上,柔美的横向白色线条与格栅的对比与融合,打破了传统现代建筑的灰白色调性。横向线条利用铝型材及混凝土外刷漆的构造方式,通过细节设计的把控,将当代设计语言和精工工艺体现的淋漓尽致,赋予建筑以灵动、舒展、典雅的气质,并给人以无限遐思。

▲项目效果图
高低错落的空中露台,将花园搬到空中,赋予绿意盎然的自然观感,让建筑与自然对话。
保利·天珺
设计单位:上海柏涛

保利天珺的户型以187㎡户型为主。并独创了“π字形”的户型。

户型横向和纵向两个方向都设置了规整的方形庭院,不同于以往L形庭院,庭院空间更完整、尺度更舒展,绿化面积更集中。而且能够让住宅被植物完整包裹,形成360度超大景观视野,透过客厅或者房间,都能有庭院深深的既视感。
保利天珺以宝格丽酒店风为参考,用纯天然的奢石,打造了一个约60米的门庭。社区可以小而精致,豪宅的大门必须还是奢阔担当!
▲ 保利天珺社区大门效果图
入户大堂挑高7米,车库的入户大堂达到了3.4米,双入户大堂都是顶奢酒店级的配置。

▲ 保利天珺入户大门效果图
▲ 保利天珺效果图
尚恩设计在第一波浪潮中,主持设计了国贸·天琴樾、榕发麓里云筑、三木乐府等7个第四代住宅项目,积累了大量有关第四代住宅的落地经验。

咨询微信:soujianzhu03
咨询微信:soujianzhu008
2024年·新产品方向
《 品牌地产 | 精品楼盘活动 》
杭州、苏州、上海
成都、郑州......
广州、福州、重庆
西安、青岛......
扫描二维码 加好友咨询
领队微信:soujianzhu03
推荐关注
全球精品楼盘考察
扫描二维码关注
微信公众号:全球精品楼盘考察
合作、宣传、投稿
联系微信:soujianzhu006




