▲ 更多精品,关注“搜建筑”
“数字农业为打造具有龙港特色的乡村振兴之路赋能,门口可就业,人才可返乡;以“特色产业”为核心,达到三产融合、产村融合;为广大人民群众提供绿色有机的健康农产品,助力实现人类命运共同体远景下的共同富裕”——HUISI
△ “数字农业创新中心”效果图
HUISI+LIN HAO带领的POA建筑师事务所发布龙港“数字农业创新中心”设计。该项目做为龙港市区域的重要城市基础功能设施,为市民提供日常生活菜品购买、商贩零售批发业务、商务办公和相关部门的管理、活跃地方经济并创造就业和政府税收,对于龙港市来说,这是政府送给市民的一个礼物。目前建筑已经进入施工阶段,预计2025年建成。
△ “数字农业创新中心”施工现场
项目(二期)选址位于龙港市三大庙社区,用地面积10191.65平方米,紧邻项目一期为冷库(已建),二期内容为农业科技中心及农业社会化服务中心建设,总建筑面积22820㎡,其中地上面积15020㎡,地下面积7800㎡。拟建一幢四层的农业社会化服务中心(农产品批发市场)和一幢九层的农业科技中心(管理办公)。基地周边现状多为低层民房和蔬菜大棚,开发程度较低;乡间路网繁密,紧邻灵龙大道,交通较为便利。
△ 场地分析
从两个建筑体量看均属于中小型配套商业建筑。结合一期项目,合理布局农业化社会服务中心办公楼与农业科技中心的建筑空间组合关系,合理安排物流流线,合理释放共享公共空间,强化塔楼地标展示效果与优化城市街区界面是本项目的优势所在,二期与一期项目的业态差异化,有利于两个项目协同发展,共享客源。
△ “数字农业创新中心”效果图
本案设计愿景:根据乡村振兴数字农业平台集成创建示范建设项目当前需求和期待以独特的设计手法打造充满人气与颜值的数字农业平台集成示范项目。增强场地文脉内涵,打造具有特色的综合型商业商务城市片区。确保项目功能空间效率,关注每位来此经商、消费、工作、学习、研究或参观的个体体验。
△ “数字农业创新中心”效果图
灵感和概念的源泉:龙港市的城市发展启发了设计团队。为了正确体现复合型功能项目的城市区域的价值,和作为人们的聚集场所,设计融合了以下四个主要的价值观:前瞻、科学、效率与和谐。设计通过对这些观点的诠释,去营造出了“场所”和建筑。“有活力的城市生活,离不开烟火气的农产品批发市场与有颜值建筑与城市空间,这就是我们需要实现的目标” 。细细思考,简单说来使用者的独特体验也正是项目本质的需求激发了建筑设计的灵感。
△ “数字农业创新中心”效果图
场所精神:有特色的工作环境大大影响区域活力、互助合作精神和工作效率。例如菜场机动车物流流线北置的安排;步行化人性化的庭院广场;引进自然通风与采光的农产品批发市场中庭设计;建筑退台引入空中花园等。大型公共艺术装置雕塑结合“龙港”的历史文脉,以龙为灵感,有机结合场地,打造富有项目场地精神的城市街区风貌。
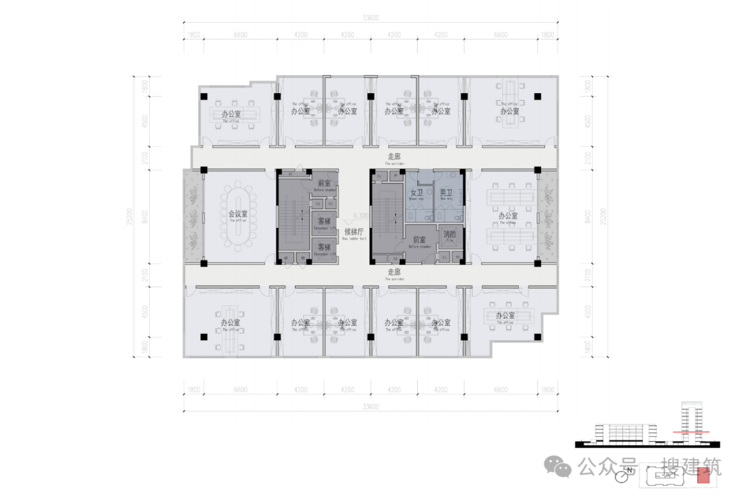
△ 功能设计
环境设计方案:采用多种绿色科技结合可以削减每年的运营成本,实现合理的投资回报。采用设计建筑中庭,引入自然采光与通风的方式,解决农产品批发市场常见的重气味的难点;如后置货车卸货场地,解决机动车流线与行人流线混合所带来的风险,增加临街铺面面积从而增加收益等。
△ 场地综合流线分析
可持续的发展策略:我们要设计一个关怀备至的智能建筑,利用大数据采集分析,为用户制定完美的办公环境;以人为本,增加使用者和空间交互。我们长远规划一个可持续建筑,使用100%可循环的材料,建筑材料本地化;通过绿色运营打造百年建筑,这是一个低碳项目,最大程度降低空调负荷,利用可再生能源。
设计图纸 ▽
本资料声明:
1.本文为建筑设计技术分析,仅供欣赏学习。
2.本资料为要约邀请,不视为要约,所有政府、政策信息均来源于官方披露信息,具体以实物、政府主管部门批准文件及买卖双方签订的商品房买卖合同约定为准。如有变化恕不另行通知。
3.因编辑需要,文字和图片无必然联系,仅供读者参考;

微信公众号“搜建筑”(ID:sjz9999)
合作、宣传、投稿
联系微信:soujianzhu006

