▲ 更多精品,关注“搜建筑”
流线重构 申亿智慧工厂
长沙市规划设计院
引子
从2020年初开始,经历三年的疫情时期,申亿智慧工厂得以建成投入使用。
项目位于长沙市雨花经开区,紧邻长株潭绿心。作为国内标准件行业的引领者,申亿智慧工厂的设计以创新为驱动力。设计重点关注流线与尺度、界面与空间,试图在功能与形式之间找到一个适宜的平衡点。
园区入口空间
俯视空中连廊
连接上下的楼梯
面向城市的“门”
“门”作为园区的主入口,在尺度上回应城市空间。七十米跨的巨型门,极大的增加了园区的展示面。进入园区内部,则成为第一个过渡性的空间节点。
办公楼入口
办公楼正立面
建筑立面主要采用圆形穿孔铝板表皮,从材料上体现工业建筑的特征。在功能上,穿孔铝板能满足建筑的通风采光的需求,同时,铝板与外墙之间的空隙可形成气流,降低建筑使用能耗,低碳节能。
立面细部
铝板选用两种不同孔径的穿孔,交替排列,形成秩序,打破立面的单一性,增加其变化。另外,与孔径变化相对应,铝板在立面上略有进退,在光照下,极富韵律和光影效果。
穿孔铝板交替的光影
灯光从建筑内部透出来,在立面上获得一种半透明的效果,形成朦胧的美学氛围。
建筑与城市的夜晚
通高的室内中庭
在办公楼沿城市支路一侧,同样设计了一部串联六层的室外楼梯,楼梯颜色、材质均与室内楼梯统一。外挂楼梯成为流线的终点,在道路交叉处结束,其功能不仅只是满足疏散的需求,同时也成为室外公共空间的一部分。
道路转角处的室外楼梯
园区流线由外至内到达办公楼内部,办公流线由内而外再到建筑立面,形成一条贯穿一体的完整流线。
近看外挂楼梯

经过一段时间的使用,红色的架空连廊变成了园区的一个标签。从业主的使用反馈得知,红色连廊已是周边片区参观的一个网红打卡点。建筑在满足功能之余,能为使用者带来额外的附加价值,也是对建筑设计工作的一种激励。
技术图纸
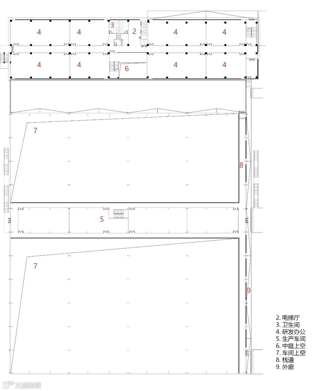
研发办公、生产车间一层平面图
研发办公、生产车间二层平面图
下料车间、精加工车间二层平面图
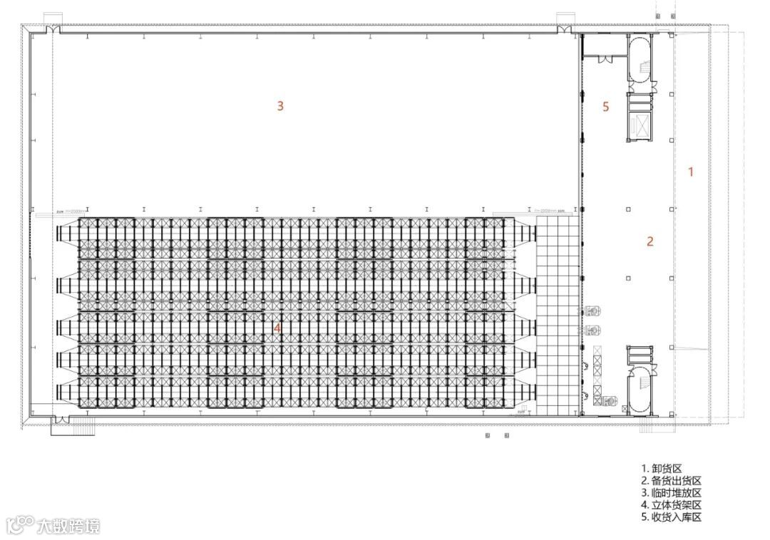
立体成品库一层平面图
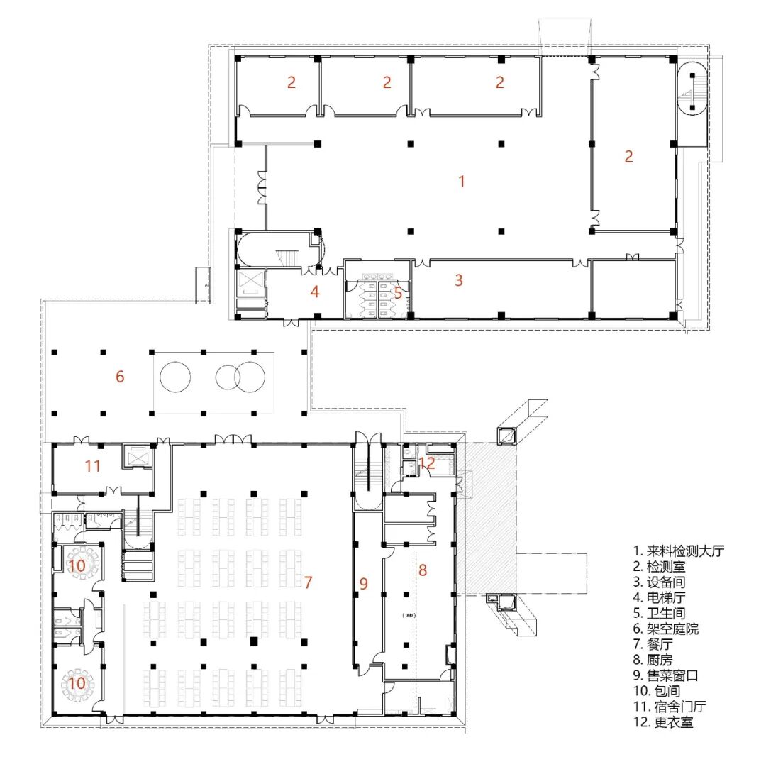
来料检测、食堂宿舍一层平面图
来料检测、食堂宿舍二层平面图
研发办公北立面图
研发办公、生产车间西立面图
项目信息
摄影:山兮摄影
本资料声明:
1.本文为建筑设计技术分析,仅供欣赏学习。
2.本资料为要约邀请,不视为要约,所有政府、政策信息均来源于官方披露信息,具体以实物、政府主管部门批准文件及买卖双方签订的商品房买卖合同约定为准。如有变化恕不另行通知。
3.因编辑需要,文字和图片无必然联系,仅供读者参考;

合作、宣传、投稿
联系微信:soujianzhu006

