▲ 更多精品,关注“搜建筑”
松岗街道松岗商业中心
城市更新九年一贯制学校新建工程全过程设计
立方见筑
△ 公园学校 · MIX公园
/01/
项目解读
项目位于广东省深圳市宝安区松岗街道核心区域,处于松园路(现状)与松河北路交汇处,属于松岗商业中心城市更新单元的一部分。场地北、东二侧为待拆迁城中村及商业建筑等,属城市更新区未拆迁建筑,西侧临居住区(景湖家园),南倚松岗河。
△ 区位分析
△ 基地南侧航拍图
基地与城市的关系是我们重点关注的部分,通过现场调研和分析可以得出以下问题:
1、现状周边松岗河作为优质的景观资源,并未得到很好的开发利用,亟待打通景观廊道串联各个景源;
2、虽然松岗河两岸有多所学校,但是较为分散、各自独立封闭,城市界面过于单一;
3、项目周边遍布城中村及工厂,缺乏相对集中的公共空间和文化场所;
针对以上问题,我们希望通过学校建设的机会给城市与师生带来一个友好、空间丰富、充满人文艺术的新学校。
△ 基地分析
/02/
设计策略
项目引入“MIX公园”设计概念,打造一所位于文化长街的未来校园,实现缝合自然、激活城市边界与片区的目标。
△ 鸟瞰图
还城市一个公园
我们将校园内街打造成生态绿廊,将校园与城市绿地相连接。通过严谨、模块化的教学主体和连廊设计,进一步打造校园环境,形成院落式景观。沿街面的体块采用不规则的体态盒子设计,将河景引入校园。我们希望完成的不仅仅是个学校,还是一个 MIX 公园。
△ 还城市一个公园
场地原有的街区空间并不完整。新建的开放式文体空间形成了公共步行的带状公园,打开城市界面,形成一个既充满绿意生态又充满文化氛围的校园。同时联系周边社区与公共空间,也为社区提供了一个具有文化气息的公园。
△ 是一个城市公园也是文化公园
△ 沿街透视
我们利用退线在建筑与城市道路之间设置多个公园:街角公园、带状公园、入口花园等,为社区居民提供多种活动休闲场所。
△ 激活城市边界,形成友好型的城市界面
还城市一个活力街区
△ 沿街透视
通过不同的文艺功能需求,我们为沿街体块赋予了不同的形态,打造一条充满文化符号的文艺街区,激活城市界面。
△ 开放街区,多元文化
△ 活力链接,还路于人
△ 校园内街与活力跑道
还社区一个文体中心
△ 鸟瞰图
原场地周边公共性质的文化体育中心的缺失使得开放街区、开放校园成为一种可实施策略。我们在场地的东南角设置校园文化体育中心,街角顺应城市边界设置街角花园。社区共享文体中心设置独立出入口,打开城市界面的同时,联系周边社区与公共空间,与公众共享文体设施,完成对城市街区系统的补充。
△ 绿色校园,社区共享文体中心
△ 社区共享文体中心
设计中将操场抬高,沿街面设置图书馆等公共空间,与沿街面其它文艺功能用房共同形成文体轴线。轴线另一侧布置体育馆、多功能厅等大体量通高空间。区域分时分区管理,保证学生安全性的同时,也为社区提供一个文体中心。
△ 教学楼剖面
△ 篮球场/宿舍楼/街角公园
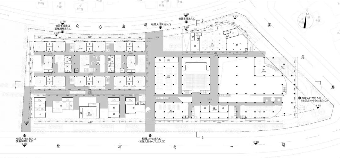
△ 周一到周五的上学模式下,校园实施整体性封闭化管理,保证学生的安全性的同时提供一个具有浓郁学习氛围的校园环境
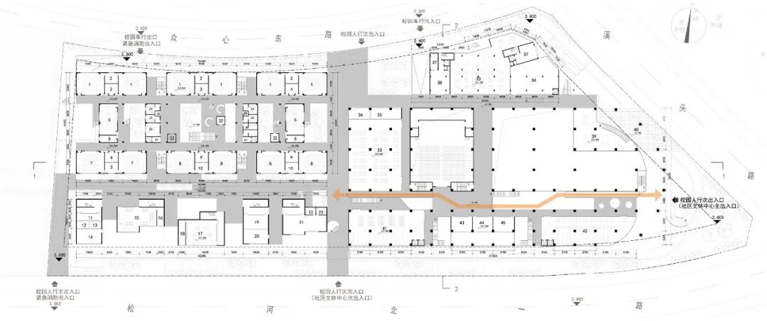
△ 周末以及节假日的放假模式中,校园的专业教学区以及文体中心将对社区开放,解决周围地区公共基础设施匮乏的问题,为社区提供一个文体中心
单元化、模块化、理性集约高效的功能组团
△ 教学楼组团鸟瞰
在功能组团的设计中,采用模块化、单元化的原则布置教学组团及宿舍组团;采用集约化、高效化的原则布置艺术与体育中心组团。
△ 组团轴测图
△ 正交网格/学院楼
△ 艺术街区/生活服务核心
/03/
建筑策略
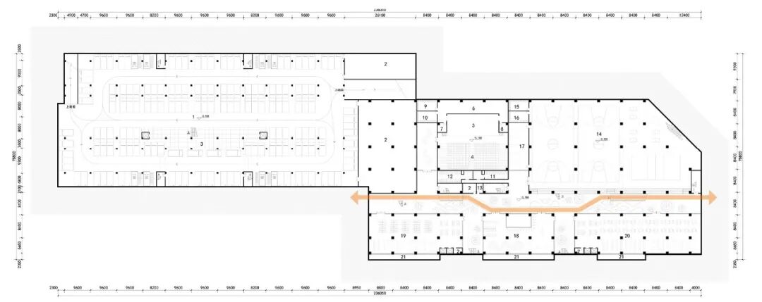
文体中心
我们将庭院与连廊交互设计,形成丰富多样的文体活动空间。利用体育街的跑道连通各个功能空间,使人们得以穿梭、游走、休憩于建筑与自然之间。
△ 负一层平面图
△ 体育馆/体育街
△ 一层平面图
△ 文体中心
△ 街角公园
艺术组团
位于南侧沿街面的活力街区组团也是校园的艺术专业教室区,各个体块采用同一个体块原型进行组合,通过不同的造型手法,形成趣味多变的体块,彰显着艺术的魅力。
△ 统一模数的艺术组团
△ 具有趣味性的活力街区
△ 灵活多样的平面组织方式
△ 艺术教室
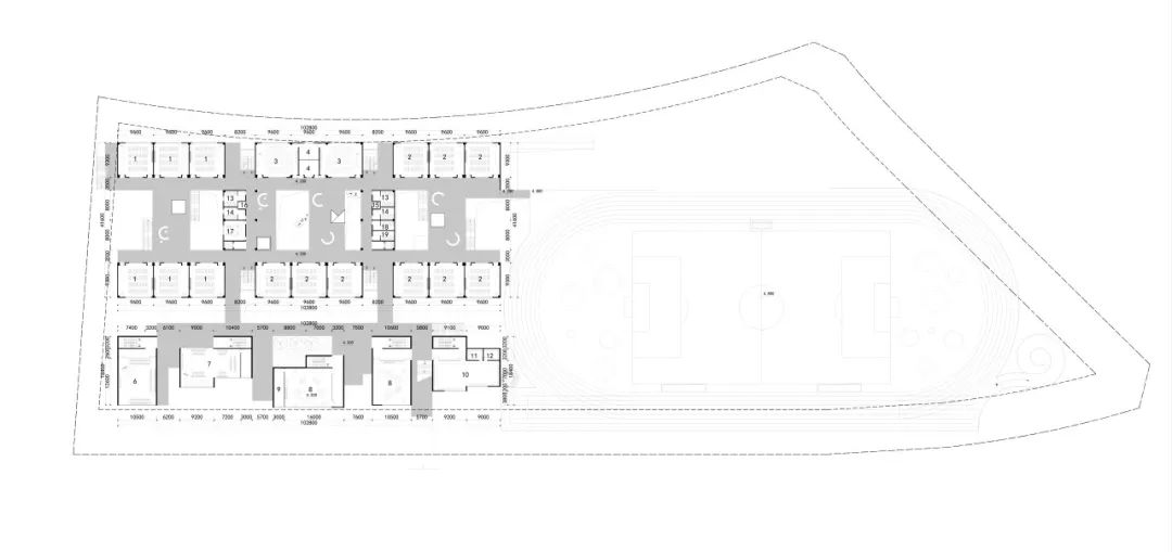
教学楼组团
△ 教学楼组团
我们通过对教学单元的体量计算,合理布置教学体块。经过单元分隔以及围合庭院,形成一个模块化、单元化、严谨的教学组团。
△ 教学楼组团
△ 教学楼体块生成
1、教学楼采用平行布局模式,保证每个教室都可获得最佳采光及通风条件;
2、教学单元采用标准模块化的平面设计,每一层设置3间教室成组布置;
3、1层为专业教室与公共教室,2-5层为基础教学区;
4、行政办公、卫生间以及核心交通位于成组的教学单元之间,高效解决校园管理问题以及日常教学需求;
△ 教学楼防噪音
内院空间具有丰富的竖向组织,从二层架空平台至高空的慢速交通体系,将创造出具有活力的内部庭院空间,丰富而有趣的空间不仅能够创造出更多视线交流,拉近人与人之间的距离,也能鼓励师生交流、激发创意。
△ 教学楼剖面
宿舍楼组团
△ 朝向城市一侧通过打开的缺口与城市街角形成互动
△ 通过木色与绿植打造温馨自然的居住氛围
△ 宿舍楼操场透视图
1、教师宿舍靠近运动场布置,使运动场成为宿舍的生活配套;
2、底层架空空间与运动场看台相结合,让建筑与运动场成为一体;
3、1-3层打造退台、露台与丰富的竖向交通系统,打造活跃的教师课余活动场所;
△ 宿文体中心剖面图
/04/
结语
我们希望校园不仅仅是校园,还可以成为城市的公园。为师生提供优质的教学生活空间的同时,回馈社会大众,真正将学校与社会融为一体。
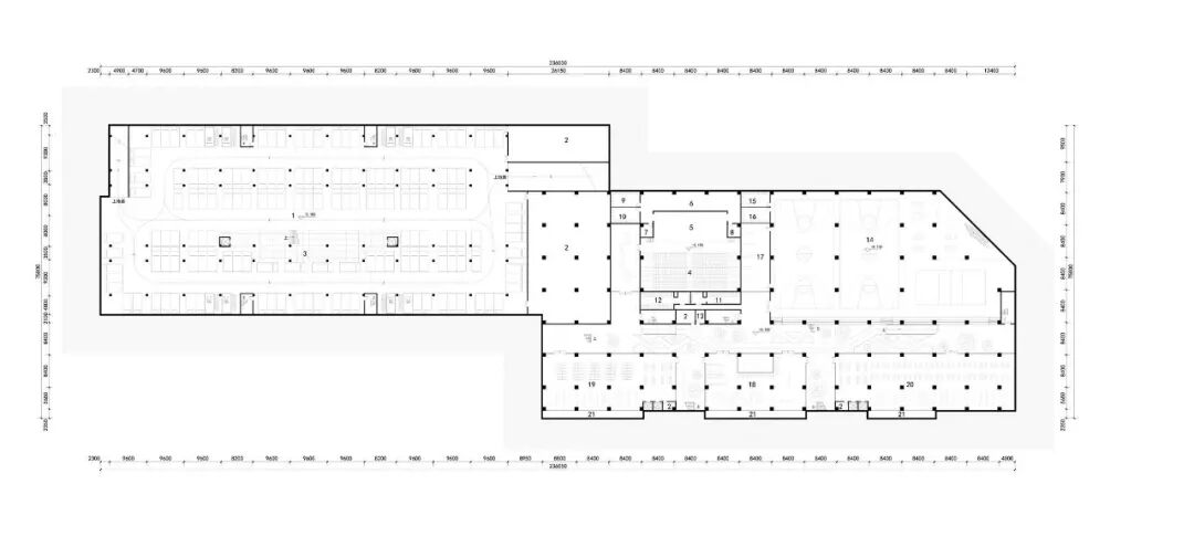
△ 负一层平面图
△ 一层平面图
△ 二层平面图
△ 三层平面图/四层平面图
△ 五层平面图/六层平面图
△ 1-1剖面图
△ 2-2剖面图
△ 东立面图
△ 西立面图
△ 南立面图
△ 北立面图
完整项目信息
项目名称:松岗街道松岗商业中心城市更新九年一贯制学校新建工程全过程设计
设计单位:深圳市立方都市工程设计有限公司/ 深圳市库博建筑设计事务所有限公司
项目类型:学校建筑
项目地点:广东省深圳市宝安区
项目状态:投标方案
主创建筑师:邱慧康
设计团队:姬国威、刘沣毅、刘洋、吴大华、庄伟蓉、侯慧婷
设计时间:2023年3月-2023年6月
用地面积:24439.88平方米
建筑面积:63000平方米
本资料声明:
1.本文为建筑设计技术分析,仅供欣赏学习。
2.本资料为要约邀请,不视为要约,所有政府、政策信息均来源于官方披露信息,具体以实物、政府主管部门批准文件及买卖双方签订的商品房买卖合同约定为准。如有变化恕不另行通知。
3.因编辑需要,文字和图片无必然联系,仅供读者参考;

微信公众号“搜建筑”(ID:sjz9999)
合作、宣传、投稿
联系微信:soujianzhu006

