大数跨境
0
0

学习 | 第四代住宅:从产品创新、施工品质到落地实操

学习 | 第四代住宅:从产品创新、施工品质到落地实操 搜建筑
2024-09-21
1
 更多精品,关注全球精品楼盘考察

第四代住宅随着各地政策的推出,国内已展开对第四代住宅产品的探索,不仅是建筑行业技术层面的迭代,同时也是各大房企的创新发展方向。
那么,第四代住宅到底如何进行创新设计和落地实操呢?

第四代住宅(生态立体楼盘)

专题考察+房企论见会

【中国 · 福州】

福州,第四代住宅的全国领跑者,在各方面累计了大量的落地经验,在此,搜建筑携手尚恩设计G.Y广宇设计参会董事长/总裁通过楼盘案例,分享、探讨第四代产品现在如何落地实施,如何通过设计赋能产品力升级、助力企业发展。



第四代住宅考察学习@房企论见会

榕发 • 誉湖郡
国贸 • 天琴樾
国贸 • 天琴湾
福州 • 江山天悦
▲ 三木 • 乐府
保利国贸 • 天琴湖
福州江山云起
▲ 榕发•麓里云筑


分享会亮点:

一、第四代住宅:政策与设计要点

二、第四代立体生态住宅创新设计

三、第四代住宅:操盘落地经验

四、高品质住宅发展趋势



报名+咨询 

1、扫描二维码 加好友咨询
(名额有限,满员即止)

咨询微信:soujianzhu03


咨询微信:soujianzhu008


2、联系电话:18132657351(微信同号)

温馨提示:以上项目中安排6-8个参观,部分项目根据现场情况可能会有调整。感兴趣的朋友请及时报名。

江山云起

设计单位:G.Y广宇设计


江山云起以屹立的美学

打造连江城市新地标

在现代建筑立面上融入了东方灵动之美

细节画骨东方精致

让外立面更几何、立体

交叉错落式设计

展示空间的层次感


独特设计巧思让整个建筑呈现高雅气质

在光影交错间,优雅而灵动

尽显满轻盈感、高级感

将东方建筑的内核给予了新的艺术诠释

倒映出时代人物身份标签


提取传统中式飞檐

以中式艺术美学的考究组合

筑造轻盈流动的立面外形

飞檐翘角间,流露中式大宅质感



江山云起122㎡双庭院朗阔大四房,奢适人居生活,四房一步到位,满足舒居想象,犒赏理想人生。


建构大宅气韵





三木•乐府

设计单位:尚恩设计


三木乐府,作为长乐首座第四代住宅,相较于同类产品,在社区立面的设计、户型空间尺度、露台设置的均衡性及户型利用率上全面提升,为城市的人居方式进行了彻底的迭代更新。


 项目效果图


建筑以爱马仕凯丽金顶部弧形穹顶造型,富有【游艇式鎏金曲线】之美。这种极具前瞻性的审美,刷新了长乐过往项目。



无感归家科技,开启最具仪式感的礼遇。智能人行/车行、人脸识别、访客二维码智慧系统、红外感应出门,解放双手,做到0接触归家。

示意图,仅供参考


建面约170㎡偶数层户型为例,做到了大别墅才有的“爽点”。五开间朝南,采光率更高,生活起居面面向阳。四房两厅三卫南向双主卧设计,独占空中景观,这也是奢宅的无形资产。

第三方装修建议效果图,仅供参考


建面约170㎡四房两厅三卫奇数层户型:南北庭院合计超过98㎡,身临其境便可感受到它的大气磅礴。其中北向庭院约18.8m豪横面宽,给予长乐前所未有的惊喜。


 建面约170㎡奇数层



区别于传统阳台进深约1.5m,三木乐府露台进深最大约5.65m,同时做到了约6m挑高。尺度升级的同时形成约270°观景视野,营造出庭院深深的空中花园体验。


样板房实景图,仅供参考


三木乐府·建面约128㎡奇数层打造出超74㎡南北双花园空间,其中进深超过1.8米部分不计容,意味着同等产权面积,多得超50%的空间!


 建面约128㎡奇数层


不仅如此,得益于高端定位,项目从产品设计上,更做到了室内与空中庭院有机结合,全屋做到了约360°观景视野,真正营造第四代住宅的花园生活。

第三方装修建议效果图,不作为装修方案承诺



江山天悦

设计单位:G.Y广宇设计

江山天悦地处连江县中心地带东侧,商业、交通、文教、景观资源完善,出行自在纵横,归来繁华在握,拥享城市臻稀之境。不负连江稀贵城芯热土,广宇设计打造惊艳现象级园林生态大盘,以“花园”作为设计的灵魂,为每家每户实现空中庭院理想,塑造连江第四代生态住宅典范,引领中心城东片区的崛起,实现连江的战略升级。

△效果图过程稿,不作为交付承诺

“立体”在于拥有立面与自然融合的“垂直森林”,“生态”在于让每家每户都有一座“私家空中花园”。创新性生态立面设计颠覆传统住宅立面的平铺直叙,在统一的序列中寻找自然的律动与和谐。

△效果图过程稿,不作为交付承诺

△效果图过程稿,不作为交付承诺

△户型图,不作为交付承诺

△户型图,不作为交付承诺

广宇设计采取元素符号景观提取转译,将景观元素应用于立面高层大线条处,通过再设计实现丰富观感;将古建元素应用于高层转角阳台,通过弧面玻璃反射效果,形成兼具传统美学与文艺美学特征的立面形象,影显项目的独特性和尊贵感。建筑长出森境,自然包裹立面,层层叠翠,筑就一座会呼吸的城市“森林”。

△效果图过程稿,不作为交付承诺



创新性地将垂直空间划分多个层次,采用“奇偶错层"、"前园后巷”等不同的绿化布局,形成空中花园景观。局部挑板的结构形式,解决下挂的结构梁系遮挡花园露台天然照明的可能。这里可以是先生的会客天地,承载太太的午后花园,亦是父母的鲜氧花园,更是孩子的自然乐园,带来宽朗惬意的生活体验。

△效果图过程稿,不作为交付承诺

△效果图过程稿,不作为交付承诺

广宇设计竭力营造生活的仪式感和归家的身份感,超大尺度归家入口溯源中国传统建筑精髓,大气恢弘,尽显大宅气韵,奢享归家仪式。

△效果图过程稿,不作为交付承诺


福州·龙山云起

设计单位:G.Y广宇设计

龙山云起地处福清城市中心区域,临近融宽环路(福东大道)城市主干道,交通便捷,周围教育、景观等配套资源完善,其地理位置的重要性不言而喻。

△效果图过程稿,不作为交付承诺

空间布局采用“四轴一心”的划分方式,以中心景观轴串联地块内部,形成中心花园,共享主轴景观,令社区仿若围合于一片绿意中,给予居者全方位的健康生态享受。尊享大堂、景观中庭、阳光花园、宅间小路、雅致门厅五重归家礼序,结合“四水归堂”的布局形式,打造一个公园、花园与社区、家园之间的沟通界面,使人们能够享受到更加绿色的环境,让人与自然更加和谐的相处。


广宇设计决心充分利用项目的地理优势及自然资源,以先锋建筑艺术对话未来,改变传统鸟笼的居住模式,以高层建筑与多层建筑组合打造多重生态系统、景观艺术性相结合的生态性住区,将其打造成为福清最具标志性的住宅区,为居者献上理想人居之所

△效果图过程稿,不作为交付承诺

△效果图过程稿,不作为交付承诺

建筑采用现代古典风格,与景观呈现有机互动,仿佛一颗绿洲上的明珠,气质与美学达成高度统一。突出轴线,均衡对称的精致结构与造型,为城市提供大气灵动的城市形象面,一切美好向往,从这里开始。

△效果图过程稿,不作为交付承诺

△效果图过程稿,不作为交付承诺


立面材质以玻璃、石材有机结合,与绿色植被包裹相容,呈现晶莹质感,勾勒出富有层次感的线性语言,打造精致高品质的人居社区,内敛而不张扬,宁静且有温度。夜景灯光对建筑立面重要细部结构进行刻画,既强调了建筑本身的个性特征,又保证了其与周边环境的整体协调,无论远眺或是近观,都别有一番风情。


△户型图,不作为交付承诺

△户型图,不作为交付承诺


华丽的装饰与大气的落客空间尺度,超长弧线界面塑造尊享酒店式超大尺度归家入口,恢宏大气,气象万千,全方位塑造归家仪式感与尊崇感。

△效果图过程稿,不作为交付承诺


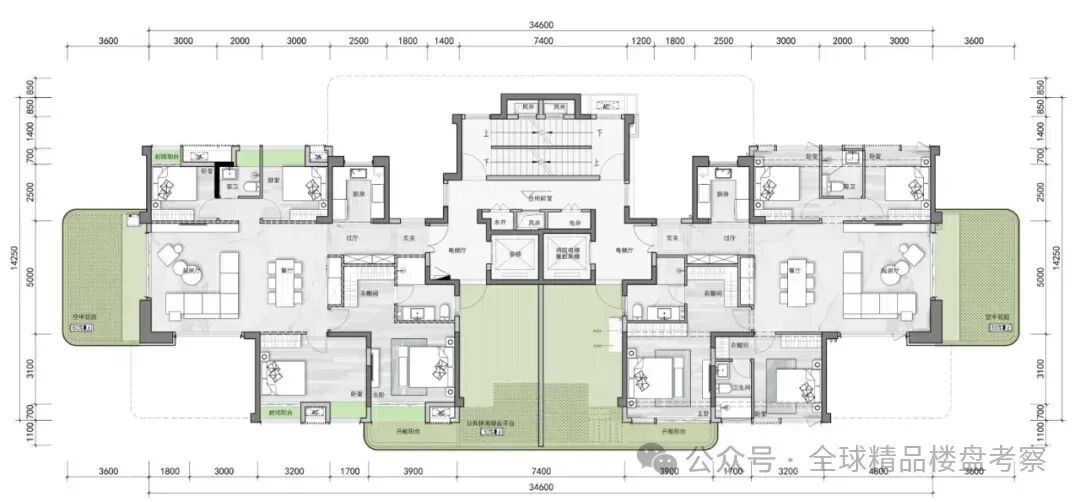
榕发•誉湖郡

建筑设计:福州市建筑设计院


榕发誉湖郡将别墅的院落搬到空中,创造一个“上有天、下有地、前有庭、后有院”的高层住宅。

社区共有8栋两梯两户主楼,南北各4栋,中间为39米X170米中央大花园,是区域拥有临湖景观且自带中央大花园的高端社区。

项目采用大组团式规划,小邻里式空间组合方式,每一栋住宅都采用风雨连廊连接且串联至社区主入口大堂。连廊整体形成环状形式,总长约400米,宽约2.5米,净高约3.3米,门厅空间廊宽放大至6米;

▲ 项目效果图

社区大门采用星级酒店的设计风格,人行主入口广场设计有迎宾水景,以灵动温婉的姿态迎接业主归家。


▲ 项目效果图

每户超大公共平台与空中花园,奇数层是南公共平台与南空中花园组合,偶数层是北公共平台与北向及山墙向空中花园组合。


 项目效果图


采用钢结构外饰金属饰面,整体形象高端;连廊衔接段采用折线形式增加空间趣味性,满足小区业主全天候的休闲娱乐。


 项目效果图


项目产品有180、160、140三个面积段,其中180、160两个户型为独梯独户形式。产品设计注重空间格局、室内采光、奇偶层隐私等需求。

 户型示意图



 户型示意图

超大公共平台与空中花园

空中花园绿化率达到60%,公共平台绿化率达到40%,采用自动化灌溉系统,确保绿植常年水分充足。



福州国贸天琴湾

设计单位:北京柏涛


项目位于闽江北岸CBD核心,生活配套繁华便利,道路交通汇集顺达,临江而居,距闽江直线距离仅0.5公里。建筑位于闽江沿岸倒U形城市天际线端点,与闽江、江岸城市亲水公园和市民广场共同构成了独特的绿色景观通廊,环境条件十分优越。

本项目以各户景观视野最大化作为设计出发点,四栋楼错位排布,高层看江景,低层赏花园,叠合生态绿化系统,成为“诗意栖居”的真实范本。

▲ 项目效果图
秉持着“立体生态住宅”的理念,项目在社区的层面给出的规划框架就是打造一个垂直花园体系,以四重花园——架空层花园、私家空中花园、公共花园、屋顶花园,营造被花园环抱的家,与自然共生的日子。

▲ 项目效果图

福州国贸天琴湾属于国贸地产顶级品系,客群定位高端,地域资源优秀,产品面积段240~280㎡。项目设计以立体花园作为项目打造目标,以“空中花园”作为设计的灵魂,最终呈现生长于自然的立体生态住宅。


项目设计把空中花园转译为两层高、奇偶层错位设置的大进深阳台。空中花园:每套的私属花园,从户内进入。空中园林街巷:每层的公共花园,从核心筒进入。


客餐方厅整体凸出,270°生态景观花园始终围绕客餐厅奇偶层错位设置,家庭生活中所有的公区活动都可以与室外有机联系。

每一层住户都可以从客餐厅任意位置进入私属空中花园,无差别体验新型生态住宅带来的阳光和空气。

公共休闲花园的位置在南北向、奇偶层错动布置,与私属花园形成互补与平衡,确保每一户都享有品质相当的绿化空间。


 项目实景图

▲ 项目实景图

▲ 项目实景图

270°生态景观花园——两层高私家花园始终围绕客餐起居空间,配以超大落地窗,天空和江景一览无余。


公共休闲绿化平台 ——内凹式巧妙设置公共休闲绿化平台,与户内空间完全脱开,既不会对户内造成遮挡,又与核心筒公区直接连接。超乎想象的户外空间面积,令其功能和场景更为多元化,真正实现生态住宅的花园生活。

奇数层平面

▲ 偶数层平面

▲ 样板间实景图

▲ 268㎡奇数层平面

▲ 268㎡偶数层平面

▲ 样板间实景图


国贸天琴樾

设计单位:尚恩设计


国贸天琴樾通过对实际用户需求和生活场景的深入研究,通过对“天琴系”的传承与创新,在生态豪宅的基底上,融合艺术基因,再次飞跃式迭新第四代人居品质。
▲ 国贸天琴樾效果图

国贸天琴樾深入研究了实际的用户实用场景,即全家庭人群对静谧性,以及多种家庭生活方式的需求,采取了双阳台的产品设计。

▲ 国贸天琴樾效果图
此举,让空中花园以洄游动线有效的串联起了所有区域,实现了与生活空间的有机互动。由此,实现了卧室区的采光观景极致效果,又让空中花园与客餐厅有效互动,满足了多种生活需求。

▲ 国贸天琴樾户型图

国贸天琴樾通过每层每户都有南向阳台+创新奇偶错层空中花园设计,实现观景、采光“平等化”,从根本上规避了奇偶户型的差距,保证了全部户型都可以实现很好的宜居效果。

▲国贸天琴樾效果图
国贸天琴樾的“空中花园”,拥有了6.1米的挑高尺度,此举让客厅和空中花园拥有了无遮挡的IMAX级观景效果,无论是在客厅闲坐,还是在空中花园赏景,都可在无敌视野中,观天边云卷云舒,赏四季旖旎景致。

▲国贸天琴樾效果

为了保证居家隐私,国贸天琴樾奇数层与偶数层的花园布置在投影面积上存在一定的重合,并在空中花园还采用了极具美学感的隐私挡板,由此避免了家庭之间的对视,让静谧天地不受干扰。

▲国贸天琴樾效果图


国贸天琴樾户型设计上,通过超大尺度观景面、270°垂幕视野,让视野无限延伸,让自然美景映入每一扇窗内;LDKBG一体化、宴会级甲板方厅、双星级主卧套房……实现与国际鼎级生活品质的同频共振。

户型赏析/ 

滑动查看更多

滑动查看更多

滑动查看更多

滑动查看更多

▲国贸天琴樾户型图

▲ 国贸天琴樾样板间实景图


保利·国贸天琴湖

设计单位:北京柏涛


天琴湖用地位于福州市晋安区,西侧毗邻城市绿肺晋安湖公园,东侧南侧被陈厝河公园环绕。用地东面可远眺鼓山,依山傍水自然资源景色优美。同时,用地位于晋安CBD核心区,是政府重点打造的创新、创业、创造高地,重点发展高新技术产业,产业级能较高,未来发展潜力巨大。

 项目效果图


项目定位高端改善住宅,为国贸地产高端天琴系产品,采用第四代立体生态住宅,将传统建筑引入多重空中花园系统,以人为本,体现生态宜居理念。


规划12栋高层住宅,呈周边式布局,留出中央核心景观区域,景观资源得到充分利用,也保证了东西两侧观湖观景的视线合理性。

▲项目效果图
项目户型设置东西双阳台,其中主卧相连接南向L型庭院,约7.4米面宽,体验IMAX级270°环幕视野。东头阳台相连接客厅,约6米挑空,种植绿植花卉,独享院落生活。

▲168㎡偶数层户型图


168㎡奇数层户型图


建筑立面基于天琴系海洋美学的设计风格,在此基础上再次做了提升与优化。建筑整体采用横线条、中轴对称方式呈现出建筑的延展与轻盈的姿态。横向银白色的线条,通过宽、窄的变化和端部倒角的曲面化处理,消除建筑锐度,增强建筑柔和感与平衡性。


水平方向互相穿插、跳动的白色线条及端角的曲线处理宛如“钢琴的琴键”让建筑在秩序的美感中又富有节奏变化,形成一曲婉转悠扬的变奏曲。

▲项目效果图

在灰色背景基调基础上,柔美的横向白色线条与格栅的对比与融合,打破了传统现代建筑的灰白色调性。横向线条利用铝型材及混凝土外刷漆的构造方式,通过细节设计的把控,将当代设计语言和精工工艺体现的淋漓尽致,赋予建筑以灵动、舒展、典雅的气质,并给人以无限遐思。


高低错落的空中露台,将花园搬到空中,赋予绿意盎然的自然观感,让建筑与自然对话。


保利·天珺

设计单位:上海柏涛


保利·天珺以国际视野,联手全球大师,从建筑设计、园林设计到室内设计全维度迭升城市人居。

▲ 项目实景图


保利天珺项目效果图

保利天珺的户型以187㎡户型为主。并独创了“π字形”的户型。



户型横向和纵向两个方向都设置了规整的方形庭院,不同于以往L形庭院,庭院空间更完整、尺度更舒展,绿化面积更集中。而且能够让住宅被植物完整包裹,形成360度超大景观视野,透过客厅或者房间,都能有庭院深深的既视感。



保利天珺样板间实景图

▲ 保利天珺项目效果图

保利天珺以宝格丽酒店风为参考,用纯天然的奢石,打造了一个约60米的门庭。社区可以小而精致,豪宅的大门必须还是奢阔担当!

▲ 保利天珺社区大门实景图

入户大堂挑高7米,车库的入户大堂达到了3.4米,双入户大堂都是顶奢酒店级的配置。


▲ 保利天珺入户大门实景图


榕发•麓里云筑

设计单位:尚恩设计


榕发深研人居未来发展趋势,以独木成林的顽强基因赋能第四代生态住宅,突破豪宅规制,倚生长之势繁衍的柱状建筑元素,打造层级丰富的建筑形象,为福州第四代生态住宅打开新局面。


效果图丨以最终交付为准


项目立面强调整体造型树形生长之意,使得建筑整体更加灵动写意。在基础上又将立面竖向造型线脚结合分户墙简化,在营造树形自下而上生长的同时也注意避免对住户在空中花园的居住体验。简单几笔树干树枝的勾勒也更显简奢大气。

▲ 项目效果图过程稿

 项目效果图


设计回归传统人居理念,利用270°环绕景观打造错层全景露台,奇偶层露台错位,形成通高院落及多维度的城市上空森野谧境。露台通过使用弧形精工化建筑线条及通透天幕玻璃立面,增加建筑的流畅感和未来感,打造奥体片区独特IP标杆形象。

▲ 项目效果图


为打造尊贵怡人的归家环境,塑造美好社区生活,设计构建了一种独特的“酒店式的生活方式:53米超长酒店式社区入口,将仪式化、品质化、功能化、 便捷化、人性化贯穿于归家体系的每个角落,打造酒店式品质入户大堂,构筑归家礼仪空间



建发•灏云


建发•灏云引入立体生态花园理念,融合福州坊巷院落美学3.0立体生态花园集“大平层尺度”和“别墅庭院”之大成,打造层层街巷入户、户户云端庭院


▲ 项目效果图

为鼓楼生活带来更纯粹的居感,建发·灏云创新联动城市景观+社区景观+私家景观,营造从鼓楼运河及公园到禅境中式园林,再到住宅层层街巷、户户花园的三重景观,真正做到生活动线的全景观覆盖。

▲ 项目实景图


建发灏云拥有得天独厚的布局优势,扇形地块,使得楼栋错落有致,每个楼栋都拥有视野景观的同时,保证日照充足。另外,传统立体生态住宅空中花园外挑为 3.6 米,建发·灏云从人居考量,将客厅处空中花园外挑增加1.8 米,保证户内采光充裕。 


▲ 项目效果图
▲ 样板间实景图



【活动报名】

活动组织:
主办方:搜建筑 & 经典人居

报名+咨询 联系如下

1、扫描二维码 加好友咨询
名额有限,满员即止

咨询微信:soujianzhu03


   咨询微信:soujianzhu008


2、联系电话:18132657351(微信同号)

2024年·新产品方向

《 品牌地产 | 精品楼盘活动 》

杭州、苏州、上海

成都、郑州......

广州、福州、重庆

西安、青岛......

扫描二维码 加好友咨询

领队微信:soujianzhu03

本资料声明:

1.本文为建筑设计技术分析,仅供欣赏学习。
2.本资料为要约邀请,不视为要约,所有政府、政策信息均来源于官方披露信息,具体以实物、政府主管部门批准文件及买卖双方签订的商品房买卖合同约定为准。如有变化恕不另行通知。

3.因编辑需要,文字和图片无必然联系,仅供读者参考;

推荐关注

全球精品楼盘考察

扫描二维码关注

微信公众号:全球精品楼盘考察


合作、宣传、投稿

联系微信:soujianzhu006

搜建筑·矩阵平台

【声明】内容源于网络
0
0
搜建筑
关注全球时尚的、新的建筑资讯。
内容 10717
粉丝 0
搜建筑 关注全球时尚的、新的建筑资讯。
总阅读2.8k
粉丝0
内容10.7k