▲ 更多精品,关注“搜建筑”
TOD是以公共交通枢纽为导向的土地开发模式,纵向叠加了住宅、商业、办公等多业态空间。
上期我们深入了解了TOD开发模式,这期我们来看一下那些TOD项目住宅都有什么特点,希望能给到大家一些启发。
目前国内已有的TOD项目,多为社区型TOD,主要有两个特征:
• 多位于城市近郊,为地铁车辆段上盖项目;
• 业态主要包括住宅、商业、教育等,基本生活配套齐全。
一般社区型TOD的规划范围内纯住宅社区或政策性住房的占比会较高,住宅建筑面积占比会超过80%,商业及公建配套的业态规模在10%左右,商业规模的总体量一般在10万平方米以内。

01
TOD项目对住宅区有影响吗?
① 优势
作为城市迭代更新的产物,TOD项目开发模式不仅可以在有效空间内为时间做减法、为生活做加法,更有着1+1>2的增值效应。
TOD项目商业、办公等大家生活的各种场所相对集中,配套齐全、生活方便。
② 劣势
TOD项目配套齐全、生活方便,但这也意味着片区内一定是高容积、高密度的。而且地铁类型的TOD住宅可能会有噪音,甚至有些车辆段上盖的还有震动等,所以并不一定好。
02
TOD住宅项目案例
近两年,TOD模式迎来发展契机,风口已经到来。万科、龙湖、绿地、越秀、保利等诸多规模房企与地铁公司合作,早已参与到TOD项目的投资开发当中,将把“站城一体化开发”的TOD模式推向新的高潮。
接下来我们来看一下这些TOD住宅项目。
① 越秀琶洲南TOD项目
首先是越秀琶洲南TOD项目,可以说是一鸣惊人,越秀深耕多年,深度参与广州50余个TOD项目,全国10个城市70余个TOD项目,而且已经从1.0进化到5.0。TOD5.0模式,从车站+住宅+商业,进阶到CBD+TOD。

越秀TOD迭代示意图
「CBD+TOD」琶洲南TOD与琶洲CBD仅一涌之隔,占据金三角核心。是未来广州最明朗、居住质感最佳的CBD区域。越秀紧贴区域特质和智识新贵的需求,充分挖掘地块优势,打造出了全国CBD+TOD的典范。

琶洲南TOD,北地块是「新派科技豪宅+全龄教育学校+CBD滨河氛围」为一体的纯住区,南地块是「250米地标写字楼+商业办公群+科研产业高地综合体」。是全国首个在核心CBD里面,集轨道、住宅、学校、公园、商业、办公、产业、科研一体化的超级TOD。

琶洲南TOD外立面意境展示
琶洲南TOD从住宅公建化、天际线的韵律感,及有温度的建筑材质入手,把先锋审美融入到了整个建筑群的设计中。外立面采用公建化设计,选用大面积的航空铝板+系统门窗,实现360°的IMAX采光和开阔视野,审美上与琶洲西区的总部大楼集群相呼应。

琶洲南TOD外立面意境展示

琶洲南TOD建面约275㎡户型图
建面约275㎡户型,双梯对开门,私属电梯入户,朗阔的LDK大方厅满足新派社交需求。客厅整体开间约7.4m,三阳台、多套房、大衣帽间、大主卫等奢华设计。主套采用双重步入式衣帽间设计,让男女主人拥有独立的风格场。曲面转角飘窗设计,形成全景转角大飘窗,躺着便能欣赏城市风光。

琶洲南TOD建面约313㎡户型图
建面约313㎡户型,双私梯入户,约21.9㎡阔绰专属候梯厅形成“双玄关”。LDKG式的大方厅面积更达到约106㎡,客厅整体开间约7.6m,公区整体进深约13.5m,全屋南向总面宽做到约21.7m,形成连贯而开敞的采光面,加上长达约11.8m南向观景阳台,将窗外景观最大化的引入室内。同时设计了两个南向豪华套房,分置于两侧。
② 成都轨道城市 万科·高线公园
高线公园实景图
成都万科·高线公园作为片区优先革新打造的TOD项目,首发即由轨道城市、万科、美的三家重磅企业联袂打造,以重构时代和世界品位的国际高度立于市场并与成都共创世界TOD典范城市。

高线公园规划效果图
高线公园以“场景营造”破题重构项目业态,在289亩地块上形成一个个不同 “模块”构建起的、开放共享的复合场域,包涵商业、商务、居住、公园等多种形态,覆盖生态、生活、生产等场景。

高线公园生活地图
借助周边生活资源的聚合,未来社区居民在几百米的范围内,就能享受到包括休闲、娱乐、教育、公服等一系列配套,从而形成了“站城一体、城园一体、产城一体”的底色。
高线公园建造的不只是一套房子,还有一座精心构思的微型城市以及生活方式设计。

动线分析动图
规划总建筑面积约50万方,综合容积率仅2.23(其中小高层地块2.5,叠墅地块仅为1-1.5)。在主城用地较为稀缺的背景下,大用地,低容积,已经给未来舒适的居住品质设定了良好的条件。
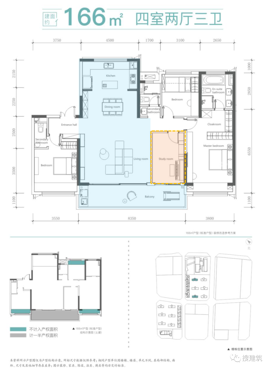
高线公园首开区域,均以公园入户,首期房源建面约166-188m生活灵感大宅,不仅南北通透,部分楼栋更坐拥栋栋观景的绝佳资源。
比如建面约166㎡户型,约47㎡宽阔客厅,厨房带独立中岛,预留西厨空间,满足当代社交的品质要求,2.5卫设计非常人性化。
建面约166㎡样板间实景图
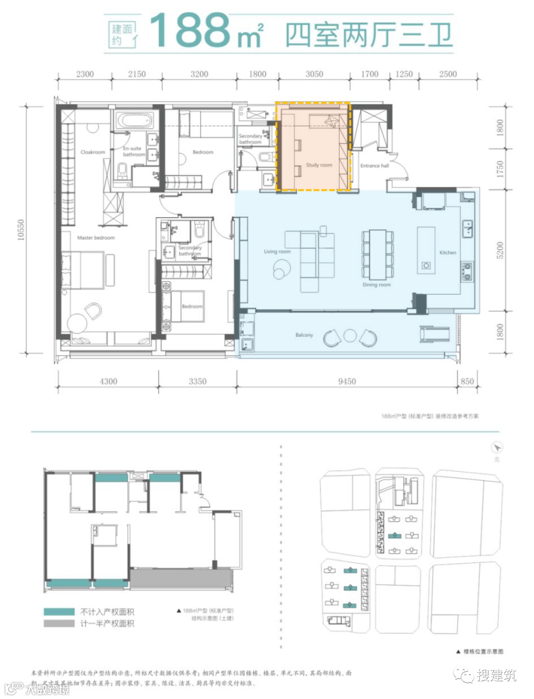
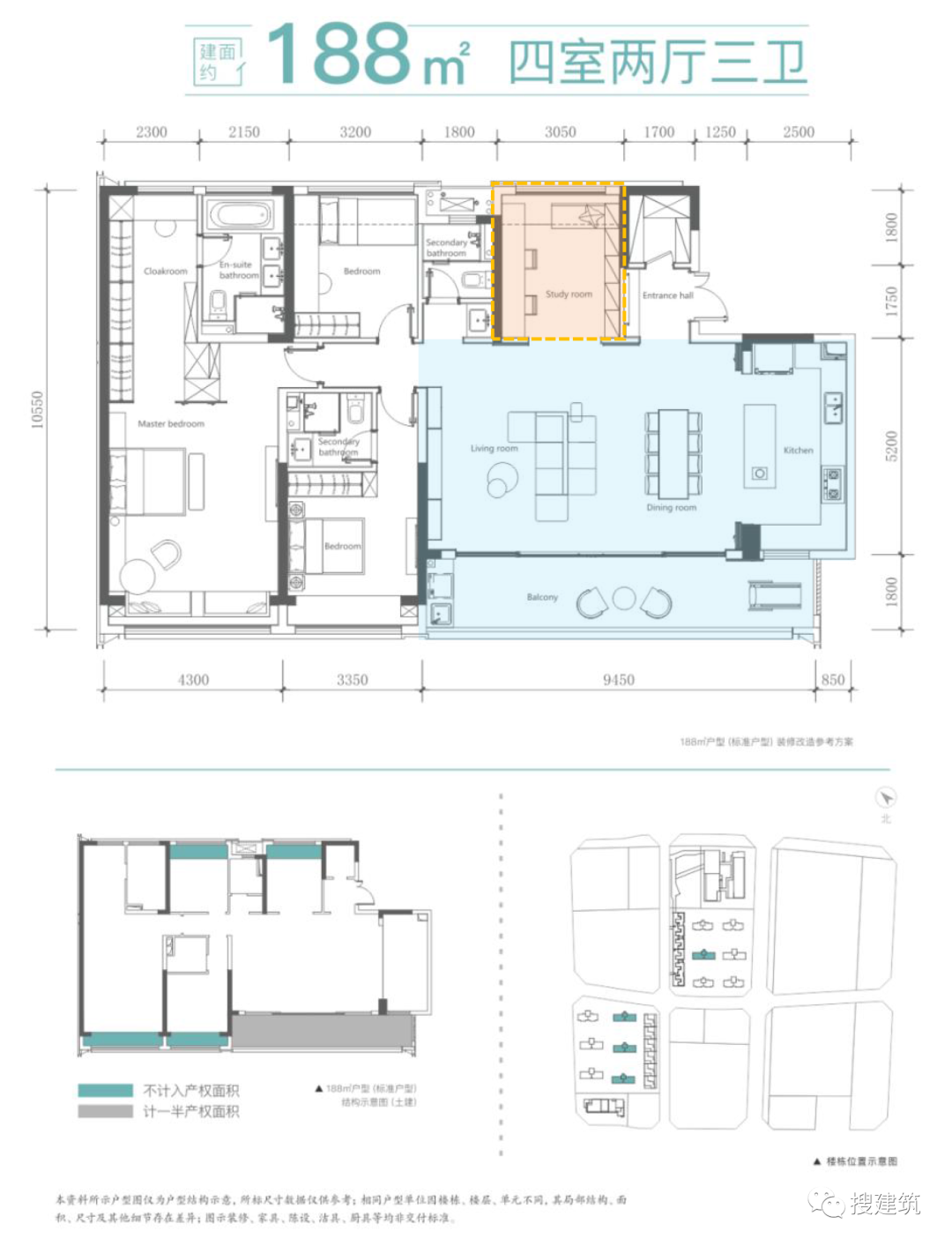
比如建面约188㎡户型,整个横厅约7.8米,加上厨房总长高达10.3米。建筑面积约45平米豪华主卧设计,衣帽间的设计是一大亮点。

建面约188㎡样板间实景图

万科·高线公园 实景图

万科·高线公园 实景图
万科的天空之城系列产品及绿城的杨柳郡系列产品是TOD项目开发的佼佼者。
③ 上海万科天空之城
上海万科联手地铁投资——上海天空之城,在地铁17号线徐盈路车站、徐泾车辆段及周边总计30万平方米的开发范围上,用7年时间,打造出一座集住宅、租赁、商业、办公等多元业态,总建筑面积达80万平方米的“微缩城市”,创新性的诠释了TOD的开发模式。

“天空之城”夜景鸟瞰
上海天空之城整体规划分析

上海天空之城规划总平图
上海万科天空之城三期星之屿是万科积累了三年TOD经验后,根据万科对TOD的理解,推出的全新组团。在TOD核心概念时间、场景和社群上,进行自我进化。
星之屿实景图 摄影:行知影像
星之屿是由致逸设计的住宅,是直接与地铁接轨的地块,在满足无缝衔接高效率生活的同时,场地原有的高架与轨道交通,又给设计带来了很大的挑战。

星之屿整体空间分析
立面风格上延续了一期简洁素雅的现代审美,以竖向构件和水平构件的穿插关系形成有韵律的立面语言。
星之屿实景图 摄影:行知影像
建面约105㎡整个户型紧凑动线,超高空间利用,南北通透,厨房、餐厅、客厅一体化紧密接连,让空间更通透;主卧套房设计,次卧大面宽,一线朝南,保障私密便捷;独立次卫干湿分离设计,尽享室内整洁。

星之屿户型图
建面约125㎡是可变3+1房,约6m超大面宽客厅,多元实用功能,灵活舒适;U型厨房设计,人性化合理动线设计,宽敞实用;超大主次卧一线朝南,采光充足;主卧舒适独立套房,保障私密与便捷。
接下来搜建筑带大家来看杭州的两座天空之城:地铁万科·未来天空之城、地铁万科·彩虹天空之城,两座天空之城彼此对望。

杭州两座天空之城彼此对望
④ 杭州万科未来天空之城-「风之筑」组团
杭州地铁万科·未来天空之城约134万方的巨型TOD综合体中,规划有产业办公、商业、住宅、文化中心、体育中心等复合业态,为区域构建全场景的消费、办公、生活蓝本。以万科杭州“游轮-微缩型城市”理念设计,多维度美好生活复合场景运营。
未来天空之城实景图

未来五常车辆段畅享
整个五常车辆段项目TOD规划有“三轴一径一核心”,即创新产办轴、社区生活轴、文化体验轴、天空之径以及活力中心。创新产办轴呼应未来科技城的城市界面;文化体验轴串联社区服务类公共建筑;社区生活轴为社区人群提供商业消费目的地。

未来天空之城规划分析图
风之筑鸟瞰图
万科·未来天空之城一期交付「风之筑」住宅组团,规划3幢17F高层,3幢10F小高层和8幢6F叠墅。总平面布局整齐划一,非常注重形式感,讲究对称、对位、等分的控制手法,形成了清晰明了而又耐人回味的空间。社区归家流线,从盖下到盖上的场景转变,进入到社区内部时的场景变化,给归家的住户带来移步异景的丰富空间感受。

风之筑社区场景节点的动态演示
叠墅产品立面结合户型功能,进行了创新设计,“通透,整体及框景”极具国际视野,采用了现代公建化的处理手法,结合了现代材料金属杆件的运用,最终呈现的建筑时尚感与科技感。
风之筑叠墅实景图

风之筑叠墅立面生成

风之筑叠墅实景图
风之筑高层实景图
在高层的底层设置了架空层,社区架空层为社区居民提供了无风雨的活动场地,使得活动不受天气的影响,并且赋予一定的功能,在底层打造一个社区交流共享的空间,提升了整个社区的居住品质。
⑤ 杭州万科彩虹天空之城-二期组团「云彩之城」
杭州地铁万科·彩虹天空之城项目总用地面积约19.6万㎡,建面约63万㎡,规划有住宅、集中式商业、街区式商业、办公楼、公园、幼儿园等多种业态的TOD复合项目。

彩虹天空之城效果图(具体以实际交付为准)

彩虹天空之城公园手绘示意图(具体以实际交付为准)

云彩之城鸟瞰示意图(具体以实际交付为准)
云彩之城天空PARK139,建面约139㎡方大4房2厅2卫,每一个空间均以大格局著称:近14米LDK大长厅、约7.1米跑道式阳台、约6.9米超尺主卧以及U型环绕式厨房等,将更加适合多元志趣的盛放,可动可静,任意切换。

云彩之城建面约139㎡户型图(具体以实际交付为准)

样板间示意图(具体以实际交付为准)

样板间实景图(具体以实际交付为准)

阳台示意图(具体以实际交付为准)

云彩之城外立面效果图(具体以实际交付为准)
云彩之城与传统社区的一大差异在于,其拥有更大比重、更多元的生态绿化配置,带给人宛如度假般的全新生活体验。

云彩之城景观效果图(具体以实际交付为准)
⑥ 宁波绿城杨柳郡
宁波杨柳郡项目位于宁波轨道1号线邱隘东站,场地面积约7万平方米,总建筑面积约24万平方米,结构形式为框架体系。其中1~2层为大底盘,划分为8个区块,大底盘的1层为地铁用房,2层为停车场,大底盘上有13幢框架结构住宅,每撞共10层,总高度44.5m,其中住宅部分高30m。

项目基地分析图
宁波绿城杨柳郡 项目鸟瞰图

A区生活馆剖面
简约、现代的建筑风格,极具国际风范的高级灰外立面,再一次令人惊叹绿城强大的产品力。
宁波绿城杨柳郡实景图 摄影:建筑译者姚力

宁波绿城杨柳郡实景图 摄影:建筑译者姚力
⑦ 保利台州·凤起云城
保利台州·凤起云城效果图
保利台州·凤起云城项目总体量超80万㎡,由五宗地块组成,项目商业地块地下车库直接连接S1轻轨客运南站,且整个社区内部的地下车库相互连通,业主可以通过地下车库到达各个区域并直达S1轻轨站点。
交通体系示意图

TOD中心效果图
商业地块包含TOD交通枢纽、5万㎡购物中心、创业空间等各种一站式工作、生活所需配套。将TOD与垂直商业空间结合,通过绿化景观,打造一个公众参与的渗透性公共空间,打破城市空间的单一功能设定,促进综合功能区的开发。
保利台州·凤起云城 邻里中心效果图
住宅组团设置风雨连廊通过架空层将各个住宅建筑相连接,基地二层架设空中连廊,丰富整体立体交通网络体系。空中网络系统在加强基地通行便利性的同时,丰富了竖向空间结构,使得区域空间层次感更强,激发区域整体社交活力。
保利台州·凤起云城 风雨连廊效果图
住宅组团外立面汲取现代极简主义理念,使用铝板立面+大玻璃幕墙打造现代极简立面。形态上,结合台州海洋文化,将传统的直角造型改为圆角造型,形成了兼具流线感和时尚感的外立面形态。
保利台州·凤起云城住宅立面效果图
建筑整体采撷新加坡空中花园设计,打造特色空中邻里共享空间。住宅顶层设置屋顶花园会客厅,居民可体验参与式种植,成为邻里间交流、活动的社交平台。住宅每家每户提供下沉花园阳台,其中设置植物种植池,形成小乔木灌木结合的家家花园、户户采光的通透视界。
◀ 滑动查看 ▶
户型图面积依次为:185㎡、225㎡、115㎡
建面约185㎡户型LDKB一体化,南北通透,约7.9米的大横厅,连接南向双联阳台,附赠超级大花池,营造无边界感的生活氛围。行政级双主卧套房,双台盆卫浴搭配阔绰衣帽空间,尽显奢贵。
建面约225㎡IMAX全明气派户型,入户超大玄关、私家定制中西双餐厅、跑道式阳台......满足豪宅多元化需求。总统级竖向主卧,体验超维度起居方式。
建面约115㎡户型设计方正,约14.5m面宽,南向4开间,独立客厅,横面U型厨房。舒居双套卧,主次卧皆配独立卫浴,静谧便捷,居住妙趣横生。
⑧ 武汉龙湖清能天曜
我们都知道龙湖是中国TOD模式先行者,龙湖清能天曜是武汉超级TOD项目,龙湖TOD4.0开发样本,约78万㎡的综合体,包含购物中心、地铁、公园、学校、住宅、办公等超级大城。

龙湖清能天曜效果图

龙湖清能天曜效果图
高定天字系,龙湖清能天曜双地铁TOD住宅,通过住宅负一层可直通天街与地铁,实现全能业态在地下、地上、空中的互联共享,构建起10分钟立体生活圈。住宅分为A、B两个地块,目前主推一期即A地块,共6栋住宅。

龙湖清能天曜
龙湖清能天曜的公建化外立面极为出挑,运用扎哈哈迪德的特色弧形线条设计,高级灰配香槟色点缀,直线和弧形倒角元素的极致线条,作为龙湖顶级天字系豪宅,颜值足够高。

龙湖清能天曜效果图
建面约128㎡户型,得房率居然高达82%!一上来就甩出南向6.6m的大方厅,近50㎡大LDK一体化设计,简直奢侈的要命!连接客厅和阳台的跑道式阳台,兼顾居家和休闲功能;客卫贴心设计到三分离式,靠近两间次卧,生活更加方便。

龙湖清能天曜建面约128㎡户型图
结语:
TOD住宅大受购房者的追捧,尤其是上班白领精英,如今TOD住宅越来越多,不只是改善、豪宅,即便是普通刚需,一样有的选。
本资料声明:
1.本文为建筑设计技术分析,仅供欣赏学习。
2.本资料为要约邀请,不视为要约,所有政府、政策信息均来源于官方披露信息,具体以实物、政府主管部门批准文件及买卖双方签订的商品房买卖合同约定为准。如有变化恕不另行通知。
3.因编辑需要,文字和图片无必然联系,仅供读者参考;

微信公众号“搜建筑”(ID:sjz9999)
合作、宣传、投稿
联系微信:soujianzhu006














