在上期内容中,我们以《下一刻会发生什么》为题,以430样板间为主轴,从艺术性与故事性切入,抛出了关于摩天居所、大平层及邱德光的“下一刻”的若干假想。事实上,一切“假想”,或可谓之“观念”、“文化”……都不过是丰富产品力的手段:我们立足城市、景观、建筑条件、用户需求及开发商的产品线/品牌基因,创作艺术空间与艺术品,为样板间或售楼处赋予某种主题(如《耦》之于“耦前”,或《宇宙》之于“天际”),让产品在物质与精神的双重维度更好地融于消费者,二者打通后,营销融于产品。本篇,我们由“价值观”回归“方法论”,回归“大平层”这一热点产品在室内设计层面的可能玩法。
#01
没有客研,就只是商品不是产品
以消费者为核心
▲
____________________________
杭州绿城卓越·傲旋城效果图
▲
______________________________________________
傲旋城 平面优化草图,
对131、220、168、430均进行了平面优化
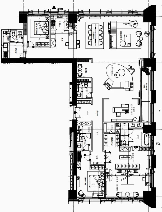
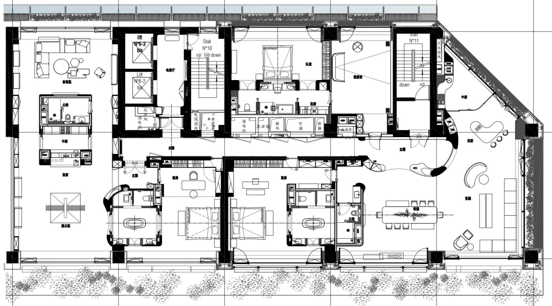
绿城卓越·傲旋城项目中,我们所接受的设计委托不止于430样板间,而是“天空之宅”(即,大平层住宅,位于项目31-64F)整层的平面优化及168、220、430三套样板间设计。若三套样板房同时开放,单一的风格势必会造成消费者的审美疲劳,“差异化”成为我们的不二之选。建立“差异化”,从面积段入手,这是三套样板间的核心差异,直接关联着目标客群及其生活方式的基本差异。我们与卓越集团的设计管理者以项目辐射范围内消费者的产业属性为依据,将“精英、高管、boss”的客户白描进一步细化。事实上,位于滨江区核心处的傲旋城客户构成并不复杂:登上样板房所在的34F,网易、阿里、房天下等总部大楼可尽收眼底。近50家上市公司、约32家独角兽企业汇聚于滨江,衍生着与互联网新物种相关的一切:网络文学、漫画工作室、短视频、网络游戏……它包容所有的“玩物丧志”,也为“专注事业”的人群留一个家。
▲
_______________________________________________
傲旋城 项目简报,以客户为原点界定三种风格
按照年龄层次、消费能力以及户型,我们拟定出三种“人设”:168一居室,应对循着文创与电商产业风向而崛起的超级网红(小说家/漫画家/电竞大神……)他们年轻且拥抱潮流,因无畏而自由;220三居室服务于企业与家的中流砥柱,他们稳步朝前,因责任而仪式;430三居室则指向纵浪大化中,不喜亦无惧,寻求返璞归真的族群,他们因拥有而自由。事实上,这三种颇具代表性的“人设”及其所秉持的生活状态,基本可以概述多数大平层买家的需求,我们推演出一系列“人设模块”,依据城市及项目所在区域的产业,于“模块”之上生长。创作一个家,就像是创作一个剧本,平面与风格皆应“人设”而来。
左右滑动
▲
_____________________________________
傲旋城 168样板间 客厅及主卧效果图
对于年轻族群来说,轻食、乐活才是关键,厨房无需封闭,而是可以融入社交场景,上演餐桌美学;
谁说餐桌无法办公?一物两用,功能由场景定义,自由、自我才是Z世代的主张;
围在一起看电视,那是上代人的社交,沙发的对面不如做展柜吧,有“水晶鞋”和“包”治百病,在家也能拍出“氛围感大片”;
作为资深时尚客,怎能没有一个步入式衣帽间?够大,才够搭出“OOTD”,生活即秀场。
▲
___________________________________
傲旋城 220样板间 客厅空间效果图
人生需要仪式感,不然生活只是一种存在状态。仪式,是区分身份最有效的工具,是凸显自己的特别形式;
适当的中轴对称,在秩序的约束下,造就言行得体的尊贵气质,家就得有里有面;
巴洛克的考究线脚、东方文化沉淀而来的写意山水与圆润的木艺都是值得把玩品赏的经典;
横厅集待客、娱乐、休闲于一体,无缝对接N种生活方式,而阅读区则装得下读书写意,守得住自方天地。
左右滑动
▲
_____________________________________
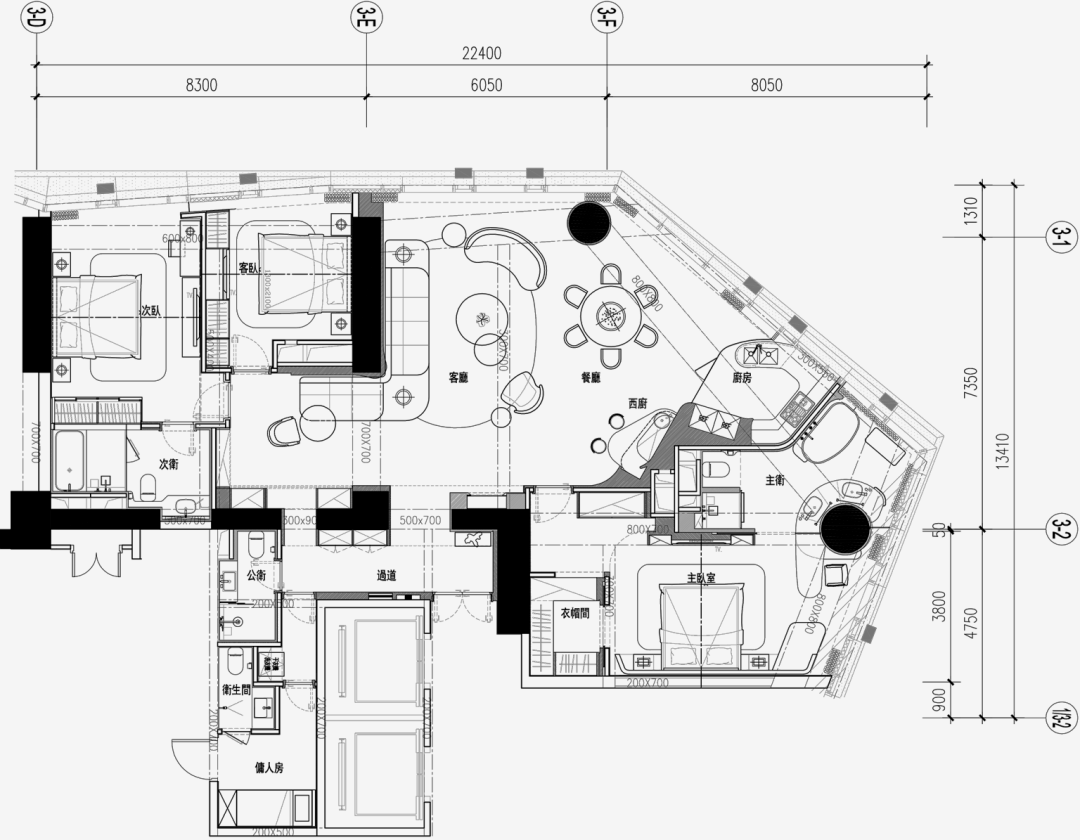
傲旋城 430 样板间公共空间实景图
▲
_________________________________________
傲旋城 430 样板间主浴及衣帽间效果图
对于新一代以家族式居住的消费者来说,家中的长辈极具审美、品味,有着更高生活追求。释放走廊空间,留出完整套卧,满足家庭成员的共好;
调整餐厨功能的位置,与景观阳台形成联动,营造花园式宴饮的氛围。吧台与圆桌同步满足东方的“圆满”和现代生活的“自由”;
对公共空间做整合,以大面积落地窗为核心,自由布置家具,增设临窗阅读区、临窗艺术品等,并对家具高度做严格控制,实现景观最大化;
自由布置不等于“无序”,以透明的壁炉作为公共空间“内建筑”,并使它在任意角度都可“被看见”,以双面沙发形成差异化社交场景,行为动线与视线收放有度;
重新梳理主卧套房的平面布局,建立对称轴,令进入空间的过程如院落般叠进,丰富体验的层次,梳理布局后各功能区面积得到释放,男女分区的衣帽间和三分离式主浴避免生活的干扰,彰显豪宅的雍容尺度。
▲
_________________________________
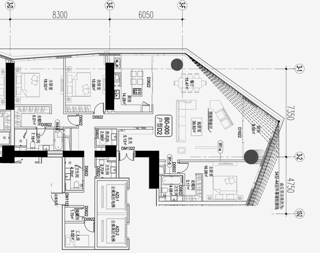
深圳鸿荣源胤璞 366户型,“社交场”自玄关开始,景观阳台、L型窗,以及自由布置的家具赋予空间多元场景可能
▲
_________________________________
佛山保利·天悦 290户 针对佛山气候及茶文化打造半室外茶厅,并创造洄游动线,令所有社交空间与景观阳台相连
在绿城卓越·傲旋城的设计中,我们为每一个“人设”找寻真实的人物对应,并落实到每一处细节,让场景具备叙事的能力。这并非首次,而是邱德光设计的日常:我们曾在深圳鸿荣源胤璞用“东方、摩登、装饰”三种风格应对不同客户需求;在新项目苏州中南中心的项目前期便介入,从年龄层、生活结构、景观面等多方面入手,完成分户设计及风格设定;亦对应“天悦、天际、天珺”等保利“天”字产品线的不同延展中,提供针对性的解决方案。事实上,产品线应对的是客群的画像和定位,而设计,则是走进其内心,实现“连接客户、影响客户、改变客户”的道具。大数据时代,前端的营销定位已然借助技术,解决了“对客户需求或偏好的理性分析”,设计是否需要适当的感性,从情感与想象力的层面,为产品价值升维?
#02
对于豪宅买家,艺术是刚需
艺术化即差异化
杭州绿城卓越·傲旋城,其实是我们直面“购房新物种”的一场试验与实践。有中国硅谷之称的滨江区所聚集的人群是“新造富时代”的最早获利者,他们正在以颠覆性的思维和消费习惯,借助自身所具备的流量优势,改变着我们对于居住和生活的理解。伴随着日益增长的精神消费需求和自我意识的觉醒,“充满个人痕迹”是他们标榜个性的手段。潮流艺术的蓬勃,正以这种消费观为背景。
ALL ART ARE TOYS
ALL TOYS ARE ART
▲
_________________________________
傲旋城 430 样板间玄关,邱德光创作的艺术品《你应当重新成为孩子》
▲
_________________________________________________
北京万科大都会 样板间 插画创作:邱德光设计
▲
_______________________
北京五矿万科如园 玄关
据艾媒咨询发布的《2021年第一季度中国潮玩行业发展现状及市场调研分析报告》显示,中国潮玩行业占全球的比例从2017年的11.18%增长到2020年的19.17%,有望发展成为全球潮玩消费的核心市场之一。数据背后,是受惊喜经济和社交情感需求等影响,先后“下海艺术”的明星人物及大众消费者。事实上,“拥抱艺术”对于豪宅并非新鲜事,最早的美术馆就是某个家族的私宅,而“潮流艺术”不过是艺术的时代语言。在傲旋城的430样板间中,玄关处的雕塑将“云层、童趣”两大设计主轴相连,成为入户第一眼的点睛之笔,而空间艺术与艺术品在主题及形态上的结合则强化了产品的“独一无二”。无独有偶,插画《北京大都会》亦是为北京万科大都会产品而创作,旨在以像素点阵,将城市文化、大平层住宅的窗景、模块化生活方式等融为一体。而在北京五矿万科如园的玄关,地面以拼花形式将北京的中轴线纳入,加持大平层豪宅的尊崇感。
左右滑动
艺术即观念,独特的观念和生活方式能让项目变得稀缺。而对于豪宅买家来说,“占有稀缺”是他们买单的加速器。不论是最早的信义之星、星河湾,还是近期发布的耦前别墅、拙政江南、保利天际、傲旋城……我们创作或选用艺术品,以空间塑其形,以项目所在城市的文脉、品牌的基因或消费潮流赋其魂,实现艺术品、艺术空间、艺术家具的完整链路。对于邱德光设计,艺术创作并非目的,而是使产品区隔于竞品、对话终端消费者的媒介。
#03
设计让场景叙事
创新回归生活方式
细数过往邱德光设计所参与的大平层(住宅或公寓)产品,标志性特点不外如是:优越的地段、核心的城市资源与服务、扁平化功能、大面宽与全景观。撇开地段与资源,在室内设计中,如何最大化“大平层”的卖点?我们筛选过往案例,试图总结几条“方法论”。
1.最大化景观优势。“以视界定视野”,这句宣传词几乎可以通用至所有的大平层产品,而如何界定“视界”是室内设计的专长。譬如,在海天中心,一座“东向取海景,西向取天色”的超高层住宅中,我们借助动线调整及材料语言,让海景贯穿客餐厅、厨房、浴室与卧室……无处不在。
左右滑动
▲
___________________________________________________________
青岛海天中心 客餐厅效果图 透明厨房进一步最大化观海视野
2.建立与自然的连接。作为别墅产品的竞品,大平层在“与自然的关系”上,占据劣势。身居高处,自然便只可远观而无法亲近。阳台或露台设私家花园,这是大平层在建筑中的常规动作,而建立室内与阳台的交互性,让自然更多融入生活则是室内产品的营造法。譬如在北京万科如园的设计中,经过设计的调整,空中庭院的微景观与西厨吧台形成联动,营造出花园式就餐的生活美学。此外,对“山、水、云”等自然之物的符号呼应亦是抚慰大平层“自然乡愁”的解决之道。
左右滑动
3.建立场景交互。动区拥有足够空间是大平层的明显趋势,甚至连面积段较小的户型都更加注重社交的品质而非房间的数量。除去私人泳池、空中花园、空中车库等“附加场景”外,如何灵活配置空间,建立社交互动是大平层更为关键的议题。譬如,深圳兆鑫汇金广场D2户型的平面布局以半开放的品茗区为核心,统领公共空间。它将结构柱隐于造型和功能中,作为玄关空间的变体,满足入户的仪式感。而从场景来看,它既能与卧室、客厅、书房形成联动,亦能隔出一处独处空间。
▲
_________________________________
深圳兆鑫汇金广场 D2户型(局部)
▲
_________________________________
深圳兆鑫汇金广场 D2户型效果图
4.生活模块化。“变化”是这个时代唯一的“常量”,它“波及”家庭结构、生活方式、审美意趣的方方面面。室内设计或可将生活场景切分为若干模块,将空间转化为一种“容器”,使之适应居者的个性喜好不断变化、组合、生长。在北京万科大都会项目中,我们将功能组团和户型都分解为模块,并提出不同组合方式的参考,以供大平层买家们自由重组,甚至扩张。
▼
________________________________
北京万科大都会 超级玩家 平面图
▲
_________________________________
北京万科大都会一梯一户平面图
未完……
以上几点无法概述每个个案的全貌,我们仅以此文作为“阶段性回溯”,而杭州绿城卓越·傲旋城则是邱德光设计现阶段方法论的综合者,凝结着关于客户研究、价值优化、自然元素……以及艺术与商业的思考。当创意已从潮流演变为生产力,室内设计如何“玩转”大平层?我们期待“下一刻”的答案。
房企如何突破
高品质住宅·专题考察+房企论见会
本资料声明:
1.本文为建筑设计技术分析,仅供欣赏学习。
2.本资料为要约邀请,不视为要约,所有政府、政策信息均来源于官方披露信息,具体以实物、政府主管部门批准文件及买卖双方签订的商品房买卖合同约定为准。如有变化恕不另行通知。
3.因编辑需要,文字和图片无必然联系,仅供读者参考;

微信公众号“搜建筑”(ID:sjz9999)
合作、宣传、投稿
联系微信:soujianzhu006

