
格兰德(Gerland)游泳馆由建筑师托尼-加尼埃(Tony Garnier)建于 1932 年,曾在 1899 年获得罗马大奖(Grand Prix de Rome),并被列入法国历史古迹名录。格兰德水上运动中心位于里昂的马特穆特格兰德体育场(Matmut Stadium de Gerland)内,重新规划了托尼-加尼埃(Tony Garnier)发起但未完成的 “运动员区”。该项目现在是一个向公众、在校学生和职业橄榄球队里昂奥林匹克大学(LOU Rugby)开放的体育场馆。该项目包括一个训练表演中心、里昂奥林匹克大学橄榄球队办公室以及一个水上健康和健身中心,所有这些都经过重新设计,以满足当前的期望。
The Gerland swimming pool, built in 1932 by architect Tony Garnier, a Grand Prix de Rome winner in 1899, and listed by the French Monuments Historiques authority, just received a spectacular extensive renovation. Situated within the Matmut Stadium de Gerland complex in Lyon, the Gerland Aquatic and Sports Center reimagines the "Athletes' Quarter", initiated but left incomplete by Tony Garnier. This project now provides a sports complex open to the public, school students, and the professional rugby team, Lyon Olympique Universitaire (LOU Rugby). The project includes a training performance center, offices for LOU Rugby, and an aquatic wellness and fitness center, all redesigned to meet current expectations.

整个场地以 1913 年设想的基本要素为基础,主要是格兰德体育场(Gerland Stadium)的纪念性入口,即 “狮子大道”(Allée des Lions)。项目的重点是对入口处以及现有的游泳池、看台和跳水台进行改造。为了打造这一改造项目,三个主要体量由中间体块连接,形成渐变的高度。最高的体量作为游泳池和历史悠久的跳水台的背景,现在已变成一个雕塑品。较低的两个体量则是修复后的看台。
The site as a whole relies on the fundamentals envisioned in 1913, primarily the staging of the monumental entrance to the Gerland Stadium, known as the "Allée des Lions". The project focuses on enhancing this entrance along with the existing pool, bleachers, and diving platform. To create this enhancement project, three main volumes are connected by intermediate blocks, resulting in graduated heights. The tallest volume acts as a backdrop to the pool and the historical diving platform, which is now transformed into a sculptural object. The two lower volumes frame the restored bleachers.

新建筑环绕着由看台划定的外部水上空间,为现有的游泳池创造了理想的环境。新建筑的设计充分利用了托尼-加尼埃(Tony Garnier)在该场地所有项目中采用的 7.50 米网格。为了避开作为 20 世纪遗迹而保留下来的前 “运动员区 ”的碎混凝土地基,该网格被加倍并移动了位置。该项目旨在恢复与泳池遗产价值相匹配的外观。重建计划包括修复看台、地基和现有的跳水台。
The new buildings, surrounding the exterior aquatic space delimited by the bleachers, create the ideal setting for the existing pool. Their design takes advantage of the 7.50 m grid applied by Tony Garnier to all the projects on the site. This grid is doubled and shifted to avoid the crushed concrete foundations of the former "Athletes' quarter", preserved as vestiges of the 20th century. The project aims to restore a presentation that matches the pool's heritage value. The redevelopment plan includes restoring the bleachers, foundations, and existing diving platforms.

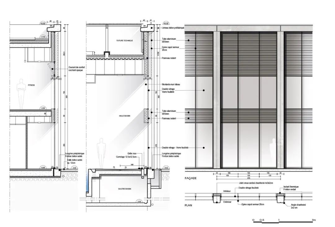
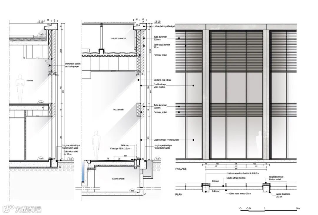
混凝土的使用参考了托尼-加尼埃(Tony Garnier),他是混凝土应用的先驱。项目建筑遵循混凝土门廊的原则,在两个主要立面上勾勒出规则的网格。这些门廊为细长的大梁提供支撑,可灵活适应各种用途,如办公室、运动区和游泳池。在前景中,它们提供了明显的统一性,而在背景中,门廊的深度在 40 厘米到 1 米之间变化,以适应不同的用途:幕墙外墙可适应不同的用途和朝向,南侧的遮阳板和北侧的木廊在视觉上将办公室和浴池区分开来。室外游泳池南侧的建筑是 LOU Rugby 公司的总部办公室。从城市和建筑设计的角度来看,这座大胆的建筑与场地的历史和谐地融为一体。雄狮大道上的体育场入口处采用了不朽的裸露混凝土门廊,这与托尼-加尼耶最初设计的新古典主义风格不谋而合。
The use of concrete references Tony Garnier, a pioneer in its application. The project's architecture adheres to the principles of concrete porticoes, outlining a regular grid on the two primary facades. These porticoes serve as support for the elongated girders, allowing flexibility and adaptability for various purposes such as offices, sports areas, and a pool. They provide visible uniformity in the foreground, while in the background, the portico depth varies between 40 cm and 1 m, accommodating diverse uses: a curtainwall facade adaptable to uses and orientations, sunshades on the southern side, and loggias on the north create visual separation between offices and bathers. South of the outdoor pool lies a building that serves as the headquarters office for LOU Rugby. Its bold architecture harmoniously aligns with the site's history as well as from an urban and architectural brief standpoint. Monumental exposed concrete porticoes define the entrance to the stadium on Allée des Lions, which refers to the neoclassical style of the original project by Tony Garnier.

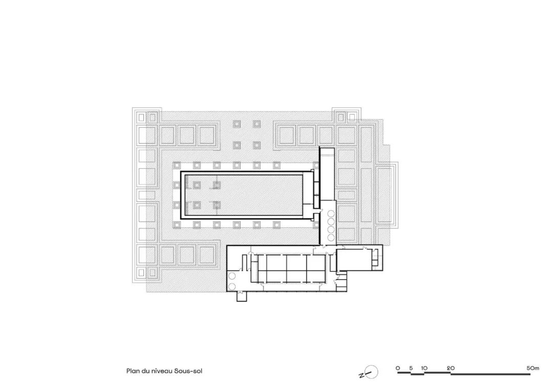
西楼位于 0 层,是游泳学习区。其中包括一个有四条泳道的 25 米游泳池和更衣室。大厅通向室外游泳池、周围的海滩和看台。45 米长、6 条泳道的北欧式泳池建在托尼-加尼耶设计的泳池内,至今仍能看到他的身影。它由游泳区和水上娱乐区组成。水深从原来的 5.40 米减至 1.80 米,以避免过多的水耗、能耗和含氯产品的消耗。不再使用的 10 米跳水台已退役,并被重新改造成雕塑。1 层设有一个向公众开放的健身区。部分技术地下室层包括游泳池。东楼是专业体育馆。0 层为训练区、跑道、室内人造球场和理疗室;1 层为休息区、视频观看室和办公室。其建筑结构与西楼相同。
The West building, located on level 0, houses a learning swimming area. This includes a 25-meter pool with four lanes and dressing rooms. The hall opens onto the outdoor pool, surrounding beaches, and bleachers. The 45-meter, six-lane Nordic pool is constructed within the one designed by Tony Garnier, whose physical trace is still noticeable. It comprises a swimming area and an aquatic well-being zone. The original depth of 5.40 m has been reduced to 1.80 m to prevent excessive water, energy, and chlorinated product consumption. The 10-meter diving platform, no longer in use, has been decommissioned and repurposed into a sculpture. Level 1 features a wellness and fitness area that is open to the public. A partial technical basement level encompasses the pool. The East building is dedicated to professional sports. On level 0 are training areas, a running track, a synthetic indoor field, and physical therapy rooms; on level 1: are lounge areas, video viewing rooms, and offices. Its architecture is identical to that of the West building.

格兰德水上运动中心(Gerland Aquatic and Sports Center)的蜕变呈现出一种统一的建筑构成,既能与周围环境完美融合,又能容纳多个嵌套项目。该项目是对该建筑的致敬:其门廊建筑、裸露的混凝土、屋顶露台以及外墙装饰的简洁性,都有助于与托尼-加尼埃(Tony Garnier)已在该地建造的所有现有建筑在建筑形式、结构和使用上保持一致。
The Gerland Aquatic and Sports Center metamorphosis presents a unified architectural composition that seamlessly fits into its context, while also housing multiple nested programs. The project is a tribute to the building: its portico architecture, exposed concrete, roof terraces, and the sobriety of the ornamentation of the facades contribute to the formal architectural, constructive, and usage coherence with all the existing buildings already constructed on the site by Tony Garnier.

平面图
平面图
立面图

剖面图

示意图
摄影:Vladimir de Mollerat du Jeu, GLEvents, 4_32 architecte
本资料声明:
1.本文为建筑设计技术分析,仅供欣赏学习。
2.本资料为要约邀请,不视为要约,所有政府、政策信息均来源于官方披露信息,具体以实物、政府主管部门批准文件及买卖双方签订的商品房买卖合同约定为准。如有变化恕不另行通知。
3.因编辑需要,文字和图片无必然联系,仅供读者参考;

微信公众号“搜建筑”(ID:sjz9999)
合作、宣传、投稿
联系微信:soujianzhu006