第四代住宅随着各地政策的推出,国内已展开对相关住宅产品的探索,不仅是建筑行业技术层面的迭代,同时也是各大房企的创新发展方向。
武汉·创新趋势
第四代住宅+高品质

温馨提示:武汉楼盘活动,本次安排6-7个精品项目+分享会,部分项目根据现场情况可能会有调整。感兴趣的朋友请及时报名。
报名+咨询

咨询微信:soujianzhu03

咨询微信:soujianzhu008
2、联系电话:181 3265 7351(微信同号)
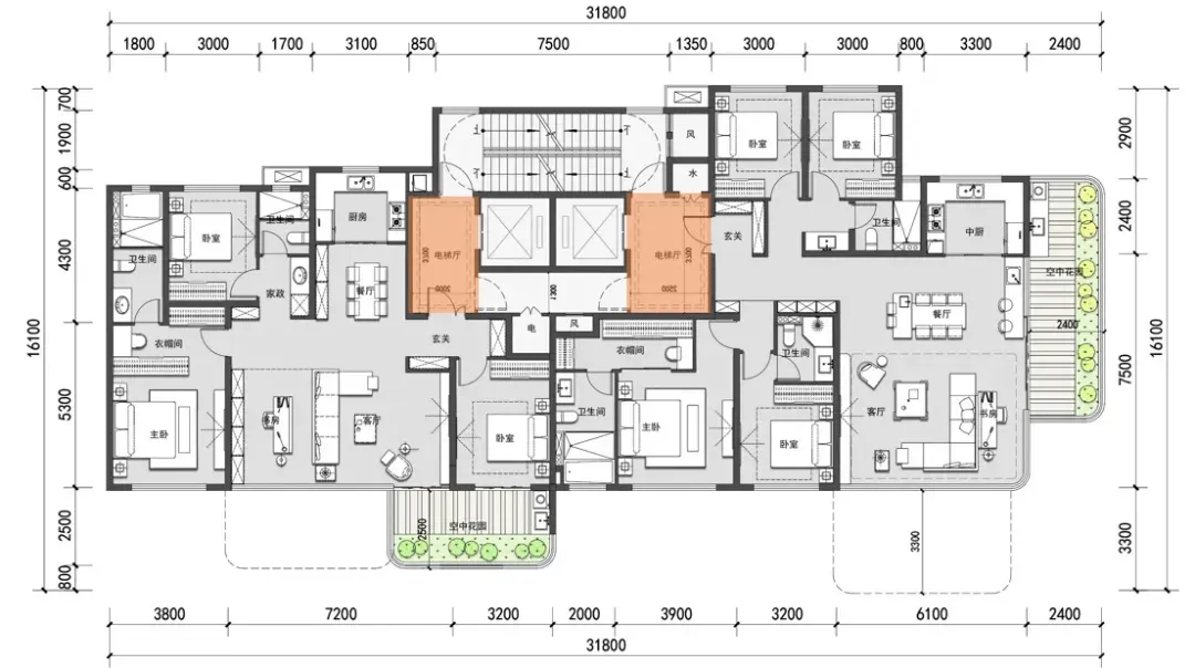
招商·武昌序
建筑设计:上海霍普建筑设计
景观设计:广州山水比德设计

项目力邀建筑设计界的领军人物霍普建筑事务所龚俊大师操刀。“扎哈曲线”式的立面,以流动的线条设计打造超流体美学。建筑整体采用了全铝板和玻璃幕墙体系的组合,搭配高达约0.48超大窗墙比,勾勒轻盈、现代的“云翼建筑”造型,闪耀内环天际线。
高难度曲线线条工艺、定制级曲面玻璃、LOW-E玻璃+铝板及石材豪宅质感用材等,每一项工艺,都是对细节的极致追求。主立面层间设计,从宝格丽奢侈品中汲取灵感,上下哑光金铝板,中间高透克莱因深蓝玻璃,完美呈现高定质感。
初见武昌序,80米宽的大门以“长卷”的形式展现于城市。爱马仕灰光面大理石以其独特的网状纹理与温润质感回应了武昌核心区域厚重的历史。

照壁前的雕塑通过盘旋上升的抽象手法,将“燕”与“序”交汇相融,去形取义,象征着不断升华的人生之序与和谐自然的家庭之序。
“自去自来堂上燕,相亲相近水中鸥”,“燕”元素贯穿整个社区。由菱形折板打造的百燕归吊顶寓意繁荣与希望,为每个家庭开启未来美好的序章。
-
步行归家:业主可通过入口台阶和水院,进入社区大堂。 -
驾车归家:业主可以直接驶入地下车库,再进入社区大堂。随后,右侧的垂直电梯将业主带至大区台地。

利用场地高差,地下一层地库西侧入口与城市道路平接,与传统的坡道车库相比极大地提升了归家感受。同时利用社区内台地高差,在2#楼的住宅大堂,创新性地打造结合车库的双层挑空大堂。

住宅底层架空基座由海蓝宝石材与香槟灰金属全部包裹。海蓝宝石材呈现出独有的海浪式纹理好似汉水的蜿蜒与流动,自然的艺术与地理文脉在坚固的表面完美交汇。
左右滑动查看更多户型图

样板间实景图
中建壹品汉韵公馆
建筑设计:武汉天华 / 景观设计:山水比德
中建壹品汉韵公馆,武汉第四代住宅,对露台、隐私露台与阳台占比、核心筒等三项进行专业论证研究,建立了一套垂直体系。汉韵公馆的空中花园,采用南向或东西向布局,奇偶交错,进深控制在3.6米以内。


图片为过程演绎稿,非终版

中建壹品汉韵公馆规划了玻璃幕墙为主,配以铝板线条和金属漆打造的颜值派外立面,加上独特的弧形造型,质感十足。

为业主入住体验更好,露台花园也列入精装。绿化部分采用降板处理,配置自动灌溉系统,预留排水孔,绿植尽量选低矮、易打理、四季常绿,保证空中花园完成面相对统一;同时配置太阳能灭蚊灯,避免后期维护和蚊虫。

图片为示意稿,非终版
与此同时,为了解决采光遮挡的隐患,中建壹品兵分两路,南侧和山墙侧交替设置边户的空中花园,减少对自身的采光影响,中间户的空中花园,设置区域排除主卧,进深控制在2.4m-2.9m之间,精细化模型测算,满足上层住户的采光需求。

这次专门邀请豪宅景观大咖山水比德执笔,将项目自建的口袋公园与社区大门融合,60米长的赤红廊桥、汉宫屋顶的奢阔门楼,让业主从公园归家。
户型设计亮点:超高赠送面积,近乎零公摊,配备宽敞的露台、大阳台及多个飘窗;每户均享有私密花园,6米挑空露台花园为您的居住增添舒适度;室内空间通透,采用南向大开间设计,超高窗墙比例,巧妙奇偶错层布局。
左右滑动查看更多户型图

武汉城建金地和悦G地块
武汉城建金地和悦包含7个地块,涉及7栋商业楼、12栋小高层及高层住宅、19栋多层住宅等,整体容积率约2.0,整体建筑密度约32%,绿地率约30.91%。其中,G地块即为武汉首个第四代住宅试点项目。项目位于武汉市蔡甸区中法生态新城核心板块,周边交通、教育、医疗、商业等配套齐全。

【高层立面】

【
洋房立面】

【叠拼立面】

极致赠送户型,突破规范,打造武汉首个“空中花园”。通过错位视线分析及格栅构筑物精细化设计实现同层不可见、上下不可视,最大可能地保障了住户生活的私密性,实现邻里无干扰。
▲ 项目实景

【洋房116平端户户型】
绿城 · 桂湖雲翠
建筑设计:GMA建筑设计
景观设计:GTS>E景观设计

▲ 项目实景


▲ 项目实景
项目产品比较丰富,包含了高层、洋房还有叠拼等多种产品,面积段设置为200-220平的别墅,145-160平的洋房,120-160平的高层。
左右滑动查看更多户型图
中国铁建·花语汀澜
中国铁建·花语汀澜位于武汉汉阳区,总建面约17.19万方,坐拥约1600米龙阳湖湖岸线,三面观湖视野,外揽王家湾繁华商圈,每一寸空间都呈现高规格的居住品质,是主城二环专属的墅质岛居生活范本。

项目私享270°观湖生态景观视野,是主城内极为少有的低密墅区。以奢阔尺度,敬呈恢弘格局:规划约5000㎡中央私享花园,双会所私享空间,户均MAX巨幕宽厅。

项目实景图
<< 左右滑动查看下一张图片 >>
叠墅户型图
传承知音文化,项目将古“江城十景”融入园林景观之中;以中央景观轴为核心,通过植物高低差营造出立体景观效果。
当你置身其中,肉眼测量景观与建筑的退距,叠拼与叠拼之间、叠拼与高层之间、与外部道路之间的尺度,所谓更高维度的生活即是如此。
中央景观轴实景图
<< 左右滑动查看下一张图片 >>
住宅户型图
龙湖·御湖境
龙湖·御湖境位于武昌核心,千年文脉武珞路之上,沿线汇聚着政务、商业、文教(大学)和医养等全能顶配资源,是公认的黄金地段。
基地方正、地势平坦,作为全国第七座、武汉第一座,御湖境将传承武汉文化贵脉、打造臻奢美学意境。
充满巧思的“城市玄关”和社区入口,摒弃了传统的阵列式大门,巧妙向后退让了约600㎡,形成了一个充满仪式感的“神性空间”——它有个好听的名字,叫「云梦光庭」。

示范区位于大区轴线的北端,这一区域被精心设计,旨在充分展示出卓越的沿街界面,向外界展示社区的高品质形象。
同时,在内部空间设计上,130㎡黑金沙弧形整石打磨的圆形水盘,和约5.8米高的火山岩板电动移门,奢华程度堪比“王府级”。我们致力于打造具有极高识别度的社区入口和温馨的归家大堂。
⊙艺术酒店级社区大堂


⊙湖光水院



车库实拍图
武汉101
当前,城市更新正以前所未有的速度和规模展开。武汉101基于城市更新的发展底盘,择址内环滨江黄金热土,1KM内五大都会绿洲环绕、亚洲4D交通枢纽……以“Park-TOD”的独创构想,激活城市空间,进而实现土地的二次增值,这是目前先进的城市开发模式。
武汉101打造国际级豪华酒店隐奢意境,让每一次回家变成了入住八星级的酒店礼遇,我们的入户前场是对标当前全球最具归家仪式感的曼谷四季及深圳柏悦酒店,以国际化的视野定义高端豪宅前场空间;
超100㎡的光之幕墙,两侧爱马仕灰天然奢石一字铺开,犹如守望业主归家的精神符识,搭配重约1.2吨、造价20万的武昌第一豪门,时刻烘托出超五星酒店的体验感。
武汉101将全球星级酒店设计标准,融入地下车库空间。
武汉101|车库实景图
武汉101楼栋总高41层,中低区主力户型约168-354㎡,高区有少量约850㎡半层户型被命名为湾流850产品,放眼全国都是前所未有的豪宅尺度超越。
武汉101|湾流850㎡样板间实景图
武汉101|湾流850㎡样板间实景图(具体以实际交付为准)

武汉101|样板间实景图
中海·东湖玖章
中海·东湖玖章位于中北路和黄鹂路交汇处,在楼市划分中属于中北路板块,行政划分属于武昌区,位于内环线上,属于正内环。

入口处设置一面巨大的艺术景墙,使用具有玉石肌理的石材,既能够展现出玉隐奢低调的意境,又能够凸显出艺术价值玉石在中国文化中一直被视为吉祥、富贵和纯洁的象征,因此,使用玉石肌理的石材作为艺术景墙的材料,不仅能够传达出一种高贵和奢华的氛围,还能够与展示区的主题相呼应,提升整体的艺术品味。

项目整体规划空间通透,步行通廊串联东西两侧广场空间。沿东湖面形成错落有致、天际线丰富。

中海式精装标准:防弹级门窗体系;一体化集成吊顶;场景式净层高;烟道消失术;墙缝消失术;品牌厨卫高标体系等百道精工细节若非亲鉴,不足以心领神会。
项目湖景资源利用最大化,户型产品设计精心营造空间阔度,灵动空间设计,洄游仪式空间,广阔观湖视野,视野极佳。住宅首层无界架空,释放景观空间。
<< 左右滑动查看下一张图片 >>
【活动报名】
■活动组织:
主办方:搜建筑 & 经典人居
报名+咨询

咨询微信:soujianzhu03

咨询微信:soujianzhu008
2、联系电话:181 3265 7351(微信同号)
2024年·新产品方向
《 品牌地产 | 精品楼盘活动 》
杭州、苏州、上海
成都、郑州......
广州、福州、重庆
西安、青岛......
扫描二维码 加好友咨询
领队微信:soujianzhu03
本资料声明:
1.本文为建筑设计技术分析,仅供欣赏学习。
2.本资料为要约邀请,不视为要约,所有政府、政策信息均来源于官方披露信息,具体以实物、政府主管部门批准文件及买卖双方签订的商品房买卖合同约定为准。如有变化恕不另行通知。
3.因编辑需要,文字和图片无必然联系,仅供读者参考;
推荐关注
全球精品楼盘考察
扫描二维码关注
微信公众号:全球精品楼盘考察
合作、宣传、投稿
联系微信:soujianzhu006


