▲ 更多精品,关注“搜建筑”
DYML新作
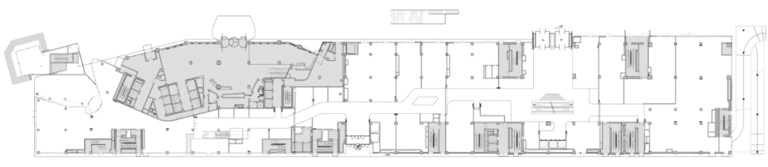
Project Overview
三里屯一号场T+MALL城市更新项目位于中国北京朝阳区南三里屯路一号,建筑面积为25,000平米。项目位于繁华的三里屯十字路口处,改造后整体定位为聚焦年轻力消费者的【头号玩家聚场】,突破传统商业场景和边界,用先锋潮流、城市运动、文娱复兴、宠物友好、慢调治愈和数字艺术来链接,塑造折叠时空的AB面生态商业,通过对全时域消费、双面派生活的积极探索,充分发挥引领年轻力的目标群体对三里屯一号场这个城市空间的想象力。
Design Background
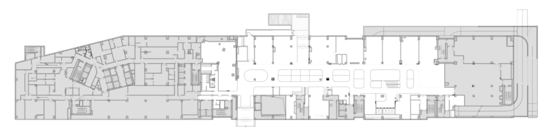
改造前的三里屯一号场T+MALL为通盈中心,以餐饮业态为主。主入口位置隐秘,动线单一。
难以满足新世代消费者的体验需求,空间布局也不符合业主升级定位的要求。随着消费趋势的转变,通盈中心面临着继续改造、升级的压力
Design Concept

▲三里屯一号场T+MALL © DONG建筑影像
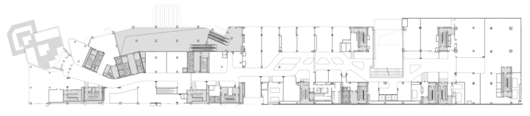
aterlier DYML设计之处,便发现项目的最大痛点。因此梳理了几大逻辑:最关键的【主入口位置】进行打造爆点,同时【升级室内的流线】,预留更多的【运营弹性】【特色空间】,以科技潮酷的硬核手法进行【风格的焕新】和【多变的场景】。最后玩家打卡通关的概念,一共打造了4个玩家关卡。分别是【头号舞台】、【玩家营地】、【幻影魔方】和【潮流隧道】。

TOP STAGE
我们在三里屯繁华的十字路口处,重新梳理了场外+场内+入口关系,通过一个全新LED竖屏和层叠趣味的大台阶,把商业的主入口拉至二层,也形成了有高度的看景舞台。在城市空间新的入口可以聚焦更多人气与活力,提供给室外主广场举办更多活动的机会。也成为了项目的崭新的标志。让设计与运营能够相辅相成

▲三里屯一号场T+MALL © DONG建筑影像

▲改造后的主入口成为了人们逗留、交流的场所 © DONG建筑影像

▲三里屯一号场T+MALL © DONG建筑影像
CAMP
我们在东广场规划了城市营地、露营绿地、闹市庭院、玩家入口等一系列空间,把室内外的边界通过餐饮外摆进行渗透。让更多的消费者社交、商业场景在商业的外部随时随地发生。
▲新增的下沉广场,联通了地面和地下© DONG建筑影像


▲三里屯一号场T+MALL © DONG建筑影像

▲三里屯一号场T+MALL © DONG建筑影像

▲三里屯一号场T+MALL © DONG建筑影像
CUBE

▲三里屯一号场T+MALL © DONG建筑影像
我们把原有封闭的主中庭改造成了可以根据不同活动、不同IP内容、不同节日随时可变换灯光和内容的光影盒子,在两侧采用了LED屏幕,增加了多媒体的互动和展示。焕新后的主中庭提供更多机会让不同的消费族群在这里举办属于年轻人的聚会。

▲剖面图 © atelier DYML

▲三里屯一号场T+MALL © DONG建筑影像

▲三里屯一号场T+MALL © DONG建筑影像
SPACE TUNNEL

▲三里屯一号场T+MALL © DONG建筑影像
重新布局和升级的室内空间,以冷峻、硬朗、科技风为主,我们以简约、矩阵、韵律的手法,制造出空间的秩序感,让更多的画面,留给精彩纷呈的品牌店铺。
整体室内的色调以黑白灰为主。不同质感的材料,如人造水磨石、雾沙面不锈钢、灯膜在狭长的空间中可以秩序的排开,行程方向性,和空间的动线互相配合。

▲三里屯一号场T+MALL © DONG建筑影像
三里屯一号场T+MALL PROFILE
▲立面图
视觉信息
▼ 更多精品·点击关注

本资料声明:
1.本文为建筑设计技术分析,仅供欣赏学习。
2.本资料为要约邀请,不视为要约,所有政府、政策信息均来源于官方披露信息,具体以实物、政府主管部门批准文件及买卖双方签订的商品房买卖合同约定为准。如有变化恕不另行通知。
3.因编辑需要,文字和图片无必然联系,仅供读者参考;

微信公众号“搜建筑”(ID:sjz9999)
合作、宣传、投稿
联系微信:soujianzhu006


