▲ 更多精品,关注“搜建筑”
在产品力卷生卷死的市场上,这两年143㎡户型爆发,成为楼市一个炙手可热的热销密码,引得众多房企争相开发。
143㎡产品的出圈虽然是“政策的产物”,但也呈现出了现象级的产品创新、全维度超配。
143㎡可以匹配二胎家庭或者三代同堂家庭的使用需求,还能兼顾功能性和居住舒适性,在空间尺度感上也可以做出高品质感,带来比肩160/180㎡级甚至更大面积段的越级享受。
1
各大地产为143做了哪些「突破」
1、超大胆——全盘只做143㎡
站在客群的角度,前瞻性的洞察市场需求,做差异化的高端爆款之路,对比市面上众多产品,大胆将面积段精准的锁定在143㎡、全盘只做143㎡,将纯粹性和均好性是做出最彻底、最坚决的创举 。
比如,成都能建·锦誉府、成都锦江璞园、南京颐和云台源筑等,整个小区只有一个面积段——约143平米,唯一的户型设定,保障了小区居住圈层的绝对纯粹。
左右滑动查看更多
当今市场上,143㎡已经卷成了麻花,但有些地产却依然大胆选择只做143㎡,而且还做了不同的143㎡,给购房者更多选择空间。
【 边厅 & 横/方厅 】
比如,昆明邦泰·璟和:
端户A户型:独立电梯入户、约56㎡的LDKB一体化超级社交厅、270°无转柱曲面屏设计,全景舱视野、约32米超大景观面,连次卧都做了270°全景采光……

▲ 昆明邦泰·璟和建面约143㎡ 端户A户型
B户型:独立电梯入户+超大赠送独立花厅、超66平LDKB超级社交厅、动静分区……

▲ 昆明邦泰·璟和建面约143㎡ B户型
比如,成都华润置地·上璟润府
143㎡端厅,270°超广角采光观景,又实现超50㎡的端厅社交空间,这样奢华的中央社交秀场,让窗户成为你的专属取景框,拉开公园生活的“全屏”大幕。此外另外一大亮点就是在餐厅旁边设计的多功能第三厅,以充足的可变空间,应对家庭的全生命周期。

▲ 成都华润置地·上璟润府约143㎡端厅户型图
▲ 143㎡创意样板间实拍图
143㎡横厅,MAX空间奢享,五面宽朝南、独享约16.9m采光面、约8.3m阔尺度阳台、入户独立储物空间……细节之处同样彰显匠心。

▲ 成都华润置地·上璟润府约143㎡横厅户型图

▲ 意境图
【 不同代际关系模式 】
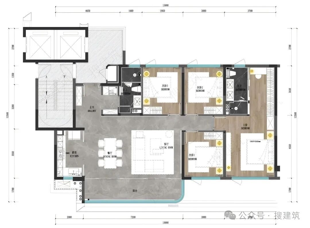
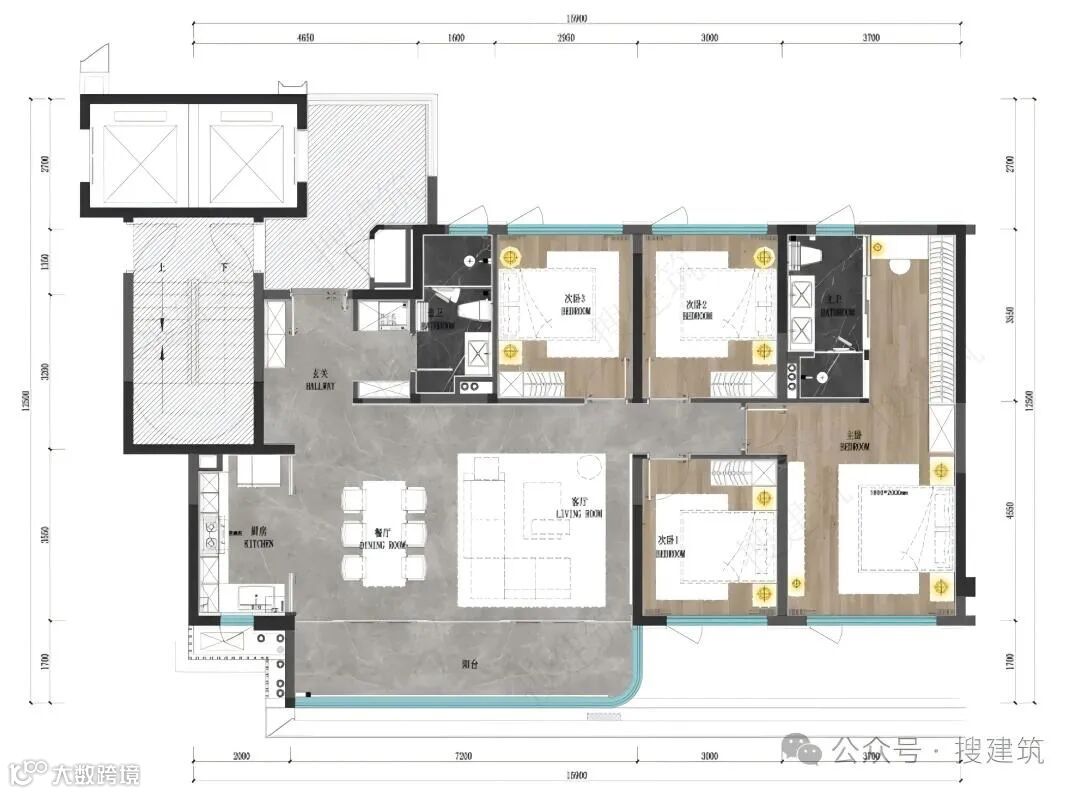
成都能建·锦誉府
A户型的143㎡,做到了四开间朝南,南向面宽达15.9米。客餐厅开间达约7.2米,整个LDKB一体化空间达到约53㎡。

▲ 能建·锦誉府A户型示意图

▲ 建面约143㎡A户型样板间实景合成参考图

▲ 能建·锦誉府建面约143㎡样板间实拍图
户型强调主卧空间的超强使用,主卧带独立衣帽间和卫生间,整体主卧面积达30.9㎡,对于小两口或者一家三口居住的家庭来说更加实用。

▲ 能建·锦誉府建面约143㎡样板间实拍图
B户型的143㎡则采用了时下流行的方厅设计,开放式厨房+西厨岛台的加入,丰富了使用场景。

▲ 能建·锦誉府B户型示意图

▲ 能建·锦誉府建面约143㎡B户型样板间实景合成参考图
此外,B户型作为端户,有转角式阳台和卧室飘窗,优越的采光和通风是最大亮点。而且考虑到多代同堂家庭不同的作息,把老人房单独布局在靠门位置,这个户型更适合多成员家庭选择。

▲ 能建·锦誉府建面约143㎡B户型样板间实景合成参考图
两种户型都有很多充满惊喜感的细节,比如,约预留好水电点位的全明电梯厅、入户玄关的超强收纳空间、阳台地暖通铺……
成都锦江璞园
项目分别打造了A、C两种户型,均做到了双重跃升,各户都有一个超10㎡的270°采光全明独立电梯前厅,都是经典的大面宽设计。
尤其是C户型,横向面宽竟然做到了约15.6米,餐客厅、三间卧室,均朝南排开。

▲ 锦江璞园建面约143㎡C户型示意图
C户型的卧室布局更适合三代同堂,客厅一侧设置独立老人房,可以避免家庭成员之间生活习惯不同,互相产生干扰。



▲ 锦江璞园创意空间展示实拍图
A户型的不同,主要在于卧室的布局,完全实现了动静分区,四间卧室集中于一侧,更适合二孩、三孩家庭。

▲ 锦江璞园建面约143㎡A户型图
而且主卧空间若与相邻次卧打通,可以打造一个景观面约6.8米,带书房、独立衣帽间、卫浴空间和可变休闲功能空间的约41㎡超级豪华行政大套房。
动静分区的空间格局,更加强调客餐厅的享受度,阳台开间也从6m提升到6.5m。
2
143㎡户型创新豪宅感
已进化到如此地步了
产品力大爆发的当下,各大地产在143㎡产品设计上不断推陈出新,越来越卷的同时,带来的是越来越好的户型,户型整体也呈现出更加「豪宅化」「精细化」的势态。
比如,私享全明花园式电梯厅,如成都建发书香云锦、武侯西派臻境、绿城·锦海棠、龙湖西宸御湖境、华润置地青羊润府、万科·古翠隐秀等。
▲ 成都万科·古翠隐秀143㎡户型图
延伸阅读:
比如,用尽心思的超广角边厅,如绿城在成都推出的“无界全景舱”143㎡户型,无柱化端厅设计,颠覆了传统空间的束缚,约14.4米的奢侈大面宽,四开间朝南布局,户户皆为边套,确保了充沛的自然采光,犹如置身于一座“光之屋”。

▲ 绿城·锦棠府建面约143㎡户型图
比如,超广角边厅+L形转角阳台:

▲ 西安大明宫璞悦府约143㎡四室两卫户型
比如,双阳台设计:

▲ 成都龙湖·西宸御湖境约143㎡户型示意图
比如,全南向双套房,还有双套房+全南向全明套卫:


▲ 南宁北投领上建面约143㎡户型示意图
比如,更高阶的主卧享受:270度采光观景、独立景观阳台

▲ 越秀·天悦云萃Ⅱ期建面约143㎡洋房户型图

▲ 越秀·天悦云萃Ⅱ期 实景图

▲ 成都华润华发·阅天府约143㎡户型示意图


比如,多一房的五房设计:
143㎡几乎都是做4房2卫,东莞万科|嘉城·未来天空之城竟然做到了5房2卫!

▲ 东莞万科|嘉城·未来天空之城建面约143户型示意图,仅供参考
▲ 创意样板间实景示意图,仅供参考
143㎡户型爆发,亮点也超多,不再列举了。
结语
143㎡——不普通!当今市场上,卷成麻花的143㎡已实现高度进化、高度人性化、高度科学化,高度豪宅化。
本资料声明:
1.本文为建筑设计技术分析,仅供欣赏学习。
2.本资料为要约邀请,不视为要约,所有政府、政策信息均来源于官方披露信息,具体以实物、政府主管部门批准文件及买卖双方签订的商品房买卖合同约定为准。如有变化恕不另行通知。
3.因编辑需要,文字和图片无必然联系,仅供读者参考;

微信公众号“搜建筑”(ID:sjz9999)
合作、宣传、投稿
联系微信:soujianzhu006


