大数跨境
0
0

本周学习:第四代+高品质+大平层—— 住宅产品趋势

本周学习:第四代+高品质+大平层—— 住宅产品趋势 搜建筑
2024-11-27
0
导读:一、第四代住宅:政策与设计要点二、第四代住宅:操盘落地经验三、高品质住宅:创新实操方法
▲ 更多精品,关注“全球精品楼盘考察


第四代住宅+高品质住宅
专项考察+房企论见会
【中国 · 武汉】
高品质住作为各地新住宅建设标准的实施,武汉的楼盘产品创新、建筑材料、施工品质、物业服务等方面,体现出精益求精的态度……已是未来住宅发展的必然趋势。

第四代住宅随着各地政策的推出,国内已展开对相关住宅产品的探索,不仅是建筑行业技术层面的迭代,同时也是各大房企的创新发展方向。

第四代和高品质住宅,如何落地实操呢?


武汉·创新趋势

第四代住宅+高品质


▲ 招商·武昌序
绿城·桂湖雲翠
武汉城建金地和悦G地块
▲ 龙湖·御湖境
▲ 中建壹品汉韵公馆
中国铁建·花语汀澜

 中建壹品汉韵公馆

温馨提示:武汉楼盘活动,本次安排6-7个精品项目+分享会,部分项目根据现场情况可能会有调整。感兴趣的朋友请及时报名。


 分享会亮点:
一、第四代住宅:政策与设计要点
二、第四代住宅:操盘落地经验
三、高品质住宅:创新实操方法

报名+咨询 

1、扫描二维码 加好友咨询

咨询微信:soujianzhu03


咨询微信:soujianzhu008


2、联系电话:181 3265 7351(微信同号)


招商·武昌序

建筑设计:上海霍普建筑设计

景观设计:广州山水比德设计


“武昌序”作为招商地产在武汉的首个“序”系作品,既承载着对荆楚文化的传承,也开启了未来发展的序章。以序起笔,致敬历史,铸就未来。



项目力邀建筑设计界的领军人物霍普建筑事务所龚俊大师操刀。“扎哈曲线”式的立面,以流动的线条设计打造超流体美学。建筑整体采用了全铝板和玻璃幕墙体系的组合,搭配高达约0.48超大窗墙比,勾勒轻盈、现代的“云翼建筑”造型,闪耀内环天际线。



高难度曲线线条工艺、定制级曲面玻璃、LOW-E玻璃+铝板及石材豪宅质感用材等,每一项工艺,都是对细节的极致追求。主立面层间设计,从宝格丽奢侈品中汲取灵感,上下哑光金铝板,中间高透克莱因深蓝玻璃,完美呈现高定质感。



初见武昌序,80米宽的大门以“长卷”的形式展现于城市。爱马仕灰光面大理石以其独特的网状纹理与温润质感回应了武昌核心区域厚重的历史。




中间大尺度照壁取形于玉钺的造型,采用170/260mmx500mm的梯形标准模块错位拼接,在照壁的顶部设计照明单元,结合弧形的墙面形成明暗变化的丰富效果。凸显范思哲黑大理石独有的羽毛状泛光质感,低调而不失优雅,呼应在地性的文化之序。


照壁前的雕塑通过盘旋上升的抽象手法,将“燕”与“序”交汇相融,去形取义,象征着不断升华的人生之序与和谐自然的家庭之序。


“自去自来堂上燕,相亲相近水中鸥”,“燕”元素贯穿整个社区。由菱形折板打造的百燕归吊顶寓意繁荣与希望,为每个家庭开启未来美好的序章。



从人行入口拾级而上,会发现照壁后别有洞天。



建筑线条与室内地面、吊顶平齐,结合高透超白玻璃,营造内外无界的空间感受。




场地高差较大,项目被划分为两个主要台地。通过竖向设计,巧妙利用地形高差,打造了多维度的垂直交通体系:
  • 步行归家:业主可通过入口台阶和水院,进入社区大堂。
  • 驾车归家:业主可以直接驶入地下车库,再进入社区大堂。随后,右侧的垂直电梯将业主带至大区台地。


设计师将中央车站的功能引入住宅设计中,重新定义归家体系和出行场景。中央车站将车行落客功能独立出来,允许外部车辆在内部进行落客,与接待大厅实现了人流的完美交汇。中央车站摆脱了挡车器的限制,全天候风雨无阻,同时作为连接入口与地库的重要空间,承载了归家、落客、社会接送等多重功能,成为业主主要交通的核心场所。



利用场地高差,地下一层地库西侧入口与城市道路平接,与传统的坡道车库相比极大地提升了归家感受。同时利用社区内台地高差,在2#楼的住宅大堂,创新性地打造结合车库的双层挑空大堂。



从接待大堂北侧出入口离开,向右行至电梯,将业主带到高了2.4米的下一个台地。在这个标高的平台里,无雨归家连廊将花园景观、住宅架空层全部串联。



住宅底层架空基座由海蓝宝石材与香槟灰金属全部包裹。海蓝宝石材呈现出独有的海浪式纹理好似汉水的蜿蜒与流动,自然的艺术与地理文脉在坚固的表面完美交汇。




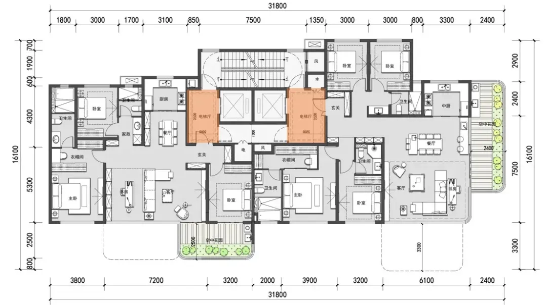
招商·武昌序以全新“类四代住宅”重新解构空间设计,规划建面约155-186㎡大平层,以LDKBG一体化无界空间立序“豪宅教科书”。270°寰幕会客厅带来长卷式观景体验。


左右滑动查看更多户型图

样板间实景图


中建壹品汉韵公馆

建筑设计:武汉天华 / 景观设计:山水比德


中建壹品汉韵公馆,武汉第四代住宅,对露台、隐私露台与阳台占比、核心筒等三项进行专业论证研究,建立了一套垂直体系。汉韵公馆的空中花园,采用南向或东西向布局,奇偶交错,进深控制在3.6米以内。



中建壹品汉韵公馆的住宅立面,正是选自楚建筑的线条制式、凤鸟纹、编钟云纹,手法简练飘逸,大有凤舞九天的艺术气质。

图片为过程演绎稿,非终版

楼顶设计堪称点睛之笔,借鉴楚式双檐造型,层次丰富、错落有致,既提升了建筑的立体感,又彰显了独特的温润尊贵气质。在阳光照耀下,铝板与玻璃交相辉映,凤鸟纹与云纹若隐若现,整栋建筑仿佛焕发活力,倾诉着楚文化的深邃内涵与悠久历史。



中建壹品汉韵公馆规划了玻璃幕墙为主,配以铝板线条和金属漆打造的颜值派外立面,加上独特的弧形造型,质感十足。



为业主入住体验更好,露台花园也列入精装。绿化部分采用降板处理,配置自动灌溉系统,预留排水孔,绿植尽量选低矮、易打理、四季常绿,保证空中花园完成面相对统一;同时配置太阳能灭蚊灯,避免后期维护和蚊虫。



在错层的基础上,上下层的空中花园,使用绿化和半透栏板遮挡视线,避免对视的尴尬,并且,在上层住户的窗户前增加飘板,避免室内一眼看透,保证私密性。

图片为示意稿,非终版

与此同时,为了解决采光遮挡的隐患,中建壹品兵分两路,南侧和山墙侧交替设置边户的空中花园,减少对自身的采光影响,中间户的空中花园,设置区域排除主卧,进深控制在2.4m-2.9m之间,精细化模型测算,满足上层住户的采光需求。



这次专门邀请豪宅景观大咖山水比德执笔,将项目自建的口袋公园与社区大门融合,60米长的赤红廊桥、汉宫屋顶的奢阔门楼,让业主从公园归家。



户型设计亮点:超高赠送面积,近乎零公摊,配备宽敞的露台、大阳台及多个飘窗;每户均享有私密花园,6米挑空露台花园为您的居住增添舒适度;室内空间通透,采用南向大开间设计,超高窗墙比例,巧妙奇偶错层布局。

左右滑动查看更多户型图


武汉城建金地和悦G地块


武汉城建金地和悦包含7个地块,涉及7栋商业楼、12栋小高层及高层住宅、19栋多层住宅等,整体容积率约2.0,整体建筑密度约32%,绿地率约30.91%。其中,G地块即为武汉首个第四代住宅试点项目。项目位于武汉市蔡甸区中法生态新城核心板块,周边交通、教育、医疗、商业等配套齐全。



类公建化立面,金属铝板、格栅装饰及四代宅绿轴的渗透打造精致通透的建筑感官,宛若天空中的花园。

【高层立面】

洋房立面】

【叠拼立面】


项目采用端户阳台错层挑高的方式,比如G2#楼栋采用卧室出挑和入户空中花园出挑两种布置方式;


奇数层悬挑1.8m,在临空侧设同样尺度的花池空间,绿化占比52.5%;
偶数层悬挑4.5m,设同样尺寸花池,绿化占比51.2%;


奇数层、偶数层错开布局,赠送挑高约6米、最大面积约14平的露台,阳台设计最大尺度约14米,边户可享约270度视野;露台预留绿植种植凹槽;


极致赠送户型,突破规范,打造武汉首个“空中花园”。通过错位视线分析及格栅构筑物精细化设计实现同层不可见、上下不可视,最大可能地保障了住户生活的私密性,实现邻里无干扰。

▲ 项目实景

【洋房116平端户户型】

【高层118平户型】


绿城 · 桂湖雲翠

建筑设计:GMA建筑设计

景观设计:GTS&GTE景观设计


2024年,绿城管理联袂长城资产,首次引入绿城高端月华系,以理想迭进的美学理念和海派摩登的奢雅贵重,进驻一线南湖半岛,精研武汉湖滨名著作品。


桂湖雲翠占地约12.7万方,产品比较丰富,共规划12栋22-56层的高层住宅,19栋4-8层的别墅、洋房,以及一所幼儿园。


建筑营造上,采用绿城新一代“无边框曲面屏”,以玻璃盒子般的轻盈感、通透感隐现天地间,如倒影湖上的无界之镜。以远山近湖为设计灵感,采用大面积玻璃窗,带来空间的无界视野;同时,建筑立面配以金属质感的线条凸显建筑物轮廓,形成湖岸之上具有昭示性的无界天幕建筑群落。


在园林景观营造中,依托南湖山水,形成“两园两轴三芯七境十六园”的景观结构,打造约2万方公园景区,创造一个森系社区环境。通过中轴仪式的景观设计,将外部湖景和园区中心庭院联结,形成“堤岸聆音”、“林荫廊曲”、“流水闻莺”等桂湖十景的沉浸式景观植入,形成独有的园区风景线。并沿湖打造约4万方雲朵CAMPING露营公园,享一线亲水、沉浸度假的湖景自然生活。

▲ 项目实景


遵从南湖历史文脉,项目临湖规划四层、六层叠墅,并通过流水入园与坊巷入院的穿插设计,下叠南向望湖院落、上叠星空露台和屋顶花园,盛纳湖岸东方屋檐下的大宅气度。


设计师以东方摩登韵味打造双重下沉庭院,以高规格规划约4000方会所,集月华阁、健身中心、私宴及共享餐厅、行政酒廊、瑜伽馆、壁球馆、室内全龄恒温泳池为一体,以及高层全架空主题空间,完善全龄乐动的生活体系。


从公建化的建筑视角出发,汲取准四代住宅户型理念,采用转角无柱设计,营造“270度环幕”超大落地窗等,成为献给城市的建筑美学作品。

▲ 项目实景


项目产品比较丰富,包含了高层、洋房还有叠拼等多种产品,面积段设置为200-220平的别墅,145-160平的洋房,120-160平的高层。

左右滑动查看更多户型图



中国铁建·花语汀澜


中国铁建·花语汀澜位于武汉汉阳区,总建面约17.19万方,坐拥约1600米龙阳湖湖岸线,三面观湖视野,外揽王家湾繁华商圈,每一寸空间都呈现高规格的居住品质,是主城二环专属的墅质岛居生活范本。

项目私享270°观湖生态景观视野,是主城内极为少有的低密墅区。以奢阔尺度,敬呈恢弘格局:规划约5000㎡中央私享花园,双会所私享空间,户均MAX巨幕宽厅。

项目实景图



<<  左右滑动查看下一张图片  >>

叠墅户型图


传承知音文化,项目将古“江城十景”融入园林景观之中;以中央景观轴为核心,通过植物高低差营造出立体景观效果。


当你置身其中,肉眼测量景观与建筑的退距,叠拼与叠拼之间、叠拼与高层之间、与外部道路之间的尺度,所谓更高维度的生活即是如此。

中央景观轴实景图

<<  左右滑动查看下一张图片  >>

住宅户型图


龙湖·御湖境


龙湖·御湖境位于武昌核心,千年文脉武珞路之上,沿线汇聚着政务、商业、文教(大学)和医养等全能顶配资源,是公认的黄金地段。



基地方正、地势平坦,作为全国第七座、武汉第一座,御湖境将传承武汉文化贵脉、打造臻奢美学意境。


充满巧思的“城市玄关”和社区入口,摒弃了传统的阵列式大门,巧妙向后退让了约600㎡,形成了一个充满仪式感的“神性空间”——它有个好听的名字,叫「云梦光庭」。


示范区位于大区轴线的北端,这一区域被精心设计,旨在充分展示出卓越的沿街界面,向外界展示社区的高品质形象。


同时,在内部空间设计上,130㎡黑金沙弧形整石打磨的圆形水盘,和约5.8米高的火山岩板电动移门,奢华程度堪比“王府级”。我们致力于打造具有极高识别度的社区入口和温馨的归家大堂。

⊙艺术酒店级社区大堂


为了观景效果最大化,御湖境将两侧会所空间,全部打造成巨幕无框玻璃,因此形成了与水面视野齐平的行政酒廊,与水景亲切互动的私宴厅、书吧和茶室。

▲ 御湖境行政酒廊

湖光水院


户型层面,将产品面积聚焦在建面约143-220㎡,纯粹大平层规划,一方面保证了圈层的高阶性,另一方面保证了产品的极致性。


175㎡户型,约90%的超高使用率,约9米的双面宽阳台,首开楼栋享有一梯一户私密格局;220㎡户型,打造约60㎡LDKG会所级厅堂、约45㎡主卧带270°卫浴等,做到了300平级奢享,可谓传世级别的大平层。

车库实拍图


武汉101


当前,城市更新正以前所未有的速度和规模展开。武汉101基于城市更新的发展底盘,择址内环滨江黄金热土,1KM内五大都会绿洲环绕、亚洲4D交通枢纽……以“Park-TOD”的独创构想,激活城市空间,进而实现土地的二次增值,这是目前先进的城市开发模式。


武汉101打造国际级豪华酒店隐奢意境,让每一次回家变成了入住八星级的酒店礼遇,我们的入户前场是对标当前全球最具归家仪式感的曼谷四季及深圳柏悦酒店,以国际化的视野定义高端豪宅前场空间;


超100㎡的光之幕墙,两侧爱马仕灰天然奢石一字铺开,犹如守望业主归家的精神符识,搭配重约1.2吨、造价20万的武昌第一豪门,时刻烘托出超五星酒店的体验感。


武汉101将全球星级酒店设计标准,融入地下车库空间。

武汉101|车库实景图


武汉101楼栋总高41层,中低区主力户型约168-354㎡,高区有少量约850㎡半层户型被命名为湾流850产品,放眼全国都是前所未有的豪宅尺度超越。

武汉101|湾流850㎡样板间实景图

武汉101|湾流850㎡样板间实景图(具体以实际交付为准)

武汉101|样板间实景图



中海·东湖玖章


中海·东湖玖章位于中北路和黄鹂路交汇处,在楼市划分中属于中北路板块,行政划分属于武昌区,位于内环线上,属于正内环。

社区入口,作为“颜面”担当,亦是美好归家之旅的第一场域。约22米长,悬挑4.5m屋檐双向酒店式无雨落客区,让每一位归家的业主下车就能享受到如同精奢酒店般的尊享礼遇。


入口处设置一面巨大的艺术景墙,使用具有玉石肌理的石材,既能够展现出玉隐奢低调的意境,又能够凸显出艺术价值玉石在中国文化中一直被视为吉祥、富贵和纯洁的象征,因此,使用玉石肌理的石材作为艺术景墙的材料,不仅能够传达出一种高贵和奢华的氛围,还能够与展示区的主题相呼应,提升整体的艺术品味。



项目整体规划空间通透,步行通廊串联东西两侧广场空间。沿东湖面形成错落有致、天际线丰富。

极简的造型配合建筑的韵律,带来宁静、经典的氛围。一步繁华 ,不离自然 ,尽享双湖景观资源。


中海式精装标准:防弹级门窗体系;一体化集成吊顶;场景式净层高;烟道消失术;墙缝消失术;品牌厨卫高标体系等百道精工细节若非亲鉴,不足以心领神会。


项目湖景资源利用最大化,户型产品设计精心营造空间阔度,灵动空间设计,洄游仪式空间,广阔观湖视野,视野极佳。住宅首层无界架空,释放景观空间。


<<  左右滑动查看下一张图片  >>




【活动报名】


活动组织:

主办方:搜建筑 & 经典人居

报名+咨询 

1、扫描二维码 加好友咨询

咨询微信:soujianzhu03


咨询微信:soujianzhu008


2、联系电话:181 3265 7351(微信同号)


2024年·新产品方向

《 品牌地产 | 精品楼盘活动 》

杭州、苏州、上海

成都、郑州......

广州、福州、重庆

西安、青岛......

扫描二维码 加好友咨询

领队微信:soujianzhu03

本资料声明:

1.本文为建筑设计技术分析,仅供欣赏学习。

2.本资料为要约邀请,不视为要约,所有政府、政策信息均来源于官方披露信息,具体以实物、政府主管部门批准文件及买卖双方签订的商品房买卖合同约定为准。如有变化恕不另行通知。

3.因编辑需要,文字和图片无必然联系,仅供读者参考;


推荐关注

全球精品楼盘考察

扫描二维码关注

微信公众号:全球精品楼盘考察


合作、宣传、投稿

联系微信:soujianzhu006

搜建筑·矩阵平台

【声明】内容源于网络
0
0
搜建筑
关注全球时尚的、新的建筑资讯。
内容 10717
粉丝 0
搜建筑 关注全球时尚的、新的建筑资讯。
总阅读5.3k
粉丝0
内容10.7k