大数跨境
0
0

学习金沙 | 精细化住宅:从产品创新、施工管控到落地实操(建筑、景观、物业)——金沙考察

学习金沙 | 精细化住宅:从产品创新、施工管控到落地实操(建筑、景观、物业)——金沙考察 搜建筑
2024-12-04
0
导读:1、深研区域房企独特的战略定位与企业文化2、实地感受三四线城市,高品质落地项目3、学习高品质住宅与合理成本管控之间的平衡之道4、掌握区域房企体验式服务营销的精髓5、如何借鉴金沙、郑州品...

▲ 更多精品,关注“全球精品楼盘考察


金沙+郑州高品质

八大精品项目考察+高质量发展分享会

《新形式 新产品 新策略 | 房企高质量发展分享会》

市场回归,客户对房子的要求更高了
提升竞争力的时代正在开启,夯实产品,不断提升品质实力。坚持长期主义和高品质的房企,似乎比以往更加“如鱼得水”。
作为区域型房企的代表,金沙和郑州品牌地产的精品项目,通过高标准的建筑质量,逆市劲销,全国上千家企业来观摩学习……

实地考察 金沙+郑州精品

项目高管带队讲解

  金沙集团  

四大精品项目+区域房企高质量发展分享会

▲ 金沙 • 东院
▲ 金沙 • 壹号院
▲ 金沙 • 天悦
▲ 金沙 • 天和
▲ 金沙•金明書院 
▲ 金沙物业服务

金沙分享会亮点:

一、金沙集团的逆势发展之道

二、“红盘”背后的设计力量——金沙案例解析

三、高品质和成本控制的平衡

四、如何借鉴金沙的发展之路

金沙集团凭借一己之力成为了竞相追捧的精细化地产“扛旗者”金沙三宝:建筑、景观、物业好,不仅吸引到全球设计大师前来助阵,更吸引来上千家房地产同行慕名到访,是业界名副其实的标杆企业。 √ 金沙精品项目链接  √ 郑州精品项目链接 


 郑州·新精品 

四大项目

▲ 铁建投城发•松苑
▲ 中海 • 时光之境
 招商 • 林屿境
▲ 越秀 • 天悦江湾


搜建筑携手金沙集团、郑州新四大高品质楼盘考察八大精品项目通过考察学习市场创新产品,分享、探讨当前市场如何操盘……可选:个行程同时或单个行程)

1、深研区域房企独特的战略定位与企业文化

2、实地感受三线城市和郑州高品质落地项目
3、学习高品质住宅与合理成本管控
4、掌握区域房企体验式服务营销的精髓
5、如何借鉴金沙地产、郑州高品质楼盘的发展之路


报名+咨询 
1、扫描二维码 加好友咨询
(名额有限,满员即止)

咨询微信:soujianzhu03

咨询微信:soujianzhu008


2、联系电话:18132657351(微信同号)

金沙•金明书院


作为金沙TOP系战略作品,稳健品牌的时代力作,日月湖核心版图的少有藏品,金沙金明書院整体“外尊内雅、外王内圣”的独特气质,为商丘塑造经典隽永的高端人居形态。


金明書院的流体立面,对标世界豪宅阿斯顿·马丁公寓的风帆造型灵感,打造了商丘前所未见的流体建筑。同时汲取了风帆线条符号、游艇流线设计和阿斯顿·马丁超跑尾翼等诸多元素,来勾勒建筑的“超感曲线”。如此建筑审美和品位,当之无愧商丘全新的“颜值地标”。


同时还将千年书院文化植入社区当中,打造了约2000㎡书院会所,以业内公认的“永久建筑”——清水混凝土风格,呈现极简留白的高级审美。内部空间设计多个功能分区,满足儿童、中年、老年全生命周期人群的精神生活所需。

<< 滑动查看更多户型图 >>


jinmingshuyuan
金瀑玉门

金明書院的“金瀑玉门”,由豪宅景观设计经验丰富的山水比德创始人孙虎先生亲自担纲设计,对话日月湖,约百米城市界面结合大自然的瀑布气势,给予大家不一样的沉浸式震撼体验。

▲效果图
▲ 项目实景图

金瀑玉门外部构面通过千余块夹胶玻璃瓦片,转译叠瀑流动的瞬间,通过新材料的运用,刻画凝固的时间;玻璃面层经过特殊处理,使其每一块都能柔和的折射太阳的光影;晶莹剔透的光斑洒落地面,形成玲珑剔透的金玉效果。

▲效果图

▲项目实景图


玉门内部,内藏精致木构,通过艺术形体重构一个木构建筑,营造出一个内有乾坤的空间体验。大堂包括长桌等候区、大堂服务区,灯光从木构缝隙中渗透出来,中心区域设置通高灯箱,加强大堂的仪式体验。


▲效果图

▲ 项目实景图

约百米水瀑界面,延城市界面创造约百米流水墙,潺潺流水引导住户进入园区,使归家动线沉浸在林瀑之间,洗涤城市外界的纷扰。

▲效果图

▲ 项目实景图

迎宾松涛,搭配约百米界面,给予百变的姿态,有孤植的美、有对话的美、有群林的美,每一棵松都能成画,群林营造画卷之美。

▲效果图
▲ 项目实景图

设计师的灵感闪现,为金沙勾勒出了一个独特且富有艺术感的金明書院大门。



然而,从设计效果图到施工图的转化过程中,金沙面临了诸多技术挑战。特别是在金明书院的“银河飞瀑,水晶宫阙”立面玻璃瓦的设计上,一系列难题正在出现。


无论是两个瓦面交界处的坡度设计、玻璃瓦的颜色选择与形状选择,都需要深思熟虑。



在现场进行了多次模拟试验后,项目最终选定了一款特定玻璃瓦,并解决了其连接方式与悬挂的技术问题。这不仅涉及到玻璃瓦本身的重量和支撑系统的重量,还需要考虑整个钢结构的设计和基础的处理方式。


正是通过金沙技术中心与多个专业的紧密合作与协同作战,项目才得以成功地将这一创新设计从图纸转化为现实,实现了大门景观设计的完美落地。



▲ 项目实景图


jinmingshuyuan
百米迎宾水幕墙

由于金沙持续追求创新设计与精细化还原,在实际施工过程中难免会遭遇各种行业技术瓶颈。不过要说让工程师们“挠破头皮”的施工难题,金沙金明書院的百米迎宾水幕墙,可以说名列前茅。


金沙金明書院的迎宾水幕墙位于大门南北两边,长达104米,高3.3米,从上而下由110层石板铺装而成,使用的石板条多达187000多块,由17名工匠,历时77天才施工完成。


说起来有些不可思议,水幕墙的施工难点就在于,墙体比较长,有104米,110层,要求每一层石板的厚度必须一样,因此对石板加工的精度要求非常高。除了对厂家进行交底,现场的工人还要对石板进行精心挑选,每一层的厚度必须保证一样,非常浪费精力。


而且,水幕墙讲究错缝铺贴,组成波浪状的自然感。因此,每块石板都需要用毛石经过机器切割之后,再由工人进行锻打。如果石板条过窄,在工人锻打过程中会出现断痕,在运输的过程中也会增加损耗率,只能耗费更多的石材、使用更宽的石板。即使如此,在锻打与运输的过程中,损耗率也达到了10%左右。

金明書院大门的水幕墙,看似没有规律,但也不能杂乱无章,要做出高低起伏的凹凸感。所以在选择石材的时候,要进行精心搭配。这对工人的施工工艺与审美都有严格要求,只能从外地专门找老师傅来施工。即便如此,一个经验老道的老师傅,一天施工的平均量还不到0.5平方米。

要说景观工程师遇到的史无前例的“麻烦”,就是在水幕墙转角铺装的部分。金明書院大门水幕墙有三处转角,自上而上呈圆锥形,所以转角铺装的每块石板,都要在经过精密计算之后,切割成与墙体相吻合的扇形,拼接、错落、堆积而成。


而且由于转角处是斜坡,在顶部水流量一定的情况下,流域面积变大,就会出现干面的情况。怎么能保证水流是一致的,也是费了很大的功夫才解决这个难题。


高度还原设计效果图,是一个极具挑战又充满追求的过程。在这个过程中,不仅会伴随着复杂的技术难题和实施困难,“设计理念与实际施工”之间的冲突也是不可避免。



为了追求更加极致的效果,金沙金明書院水幕墙从今年正月初九就开始进行多次打样,截止到6月中旬才确定最终方案,期间,多位国际大师亲临现场,出谋划策。

金沙金明書院百米迎宾水幕墙建成后,犹如一幅灵动的画卷,瞬间抓住过往路人的目光。


历经数月匠心雕琢,金明書院大门峥嵘初现。作为大门的点睛之笔,千挑万选的八棵珍稀古松,以蓬发优雅之姿,绘就生机磅礴的自然风景。



金沙•壹号院

2022年河南省工程勘察设计行业奖 一等奖

2022年河南省土木建筑科学技术奖 一等奖

2022年最艰难的时期,创下开盘劲销、三月清盘的佳绩


金沙壹号院,占地面积约60亩,建筑面积14万方,绿化率高达38%,容积率仅2.89,一共625户。共规划了8栋楼,产品全部以大平层户型为主,面积区间约为150-240㎡。在这块寸土寸金的土地上,奢侈的打造了约80米的楼间距,把整个社区的中间部分,全都留给了园林,光园林面积就2万多㎡。



商丘金沙壹号院,于外,外修其形,以醇熟配套、高颜值建筑,打造璀璨大城生活;于内,内练筋骨,匠心淬炼精致装修入户大堂等场景,营造更高品质的内在居住体验。



项目高层立面设计上,以曲线为“引”,自下而上生长的线条交错、融合、延伸、无边界,最终在三维尺度上形成“超流线”,呈现出流畅而富有张力的曲线序列。


 金沙壹号院实景图


在景观方面,商丘金沙壹号院在立体式景观的基础上,融入森林、岛屿、居住、度假的精髓概念,独创“森屿住假式”景观,移天缩地汇于一院之中。让业主不出商丘,在日月湖畔,于金沙壹号院园区中,就能享受度假休闲体验,畅游在森林谧境之中。


外墙安装工艺


一栋楼造型想要好看,与大面积的落地玻璃紧密相关。但是,在玻璃制作和安装过程中,施工工人其实遇到了很多困难。


▲ 实景图

首先,商丘金沙壹号院采用的玻璃非常大,最大连体窗近50平方。玻璃越大,需要玻璃承载的能力就要越强,则玻璃就要更厚。

▲ 示意

项目所用的玻璃竟然比平面的硬币还要厚一些。

▲ 示意

而现场的工人想要移动这样一块玻璃,难度可想而知,所以现场玻璃运输基本全靠吊车与叉车。

▲ 示意


而且,商丘金沙壹号院为了用上具有更好隔热、隔音、保温性能的玻璃,全部采用国内一线品牌系统窗,价格上就比普通窗户贵两三倍。


其次,转角圆弧玻璃安装难度非常高,要求玻璃制作精度误差不得超过2mm。而且每一栋楼的圆弧尺寸都不相同,需要工作人员现场测量,并把数据同步给厂家。


▲ 示意

等弧形玻璃生产到位后,需要室外两名工人同时升起安装吊篮,与室内工人相互协作,同步施工,才能确保玻璃顺利安装到位。

▲ 示意

▲夜幕下的金沙壹号院


入户大堂的精修装


作为当下城市高颜值住宅的代表之一,商丘金沙壹号院凭借极具设计感与冲击力的建筑立面,火速“出圈”。从室外移步至室内,酒店式归家入户大堂,让业主与访客在踏入的第一时间,感受到大气尊贵的舒适感。



作为在细节把控上做到极致的开发商,商丘金沙壹号院入户大堂的精修装,可谓是体现了金沙满满的诚意。


首先就是金沙一直坚持的对缝工艺,按理说,这并不算什么难题。



但是在商丘金沙壹号院入户大堂精装修过程中,金沙又增加了新标准,要求消防设施、插座等必须保证两边对称。乍一听好像不是很难,但是细想一下,如果没有前期的设计深化排版,很容易出现墙面砖错位等问题。


随机选一处手动报警器位置,用尺子现场进行测量。眼神好的朋友,给看看有没有误差。



据现场装修负责人介绍,为了达成这条标准,后期施工的时候,哪一块瓷砖在哪个位置,都有严格的限制,那是一丁点都不敢错。




其实公区装修,最难的部分就是连纹砖对纹。大家仔细看左边的墙面,全都是带纹路的,工人铺贴每一块瓷砖的时候,那都是严格按照编号施工的。



看得见的地方难,看不见的地方更难。在商丘金沙壹号院的入户大堂,每一个管线的位置,每一根方管的距离,那跟用尺子量出来的一个样。



对金沙来说,横平竖直那都只能算基本功,下面这个可就是"别有用心"了。下图这个叫"7字拐",就是在拐角的地方用一整块木板切割出"7字"形状,另外还加装了斜拉撑,这样的设计能让吊顶寿命耐久度更长,防止老化断层开裂。


(轻钢龙骨施工现场)
(石膏板吊顶完成)

说起这些隐藏的细节,经常有人开玩笑:你做恁好有啥用,石膏板一封,谁能看见!”但对金沙人来说,看得见的认真做,看不见的用心做,这是始终不变的宗旨。


为了验收平整度,验收工程师有自己独特的办法,直接用手电筒贴着墙面,侧向照明,"顶面平不平,骗不了光!"


商丘金沙壹号院入户大堂的背景墙,也费老大劲了。整个单元大堂采用天然石材爵士白,安装的时候不仅要求石材纹路方向一样,而且要求色度保持一致。


业内人都知道,同一块石材形成的天然色差最小,纹路也最相近,所以整面背景墙是由一大块爵士白原石切割拼装而来。为了寻找这么大体量的石材,金沙的采购团队全国各地可没少跑。


damen
大门

金沙壹号院大门口水系犹如一座漂浮在海洋上的小岛,是景观的一大亮点,富有质感及设计感的精致LOGO在水中静立,成为整个空间的视线焦点,也充分提升景观气质,延续艺术性的同时也烘托出了尊贵的气质。



长虹玻璃通用最大尺寸为2000*3660mm,一般是条纹竖向安装,但考虑到统一墙体线条肌理,必须将条纹横向安装。然而,长虹玻璃原定2000mm的宽度,达不到壹号院景墙设计高度,无法满足安装要求,两块玻璃拼装既不安全也不美观。最终,公司决定,定制2650mm加大尺寸,别看只是增加了650mm,造价直接翻了三倍。



池底采用光面蓝钻的进口天然石材,在太阳的照射下闪闪发光,犹如在池底铺满了砖石,赋予约245㎡中心水景巧夺天工的妙趣,结合松树、LOGO所带来的光影,打造了一处美轮美奂的水中岛屿美景。



光面蓝钻,结构致密、质地坚硬、耐酸碱、耐气候性好,很容易切割、塑造。作为一种高档建筑装饰材料,一般用于地面、台阶、基座、踏步、檐口等处,多用于室内外墙面、地面、柱面的装饰等。



在拿到设计图纸之后,工程师10天内只做了一件事,那就是在电脑上“排兵布阵”,要让石材对缝,无论是横向还是纵向,不仅如此,还要跟汉白玉水系压顶对缝,与门窗吊顶对缝。



按照正常的铺装手法,池底正常铺设的是60x60的石材通铺收边,施工速度很快,但是不对缝、不美观。为了实现对缝,施工团队在97平米的地方,足足使用了40多种石材尺寸进行铺装。



在铺装时,更是逐一标注石材尺寸,避免在施工过程中因尺寸过多而导致铺装错误,因为如果铺错一处,就要全部揭开,从头开始。



一个好的建筑艺术作品,必然经过长时间的精雕细琢,正如在草坪上面我们不常注意的细节,往往成为施工人员对目标的极致追求。



在草坪上,有随处可见的散水栓箱,但是这样一个不起眼的箱子,却凝聚了施工工人近半个月的时间。你可能会问,就正常的散水栓箱有什么难度?如果你离近看,就会发现它并不像表面那么简单。



为了安全美观,金沙工程师苦思冥想,最终设计了一款圆角散水栓箱,简洁大方,不伤人,最重要的是上面的logo是经过冲压技术压上去的,靠压力机和模具对不锈钢施加外力,使之产生塑性变形。


虽然只是一个小小的技术,但是找了很多地方都是先裁剪出方块,方块进行字体蚀刻,再焊接回盖板之上,完全不能满足金沙的精细化标准。最终,金沙团队在郑州定制了字体模具,再进行冲压一体成型,才做到了如今完美的效果。


成本为品质让路,时间为品质让路,一切为品质让路是金沙一直坚守的原则。金沙壹号院以不计成本的决心,为商丘打造出顶级高端产品,每一平米的美好呈现,每一个细节的处理,都倾注了金沙人夜以继日的匠心研磨,就连在路上随处可见的线性排水沟子也是如此。



在安装道路线性排水沟子时,施工团队遇到了一个难题,一般的水沟子从上面能直接看到地下的污水,非常不美观,怎么样才能解决这个问题呢?工程师在多次尝试后,终于想到了一个办法,就是从条形状上做部分改变。


线性排水沟子设计图


在不影响水流的情况下,把条形状从垂直向下焊接打磨为弧形,这样从地面任何一个角度都看不到构体内部,同时配备栓修口,方便定期清污。



看到这一定会有人说:“有必要这样做吗,谁去管他能不能看到地下!”如果金沙人听到,会非常肯定的告诉你,很有必要,因为金沙的理念就是,为业主建造商丘精细化好房!



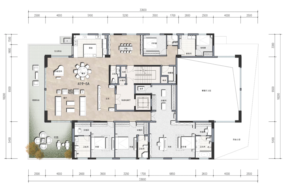
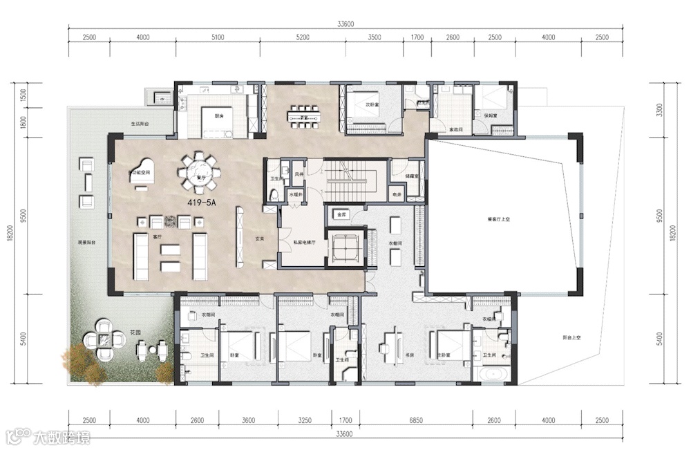
在产品设计上,一梯一户及私家电梯厅设计营造出居住的尊崇感;极致的大面宽——所有户型均3至4面宽朝南,保证南向采光;考虑社区景观及日月湖景观优势设计端厅户型,结合端厅设计转角阳台,270°观景,“巨幕”私享日月湖无限风光。


<< 滑动查看更多户型图 >>


金沙 · 天悦

2022年河南省三大轻奢美宅作品

2022年河南省工程勘察设计行业奖 一等奖


▲ 项目实景图


项目设计灵感源于商丘的应天书院,其作为北宋时期最高学府,位居中国宋朝四大书院之首,是唯-一所设立于繁华闹市之中的书院。

金沙天悦将书院文化提炼,进行现代空间演绎,大胆融入水院概念,延续应天书院礼制空间,以书院文人雅士生活场景映射未来生活雅趣。



宋氏府门



金沙天悦大门,为顶部挑檐宋式府门,萃集中国传统建筑代表元素,无论造型还是用料,皆是上乘之作。

经过中式、现代风格交错的多次设计推演,最终的入口形象展示面,采用古建屋檐结构、石墨灰色斜屋面方案,以现代中式手法凸显传统书院文化,局部细节优化突出整体感,体现城市门户整体形象的错落与统一。



5.5米的门楼悬挑,巧妙的隐藏结构是入口门楼的最大难点。入口门楼将柱子隐藏,与墙面融为一体。屋檐四角翘起,巧妙运用结构的错位,一定程度上减小了施工难度,同时保证了较高的工艺。

大门处的19棵古松,气势磅礴,尽显尊贵,配合项目中以黛青、烟栗为主的艺术色彩,赋予传统全新的生命,传承着归家礼制。




珍稀古亭



金沙天悦的景观设计方案,经过20余次的多方研讨。最终的设计方案中,最醒目的就是这座殿角飞檐的古亭。但到哪里能找到和设计方案相仿的古亭?这成了设计团队最“头疼”的事情。


功夫不负有心人,历经4个多月,终于在千年瓷都景德镇一处“古建筑抢修世家”寻得了一座珍稀古亭。无论是这座亭的高度、宽度,还是整体的工艺工法,都是难得一见的珍品。


为了保护这件珍品,把古亭从几千里外运到商丘,需要将古亭的每一个木件结构依次拆开,再小心打包,运送到商丘重新依原样搭建。经过七位专业老师傅将近一个月的努力,终于把古亭20000多个木制零部件组建完成。


▲ 项目实景图


至此,这座翘角飞檐的古亭在金沙天悦成功安家,成为“无园不亭”“无亭不园”的中国园林语境下的神来之笔。





场景赋能



设计将空间复合化、功能场景化,借助嵌入地形中的非常规“功能盒子”演绎书院生活——林间宴会厅、共享连廊、休憩空间等,打破大区生活功能刻板的体验方式。

▲ 项目实景图


区别于大众化社区景观风格,项目设计将自然艺术文化真正融合在环境中。以自然为基底,设计提取元素融入场地中,实现空间复合化场景。转译古人书院生活场景之余,重新设计高端未来生活方式,激活新概念、新场景。


植物设计


植物设计依照生态原则、人文原则、地域性原则和经济型原则,通过高绿覆盖、森系内涵美学的植入,名贵树种结合与林共生的景观价值空间打造,以自然为基底融入场地,打造森系高端豪宅社区,营造与自然对话的森系人居,让森林融于人的日常活动中。



项目中以黛青、烟栗作为艺术色彩,赋予传统以全新的生命,用现代手法重新演绎,将原生元素,如栏杆、屏风和挂落等,巧妙地融入其中,以此致敬传统文化,并重塑经典。



既显现出商丘的深厚历史底蕴,又展现了现代艺术的独特魅力,形成一种既具有历史感,又具有现代感的艺术表现。


▲ 项目实景图


金沙的墙面



众所周知,金沙的精细化毛坯交付标准极高,不装修也近乎能入住。来到现场您会发现,金沙的墙面、地面施工相较于传统作业,可是多出好几道工序,与普通交付相比,房屋的整体品质、观感,自然更胜一筹。



其中有道工序是墙面拉毛,这可是金沙的专利,主要是提升材料与墙面的粘合度,方便业主后期装修时,使瓷砖能够贴得更牢固。


天悦的车库


车库整体基调为简奢典雅的暖白色,顶部走线统一,整体看上去简洁大气,而且整个空间的视觉色彩更加的和谐、轻松、舒适。



金沙天悦的地下车库,地面采用加厚耐磨的水磨石,具有高度耐磨、防滑、耐冲击的性能,为业主带来高端、简约的地库环境,高级且富有质感。


车库车行道采用铝质方通吊顶,可持久保新。灯带隐藏在格栅吊顶中间,精致到每一处细节,提升业主的归家尊崇感。


地下车库中管线众多,包括给排水、电气、暖通等系统,管线之间的空间关系和布局,直接影响车库的使用效率和安全性。在施工之前,项目采用BIM技术对车库管线进行优化设计和碰撞检测,更好地了解施工细节和要求,提高施工质量和效率。



在灯光上,整个地下车库采用LED自动感应灯的照明模式,灯随车亮,完全不用担心进入地下车库时,灯光出现忽明忽暗的情况。



此外,金沙天悦的地下车库还有诸多贴心升级设计,例如立柱增加铝合金防撞条,不锈钢集水坑的盖板,高档铸铝挡车器等,让人只看一眼,就喜欢上了这里。



在项目景观视野最好的高层楼栋,户型设计为多面宽超大尺度南向布局,将景观优势最大化展现,提高户型的价值点和竞争力。


▲ 多面宽超大尺度南向布局


金沙•東院


正如世间所有历经时间而永恒的伟大作品,对于品质的考究,是一切了不起的开始,金沙東院,亦是如此。



作为金沙TOP系的战略作品,金沙東院是日月湖这片土地上一个特别的存在,代言着一种迭新体验的纯粹洋房生活,也代表着金沙产品力的硬核造诣。所以在归家门庭、景观营造、建筑工法包括建材的考量上,无不考究用心。


▲金沙·東院 实景


直观来说,一个1000㎡土地面积标准模板的小区,每降低0.1的容积率,就有可能带来这些改变:
楼间距增加2米、日照增加15分钟;
路面拓宽0.2米,被邻居吵到的机会减少20%;
绿地率增加1%,小区增加100棵树……




- 01 -

景观


金沙東院,容积率仅约1.3,看遍日月湖乃至商丘全城,实属少见。金沙真正将居者的需求放在首位,以牺牲利润空间来提升居住的舒适度。


整体规划14栋平墅,仅333席东方墅居,43座藏品级院子,层高标准层高在3.15米,楼王标准层高在3.3米,局部超高挑空6.6米。


 项目实景图


楼宇间通过错位营造出灵动空间,形成三级景观渗透和超大视距。在项目中庭设置下沉式庭院会所,形成从地面到地下的空间层次渗透,打造沉浸式的空间体验。


项目庭院实景



- 02 -

细节


除建筑立面外,金沙·東院各个空间的选材用料均极为考究,几百棵百年名贵树木达到高绿覆盖,营造四季有景的色彩变化效果;曲面异形的园建、台阶、石座凳用条石定制;整石水系驳岸、石桥、水钵、板岩池底铺装,由十几名老石匠历时百日精雕细琢,以细节加码。

▲ 建筑及施工细节实景(建设中)

▲ 金沙·東院 实景

▲ 主入口中庭实景
△ 项目细节实景


就连园区里一个毫不起眼的小组件,如花池灯箱、草坪灯、地漏、取水阀+雨水口等都要进行五次打样。


▲ 项目细节 实景图


- 03 -

東院的门


金沙東院的大门淬炼东方建筑精髓,以恢弘门庭再现名门归家礼序。双坡弧形屋顶,汲取榫卯、斗拱、飞檐等诸多中国古建筑的代表元素,方寸之间尽显中国传统美学。



大门两侧的消防门蕴含中国人的含蓄之美,先见景后见门,入口与景观融为一体。门前的古松、山石、草坪犹如一块屏风,若隐若现。



在大门北侧地下车库入口处,隐藏着一个非常“低调”的消防门。由于制作难度系数高,运输难度大,只能现场制作。



单元入户门:墙面进行格栅美化,配备古铜+定制门牌标识体系,处处彰显细节与氛围,让门也变成了一件“艺术品”。



地下车库归家大堂正对自动门的位置,做了古铜雕刻定制 logo,色彩和质感的碰撞,与整体环境十分协调,塑造出精致奢雅的形象气质。


▲ 项目实景图


金沙東院入户门是梵蒂斯装甲门,加高加宽高定款。门把手与铝板是一体式设计,左右两边的外饰面选用镀锌钢板,表面涂层进口氟碳漆处理,归家的仪式感与尊贵感呼之欲出。



一楼私家小院入户门,通过色彩、材质、图案、弧线等元素进行叠加、升级,构建不一样的生活理念。



- 04 -

地库


对于房子而言,惊艳的建筑外立面是“面子”,隐藏在地下的车库是“里子”


在车库出入口处,金沙匠人别出新裁,设计全新超高挑空设计、感应式灯光系统、墙面天然石材,业主不管是出门还是归家,都能给您满满的仪式感。

▲ 项目实景图

车库坡道顶面点点星光灵感取自劳斯莱斯豪车星空顶设计,并以此基础上增加了山脉与云朵造型。坡道两侧由贝金米黄天然石材包裹,更显奢华与尊贵。




进入车库,左右两侧各设置玄关墙,灵感取自中国四合院的照壁,让车辆从地下到室外有一个缓冲作用。



由于地下车库流量大、磨损大,金沙在原有水磨石地坪基础上,升级全新配色方案。水磨石地坪具有防尘防滑、亮度高、耐老化、耐污染、耐腐蚀等优异品质,让地坪使用寿命更长。


▲ 项目实景图


细微之处更见品质,金沙東院车位定位器使用铝合金材质。该材质具有较强的抗压性和较高的柔软度,还具有减速、防滑、耐磨、减轻轮胎磨损等特点。



不仅如此,金沙地库装饰设计上也非常讲究,所有墙面和立柱喷涂全新防水材料,具有防潮、防腐、抗污、环保、易修补、易清洁的特点。



为了匹配业主尊贵的身份,金沙東院车库汉字,特邀知名书法大师亲自提名,后经激光雕刻复印而来。


行车道采用古铜色铝格栅吊顶,可持久保新。灯带藏在格栅吊顶中间,精致到细节之处,提升尊崇感。



全新的灯光设计方案,兼顾了业主照明使用、车辆引导分流标识、用电合理、美观等功能。


在行车道上,车道标线箭头与水磨石一体打磨成型。此外,在箭头外侧还包裹了不锈钢银色边框,不仅结实耐用,而且更显奢华。



在车位划线与行车路线方面,金沙邀请国际知名北京易博安公司,对東院车库进行了优化升级,让业主行车与停车更加安全。



归家大堂采用光源内嵌一体式格栅吊顶,仿石材墙面搭配仪式感壁灯,与发光金属立体字楼栋标识,形成酒店式归家大堂般的体验。




- 05 -

建筑


金沙·東院的立面设计弃繁至简,简约高雅,突破传统窗框比的桎梏,以现代极简立面,表达项目的高端格调,外墙材料为亚光银灰色铝板,搭配中灰色系统窗与浅蓝灰中空Low-E玻璃,通过浅银灰横向线条与深灰色铝板的对比,化繁为简,摒弃冗余。

建筑细节实景


- 06 -

创新户型:420㎡一层一户,6.6m超高挑空


在产品设计上,通过对户型的创新设计、严苛的尺度考究,打造出高端住宅新样本。项目标准层高3.15m,楼王标准层高3.3m,局部挑空6.6m——设置了双层挑高空中庭院,无柱悬挑6.5m,覆土40cm,突破了常规阳台的空间尺度,带给业主超尺度的生活空间享受。


▲ 金沙·東院 实景

▲ 项目效果图 


约90㎡开放式客餐厅搭配6.6m超高挑空,超大开间及超大落地窗设计营造无边界视觉效果,搭建疏朗开阔的空间,使房间通透感十足,视野豁然开朗。


▲ 户型平面图 

▲ 420㎡户型首层平面



- 07 -

内部工艺



内部工艺,更是利用金沙独有的“金质工厂”建造体系,以18般武艺,重新定义人居精工标准。


墙体粉刷甚至达到直接可装修水平,堪比简装批白效果,墙面提前进行拉毛处理,减少业主装修前的处理环节,地坪工艺采用精确测量平整度全过程验收;甚至还开展交付预处理,用专业设备将地板打磨粗糙,增加装修贴砖时的附着力……

▲样板间实景图


<< 左右滑动查看更多户型图 >>



学习  金沙集团  服务




实楼演练
















































实楼演练不仅仅是金沙锤炼产品的一大法器,更是对业主未来入住的一种责任体现。金沙的每一次实楼演练都能发现很多问题,不仅可以帮助提升工程质量,还能大幅减少业主在装修过程中的改造困扰和二次投入。


 金沙壹号院实楼演练

由金沙集团总裁带队,集团审计监察、技术研发、工程管理、成本招采,以及物业公司、区域公司、营销管理部、施工单位等核心部门精英组成实楼演练小组,针对金沙壹号院的各个户型,提前模拟未来生活场景,精研人性化生活细节,及时修正设计及功能缺陷,优化提升业主的居住舒适度。


工程精细化是金沙的立命之本,金沙生存的根基。在实楼演练的过程中,不光是要发现问题,也要发现亮点。这样在后续的施工中,可以把亮点发挥到极致,也把金沙这些优秀的做法,及时用在其他项目中。



延伸阅读

学习 | 金沙集团:贴心的物业服务


【活动报名】

报名+咨询 联系如下

1、扫描二维码 加好友咨询
(名额有限,满员即止)

咨询微信:soujianzhu03

咨询微信:soujianzhu008


2、联系电话:18132657351(微信同号)

2024年·新产品方向

《 品牌地产 | 精品楼盘活动 》

杭州、苏州、上海

成都、郑州......

广州、福州、重庆

西安、青岛......

扫描二维码 加好友咨询

领队微信:soujianzhu03


本资料声明:

1.本文为建筑设计技术分析,仅供欣赏学习。

2.本资料为要约邀请,不视为要约,所有政府、政策信息均来源于官方披露信息,具体以实物、政府主管部门批准文件及买卖双方签订的商品房买卖合同约定为准。如有变化恕不另行通知。

3.因编辑需要,文字和图片无必然联系,仅供读者参考;


推荐关注

全球精品楼盘考察

扫描二维码关注

微信公众号:全球精品楼盘考察


合作、宣传、投稿

联系微信:soujianzhu006

搜建筑·矩阵平台

【声明】内容源于网络
0
0
搜建筑
关注全球时尚的、新的建筑资讯。
内容 10717
粉丝 0
搜建筑 关注全球时尚的、新的建筑资讯。
总阅读2.8k
粉丝0
内容10.7k