



▲一层阅览区
▲二层阅览区

▲一层水吧台及就餐区

▲设计概念分析




▲交通分析



▲厂房另一侧的阶梯



▲室内空间

▲室内空间

▲西立面

▲东立面

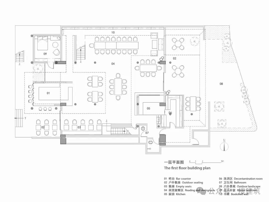
▲一层建筑平面

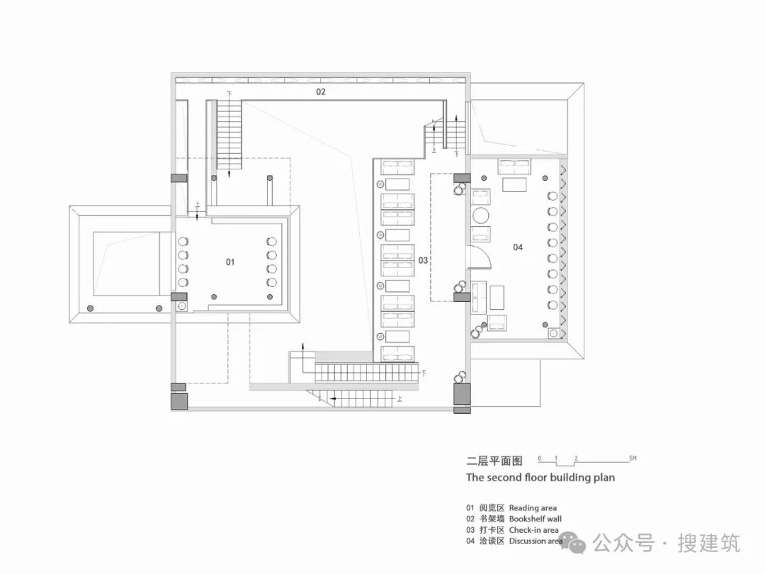
▲二层建筑平面

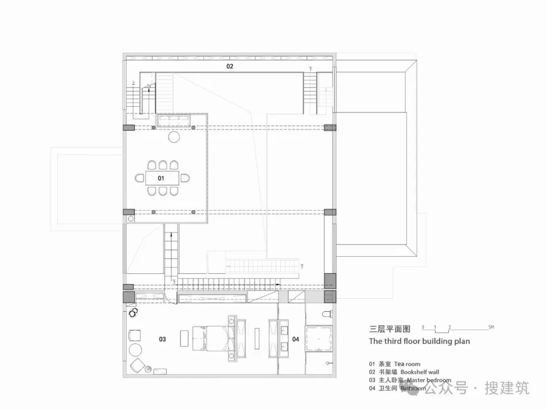
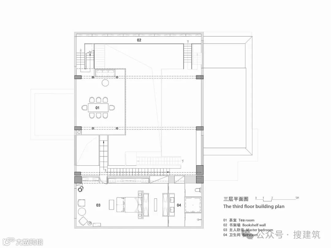
▲三层建筑平面

▲建筑西立面

▼ 更多精品·点击关注
本资料声明:
1.本文为建筑设计技术分析,仅供欣赏学习。
2.本资料为要约邀请,不视为要约,所有政府、政策信息均来源于官方披露信息,具体以实物、政府主管部门批准文件及买卖双方签订的商品房买卖合同约定为准。如有变化恕不另行通知。
3.因编辑需要,文字和图片无必然联系,仅供读者参考;

微信公众号“搜建筑”(ID:sjz9999)
合作、宣传、投稿
联系微信:soujianzhu006

