▲ 更多精品,关注“搜建筑”
阳台,建筑室内空间的延伸。
作为室内空间与大自然无界交互的场所,只有一个阳台的房子晾衣、观景只能在一个地方,而双阳台一个居家实用,一个致敬梦想。
生活阳台和景观阳台分开。
在生活阳台,可安全放置燃气热水器,避免放于室内,规避煤气泄漏风险,多了一个燃气热水器的安全放置处,规避风险,生活更安全;
景观阳台可以满足对阳台的所有幻想,可以随心规划空间,可以作为”秘密花园“,种植喜爱的花草盆栽,也可以作为放松休闲地品茶看书。
济南龙湖·天奕二期实景图
双阳台设计优势:
1、节能舒适,这种设计既保持了户型的原有的优势,采光和通风进一步得到了改善,容易产生室内空气质量的热对流,自然热冷的交叉式循环系统,因而要比中央空调更环境保护、环保节能、舒适。
2、储物空间充足,在阳台部位安装一些储物柜,进而让房间内的储物空间得到增加,让房间内能够维持整齐干净,满足了洗衣、晾晒、储物的需求。
3、增加住宅面积,阳台是建筑物外延部分,双阳台能增加住宅面积,对于小户型家中而言是特别非常好的,能够依据具体要求将阳台开展改造,为住宅扩充。
4、避免潮湿,双阳台设计能够让房间内的自然通风效果更强一些,帮助房间内维持干燥,进而高效地降低了因为房间内病菌的产生而导致的一系列健康问题。
六成以上项目,设置两个及以上阳台,其中双阳台占比超五成。
2020年所有在售项目中,单南阳台仅占比34.9%,双阳台占比超过五成。在双阳台中,以双南连接阳台为主,占整体比例的26.3%;其次是一南一北阳台,占比22.8%;双南不连接阳台仅占3.5%。可见,整体来看双阳台的比重已经显著超过了单阳台,成为主流设计。

数据来源:克而瑞研究中心
那么双阳台又分为:南向双联阳台、南北双阳台。
今天我们分析一下两种阳台各自的优劣以及各大房企的优秀案例,希望对大家有所帮助。
南向双阳台
南向双阳台适用于三开间以上的户型,一般是客厅和次卧室做大阳台,比如下面这个户型。
宁波绿城·新桂沁澜约182㎡户型
南向双阳台的优势:阳台这样连成一体,在一个6-8米宽的阳台上让人心旷神怡。把阳台封起来,不做阳台门,南向主要厅房的尺寸就大大增加了。关注经典人居
实际上现在的设计趋势,主流开发商都选择了南向做双阳台。
南向双阳台的劣势:晾晒在阳台上,这时候双开间大阳台就不太完美了,不管是对阳台的观感,还是南向次卧的采光都有一定的影响。
南通建发御珑建筑面积约185㎡户型,四室两厅三卫,近15m南向四开间面宽,开间约7.4m的超大横厅,270°环景宽幕视野的约11.5米的大面宽跑道式阳台等开阔尺度,给予空间更高的享受。关注经典人居
南京颐和源璟建面约188㎡户型,四室两三卫,多功能客厅落地窗设计,大横向开间达到了约6.8米,约10米的超大开间南向双阳台。
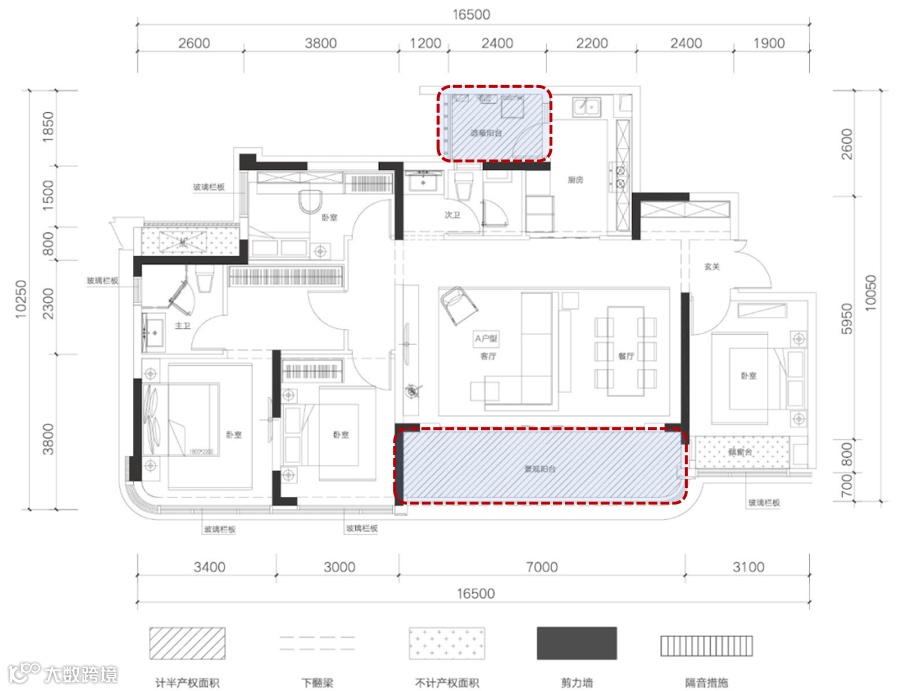
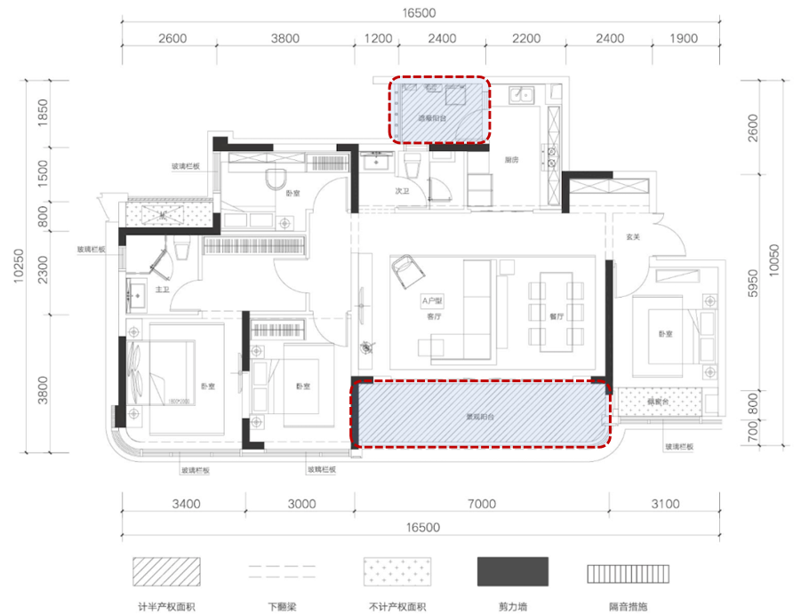
济南龙湖·天奕建筑面积约188㎡户型,约6.2m大横厅同样连接双阳台,家政空间可在次卧一侧,且南北通透,拥有更好的采光与通风,超大的空间尺度。

济南龙湖·天奕二期实景图
苏州华侨城龙湖·启元建筑面积约185㎡户型,四室两厅三卫,接近五开间朝南,大横厅、大阳台、大飘窗、大套房、入户独立玄关。

金华万科·锦里江澜建筑面积约185㎡户型,四房两室三卫,有三个房间处在同一区域,房间南北通透,LDK一体化设计尊享格局。

金华万科·锦里江澜约185㎡户型
约5.4米客厅开间,宽大的客厅更适合三孩的玩闹。主卧带浴缸、衣帽间、双台盆,“豪”的标配。而且装修设计也挺贴心,注重贮藏空间,三孩的玩具和家用占比大,庞大的储藏功能避免家庭过于杂乱。
最后再给大家献上一款三联阳台,重庆首创的一款142㎡洋房户型,观景跑道阳台长达14.8米,进深也达到2.4米,超过35平的大阳台完全可以打造成一个空中花园。
建筑面积约142㎡洋房户型平面示意图
阳台的进深对观景的体验尤为重要,天阅嘉陵突破传统的进深局限,将进深设计为约1.9m,竟然达到了2.4m,而传统的阳台进深大多数约为1.5m,仅仅0.4米的差距却能给生活带来更多的美好与可能。
重庆首创天阅嘉陵洋房样板间 实景图
南北双阳台
南北双阳台形式基本就一种:客厅+餐厅/厨房位置设阳台,比如下面这个户型:

郑州金地名悦126㎡户型
成都佳兆业麓山壹号,约169㎡户型,约8.5米阳光横厅,空间通透。超大面宽横厅,让客餐厅共享南北向阳光,在有限的面积里,尽可能让视线拓展开,居家更舒适。

成都佳兆业麓山壹号约169㎡户型

成都佳兆业麓山壹号实拍图
南北双阳台优势:房子的北边和南边分别装有一个阳台。通风对流效果好,空气置换速度比单阳台快。把阳台的功能区别开了,南阳台做成自身感兴趣的休闲娱乐地区,而北阳台因为挨近厨房,因此大部分家中会把北阳台装修成晾干衣服的地区,而且会在阳台部位安装一些储物柜,满足了洗衣、晾晒、储物的需求。
南北双阳台劣势:阳台分开的不足就是南向阳台不够气派,尺度小了点。所以在设计的时候一般把南阳台深度做大,作为弥补措施。
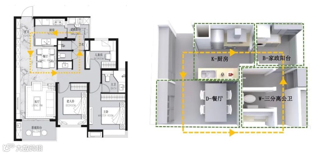
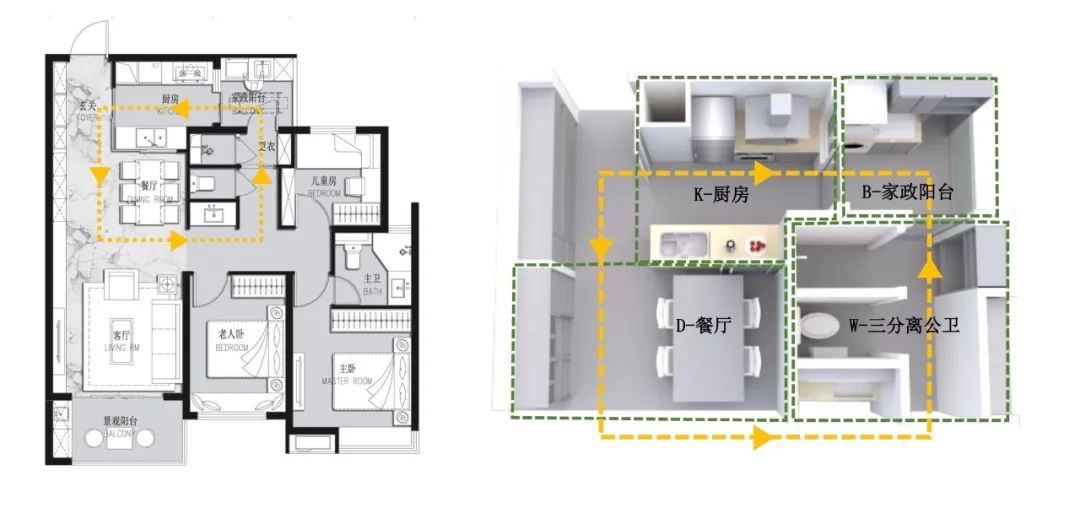
保利提出了“KBW”家政洄游动线,即玄关连通厨房、三分离公用卫生间和家政阳台,形成一条环形流线,打造高效收纳体系。
图源:poly技术汇
家政阳台设置洗衣机、烘衣机、紫外线消毒晾衣架等,轻松完成“洗澡→更衣→脏衣→洗衣→晾衣”。
这几年,越来越多项目都设计了类似的独立家政收纳间,实现一站式洗涤动线,家务做起来更方便。

图源:poly技术汇
兰州万科城·山望,面宽约7m、进深约1.8m的阔景阳台与客餐厅相连,可作为公区的延伸空间,这样一来,整个空间显得更为宽敞明亮,窗外景色更是一览无余。北向卧室连接生活阳台,生活很舒适。
兰州万科城·山望约185㎡户型平面图
比如郑州瀚海航城,南北双阳台,将绿意延伸至天际,打造人与自然和谐相处的家。在户型空间上,专属空中花园式阳台,巨幅观景视野,感受清风徐来,绿意满目的自在。

郑州瀚海航城165平米户型

郑州瀚海航城效果图
保利大都会建筑面积约173平米这种仪式感,从踏进门的那一刻开始,就已开启。

保利大都会173平米户型
重庆·融创壹号院推出了约139㎡的户型,套内能达到约117㎡,北侧阳台作为独立家政间,次卫做到了干湿分离。总面宽约17米,5开间、约7米的横厅连接同宽的南向观景阳台。
香港置地·衿湖翠林约139㎡的户型,厨房连接独立家政阳台,带储物间,总面宽16.3米,大横厅约7米,南向景观阳台同宽约7米。
重庆龙湖云瑶玉陛这个约144㎡面积段的户型从体验感上就大不相同了。整体面宽约14.2米,完全的动静分区户型,南北双阳台设计。
重庆龙湖云瑶玉陛约144㎡户型图
做了一个多功能厅,和客厅形成了约7.2米的超大横厅+同宽南向观景阳台,餐厅和厨房一体化设计外加家政阳台在北侧,生活场景更加丰富了。

重庆龙湖云瑶玉陛实景图
成都龙湖西樾锦宸建筑面积约140㎡户型4房设计,整体面宽约14米。

入户玄关设计,保障客厅私密性的同时,兼具强大收纳功能,为归家增添仪式感。约4.2米面宽的客厅,与餐厨一体化设计,L型双台面厨房,动线布局很流畅。约7.2米超大景观阳台,可做空中庭院、空中健身房等。

成都龙湖西樾锦宸样板间实景图
重庆首创天阅嘉陵建筑面积约188㎡的户型整户有约16.7m采光面宽,多功能厅设计,生活更加丰富多彩。长约10m,面积约18㎡的景观阳台,全明采光,实在是太诱人了。
建筑面积约188㎡大平层样板间 实景图
南京锦云台建筑面积约189㎡横厅户型,U型厨房搭配西厨岛台;大面宽短进深,南北通透,南向五开间约16米,约9.5米敞阔双阳台。

本资料声明:
1.本文为建筑设计技术分析,仅供欣赏学习。
2.本资料为要约邀请,不视为要约,所有政府、政策信息均来源于官方披露信息,具体以实物、政府主管部门批准文件及买卖双方签订的商品房买卖合同约定为准。如有变化恕不另行通知。
3.因编辑需要,文字和图片无必然联系,仅供读者参考;

微信公众号“搜建筑”(ID:sjz9999)
合作、宣传、投稿
联系微信:soujianzhu006














