
AGE 360 是格雷格-布斯凯(Greg Bousquet)为开发商 AG7 设计的新住宅楼,它改变了库里提巴 Ecoville 社区的景观,是一座集技术创新、可持续性和生活质量于一体的垂直建筑地标。该建筑高 124 米,被视为城市地标,反映了 AO 设计中结构实用主义与建筑诗学之间的关系。
AGE 360, the new residential building designed by Greg Bousquet for the developer AG7, transforms the landscape of the Ecoville neighborhood in Curitiba by proposing a landmark of vertical architecture that combines technical innovation, sustainability, and quality of life. Standing at 124 meters tall, the building was conceived to be an urban icon, reflecting the relationship between structural pragmatism and architectural poetics that define AO's designs.

该提案旨在打造一座从城市各处都能看到的住宅楼,同时保持与周围环境的联系。这块低密度的地块享有巴里贵公园的优越景观,这给结构和容积带来了挑战。经过 48 次容积研究,设计团队最终确定了建筑结构,既遵守了当地法规,又最大限度地利用了城市和自然视角。
The proposal was to create a residential building that would be visible from various points in the city while maintaining a connection to its surroundings. The low-density lot with privileged views of Barigui Park posed structural and volumetric challenges. After 48 volumetric studies, the team arrived at the final configuration, respecting local regulations and maximizing urban and natural perspectives, revealing a dynamic volume with chamfers that have become the identity of the project.

矿物与有机的结合--为了确保室内空间的灵活性,并使公寓摆脱柱子的束缚,AGE 360 采用了混凝土外骨骼。这种结构解决方案不仅优化了内部布局,还重新定义了住户与空间的关系,提供了多变的布局和畅通无阻的视野。这一决定还带来了强烈的美学元素,强调了塔楼的垂直度,并融入了轻盈的概念。
Integration between the mineral and the organic - To ensure flexibility in the interiors and free the apartments from columns, AGE 360 adopts a concrete exoskeleton. This structural solution not only optimizes the internal layout but also redefines the residents' relationship with the space, offering versatile layouts and unobstructed views. This decision also brought a strong aesthetic element, emphasizing the verticality of the tower and engaging with the concept of lightness.

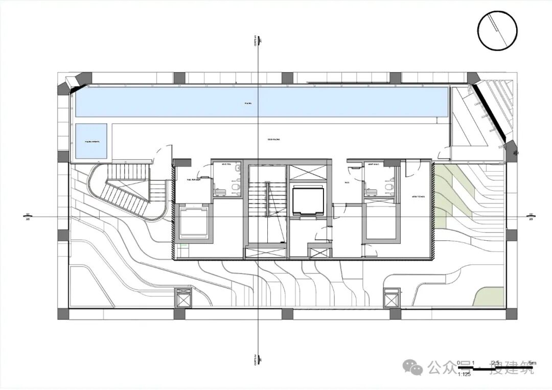
大楼的公共区域位于塔楼中央,而不是底层。泳池、水疗中心和高架花园等空间营造出一个社区环境,让城市美景尽收眼底,强化了 “健康 ”的概念,促进了身心健康。天然木材、混凝土和绿色植物点缀着这些区域,营造出舒适宁静的氛围。
The common areas of the building are positioned in the center of the tower, rather than on the ground floor. Spaces like the pool, spa, and elevated gardens create a community environment with panoramic views of the city, reinforcing the concept of "wellness" and promoting well-being. Natural wood, combined with concrete and greenery, adorns these areas, creating a cozy and quiet atmosphere.

植被是项目的支柱,强化了生物亲和力和对可持续发展的承诺。嵌入露台的花盆营造出一个连绵不断的花园,精心挑选的树种耐大风,维护成本低。裸露的混凝土与植被之间的对比形成了视觉和功能上的平衡,将居民与自然真正地联系在一起。
Vegetation is a pillar of the project, reinforcing biophilia and the commitment to sustainability. Planters embedded in the terraces create a continuous garden, while carefully selected species are resistant to high winds and require low maintenance. The contrast between exposed concrete and vegetation generates a visual and functional balance that connects residents to nature in a genuine way.

建筑遗产--AGE 360 已经赢得了全球相关奖项,如 2021 年 iF 设计奖、“反思未来 ”奖章和 Fitwel 认证,该认证旨在表彰关注用户健康和福祉的项目。这些奖项彰显了该项目对库里提巴房地产市场和城市环境的积极影响。
Architectural legacy - AGE 360 has already won globally relevant awards, such as the iF Design Award 2021, the Rethinking the Future seal, and the Fitwel certification, which recognizes projects focused on the health and well-being of users. These recognitions highlight the positive impact of the project on the real estate market and the urban context of Curitiba.

AGE 360 不仅仅是一个视觉地标,它还是建筑如何将功能性、可持续性和文化影响力融为一体的典范。“建筑师事务所创始人格雷格-布斯凯强调说:"每项决定都以功能性为指导,但结果却是与城市和自然环境诗意地融合在一起。这座建筑是现在与未来的综合体,提供了丰富城市和居民日常生活的解决方案。
More than a visual landmark, AGE 360 is an example of how architecture can integrate functionality, sustainability, and cultural impact. "Every decision was guided by functionality but resulted in something poetically integrated into the urban and natural context," emphasizes Greg Bousquet, founder of Architects Office. The building is a synthesis of how the present can engage with the future, delivering solutions that enrich the city and the daily lives of its residents.

AGE 360 再次证明,建筑不仅仅是一个建筑,它还可以成为新的生活方式和与环境联系的催化剂。
AGE 360 reaffirms that architecture can be more than just a construction — it can be a catalyst for new ways of living and connecting with the environment.

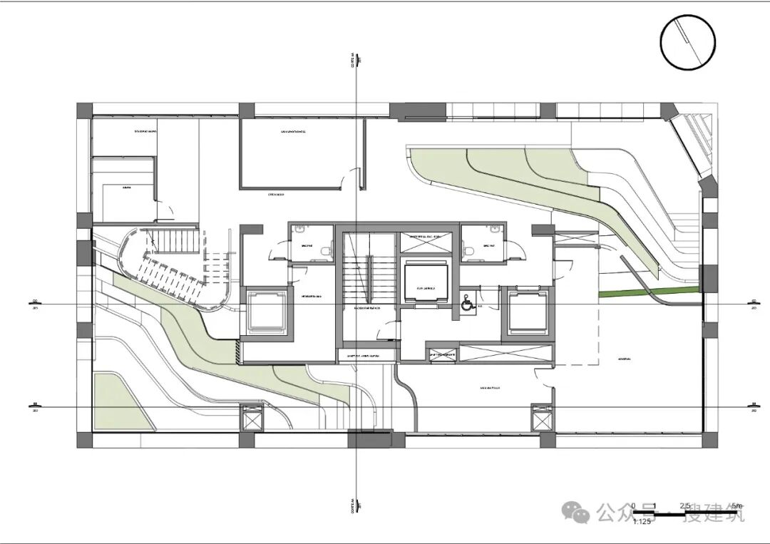
平面图
平面图
平面图
平面图
平面图
剖面图
细部节点
项目信息
建筑师:ARCHITECTS OFFICE + Triptyque
地点:巴西
面积:17000 m²
年份:2024
本资料声明:
1.本文为建筑设计技术分析,仅供欣赏学习。
2.本资料为要约邀请,不视为要约,所有政府、政策信息均来源于官方披露信息,具体以实物、政府主管部门批准文件及买卖双方签订的商品房买卖合同约定为准。如有变化恕不另行通知。
3.因编辑需要,文字和图片无必然联系,仅供读者参考;

微信公众号“搜建筑”(ID:sjz9999)
合作、宣传、投稿
联系微信:soujianzhu006