边厅,也就是端厅。
边厅已经成为豪宅的标配,近年逐渐风靡高端住宅市场
• 动静分离,人性化设计;
• 270°超广角视野,巨幕庭院阳台;
• LDKB一体设计,公区占比更大;
• 在室内实现真正的环幕视野;
搜建筑本期选取了一些200㎡以内做端厅的优秀户型,希望能对大家有所帮助。
1、开门直接见“厅”
我们都知道边厅户型动静分区很好,但是有些边厅的设计,非常容易产生走大浪费的情况,房子入户不见客厅,而是“无尽”长走廊。
应当规避此现象,进行走道专项优化,所以直接做“开门见厅”。
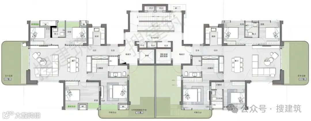
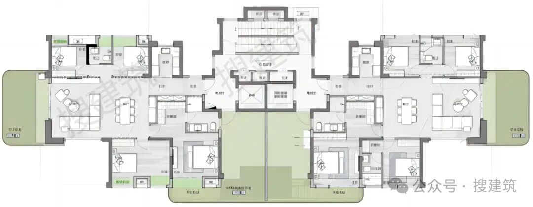
比如成都越秀天悦云萃建筑面积约173㎡四房两厅三卫户型,入户直接是仪式对景玄关,进一步是边厅,减少室内过道面积的浪费,视野也更加开阔。

△ 建筑面积约173㎡户型图
南北双阳台,三面采光,客餐厅面宽约9.7米,形成全景舱式270°采光观景的互动社交厅,空间感受做出了220㎡+户型的感觉。越秀天悦云萃对家庭关系场的深度研究,通过空间设计打造了以情感交流为核心的改善空间。

△ 建筑面积约173㎡户型图
主卧套房的设计,整体面积约34㎡,其中约3.9米*5.7米(约22㎡)就寝区空间感十足。


△ 建面约173㎡展示样板实拍图(以实际交付为准)

△ 173户型立面效果图
比如成都金科·辰光建筑面积约193㎡四房两厅三卫户型,入户直接是玄关→边厅,也能更大限度减少室内过道面积的浪费,将更多空间纳入到客、餐厅,让公共空间更为宽绰舒适,尤其适合多口之家的改善升级。

△ 金科·辰光建面约193㎡户型
LDKG设计,可以约5.1米的面宽可以形成端厅+方厅两种形式,满足不同家庭的个性化需求;中西厨岛台、270°环岛式景观阳台、IMAX级超广角奢阔采光面。

△ 金科·辰光实景图

△ 金科·辰光效果图
再来看杭州绿城丽澜轩建筑面积约175㎡四房两厅三卫户型,同样的入户既是边厅,从入户开始,独立玄关满载归家仪式感。

△ 建面约175㎡户型图
创新的设计理念打破传统客厅格局,秉承“流动空间”理念,将客厅、餐厅、厨房、阳台互通,形成开放式的家庭空间,增强家庭成员的互动。约6.9米瞰景阳台,和约3.15米开间阔尺U厨的双向取景,270°展开的取景框,让窗外的风景向室内渗透。

△ 样板间实景图
主卧套房拥有约3.9米面宽,搭配步入式衣帽间、双台盆&大浴缸的星级主卫,将主人的起居尊崇感直接拉满。

△ 样板间实景图
建筑“油画框立面”,采用纤细的金属边框,配以温润的金色光泽,使得每一个画框都能凸显出东方的美感。


△ 杭州绿城丽澜轩效果图
2、十字动线 、270°转角厅
西安中交·长安里建面约192㎡环幕大平层采用豪宅专用的边厅设计, 270°的观景与采光面,为风景而生,堪称IMAX感官体验,更是一种更高层级的生活形态与精神享受。十字玄关,也避免了走道浪费。

△ 建面约192㎡户型图

△ 西安中交·长安里192㎡样板间效果图
中交长安里外立面选用造价高于普通玻璃的三层两中空low-e玻璃,屋面以传统建筑L型折角“飞檐”封顶,底部楼层以石材的重量感“稳定”基座,搭配高级灰经典配色,凝练出雅致、简洁而不失均衡的观感。


△ 西安中交·长安里实景图
3、双重转角厅
边厅往往配上环抱式的阳台,使得使用与感官更丰富多样。所以,270°转角边厅+L形跑道式大阳台(双重转角)舒适度才能更高。
成都华润高新天序,建面约187㎡户型,4房2厅3卫,三卫是全明设计,两梯两户,独立全明电梯厅,算上电梯厅使用面积能达到200平米以上。

△ 建面约187㎡户型示意图
约16米L型转角阳台、客厅270°转角采光,整个厅的面积高达48㎡,算上阳台能达到70㎡以上。阳台设计有一个小巧思,最大进深能够达到2.2米。
再来看主卧套房,光是睡眠区的面宽就达到了约5.4米,这舒适度不言而喻,包括超大独立衣帽间、豪华主卫四件套。



△ 成都华润高新天序效果图
西安德通映南山2梯2户,建筑面积约186㎡户型,南向大面宽、超大景观阳台,实现了“270°转角厅+270°转角阳台”。

△ 建面约186㎡户型图


△ 德通·映南山建筑效果示意图
4、双重转角厅+第四代住宅
福州保利·国贸天琴湖第四代住宅,创新奇偶错层阳台设计,独立采光设计,超大面积的双空中庭院。每户都能拥有⼀个约几十㎡的天空私人花园兼⼀个约6米高的超级挑高露台。
客餐厅在偶数层连接南向私家花园,在奇数层连接侧向私家花园,私家花园均为18㎡,大尺度花园环绕客厅,体现第四代住宅特质。
我们先来看一下建筑面积约168㎡偶数层户型,约8米开间、约5米进深,打造接近40㎡转角边厅,餐、客厅联动,打通空间边界,彰显大宅奢阔尺度。
南向奢华主卧套房,开间达到3.9米,独立衣帽间配置,形成主卧复合功能配置。卫生间干湿分区,使用舒适。
△ 建面约168㎡户型偶数层平面图
下面这个建面约168㎡奇数层户型,整体五开间朝南,三面采光;南向L型庭院,约7.4米面宽,开敞通透阔尺观景平台;端厅的设计,连接约6米挑高的私家花园,IMAX级270°环幕视野;南向双主卧套房设计,主卧在奇数层联通阳台和公共平台,享受超大空中花园,舒适度极高。
△ 建面约168㎡户型奇数层平面图
整个实现建筑与环境、自然与室内生活之间的良性互动。

天琴湖的建筑立面,攫取湖波作为立面曲线,运用金属线条,选择曲弧穹顶的天琴之弦,精密计算的弧度与灵动飘逸的质感,让建筑看上去得以与天空无界相连。

△ 保利·国贸天琴湖实景图
西安保利天珺的“第四代住宅”,同样是奇偶错层布置,保利·天珺将“空中院馆”的概念带到实际居住体验中,让“庭院”在空中延伸。

△ 保利·天珺项目效果图
比如建筑面积约186㎡户型,独立电梯厅设计,拥有超大面积赠送,全楼栋均为2T2户纯板式结构,有南北双阳台,南向约16.6米的开间,极大提升了室内空间通透性。
户型空间以大面宽+空中院落和多场景居室等设计,并以LDKG+灵动岛将六大空间一体化,既保持空中院馆的面积,丰富了室内动线,又实现了空间多区域联动和场景的多元互动。
270°巨幕端厅,达到真正意义上的三面景观,IMAX级的超级感官体验;主卧套房酒店总统级套房式空间体验,享受独立衣帽间、主卫五件套,延展生活的质感与丰盈。

△ 建筑面积约186㎡户型,奇偶层示意图
保利天珺采用湾流镜面曲线的立面设计,通过自然造物的弧线美学与光影器物得相融合;每户超大南向阳台向外衔接通高约6-6.2米延伸空间,恰如一艘停靠在安静港湾的游艇,随时驶入更广阔更高处的自由之境。

△ 西安保利天珺效果图
结语
近几年,客厅的潮流变化很快。从竖厅到横厅再到方厅、巨厅、边厅。二是LDKG一体化设计,增强家庭核心区的比例。我们可以看到,边厅户型占领市场的势头很猛。超强的采光和极致视野带来的体验价值,广受8090后客户的追捧,竞争力十足。
本资料声明:
1.本文为建筑设计技术分析,仅供欣赏学习。
2.本资料为要约邀请,不视为要约,所有政府、政策信息均来源于官方披露信息,具体以实物、政府主管部门批准文件及买卖双方签订的商品房买卖合同约定为准。如有变化恕不另行通知。
3.因编辑需要,文字和图片无必然联系,仅供读者参考;

微信公众号“搜建筑”(ID:sjz9999)
合作、宣传、投稿
联系微信:soujianzhu006





