▲ 更多精品,关注“搜建筑”
在户型面积段里,139㎡属于标志性的户型面积,究竟能实现怎样的突破?
随着政策的开放,让更多人在买房时选择3房甚至4房,多房间的户型产品需求有增无减,而且这样的产品也需要尽可能多的卧室朝阳。
139方!拥有160的空间想象
在如何利用空间上,各大房企可谓费尽心思。这些139方户型在全国大部分地区都是喜闻乐见的好产品,接下来我们做一下户型上的对比,看看这些139平户型有什么共性和各自的特点。
多功能空间的开发
宁波保利·瑧誉建面约139㎡这个户型南向整体面宽达约13.5米,把三个卧室和客厅都安排在了南面,阳台拥有270°景观视野。
入户之后有一个独立储藏室,各种SIZE的行李箱、高尔夫球杆、孩子的滑板等生活用品都能科学收纳,出门时也能方便拿取。

宁波保利·瑧誉建面约139㎡这个户型
LDK竖厅的设计,打造一个充满活力的家庭公区,这样的复合空间能满足家庭在不同生命阶段的生活所需。

保利·瑧誉示意图
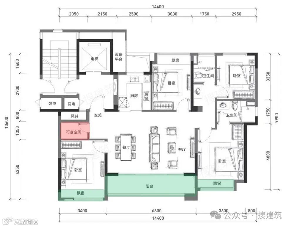
杭州绿城·月映咏荷园建面约139㎡这个户型四开间朝南,保证了采光,入口玄关有一个可变空间,可以用作杂物房或者衣帽间。

杭州绿城·月映咏荷园建面约139㎡户型
另外LDKG一体化的设计,让整个空间尺度更加宽敞舒适,南向带6.6米大面宽阳台,14.4米四开间朝南,U型厨房,还预留了冰箱位,满足一家人的日常起居生活所需。

杭州绿城·月映咏荷园效果图
注重LDKB公区空间的打造
台州中盛·悦江府建面约139方的4房主力户型,三重场景设计,可谓层层递进。首先,南向大开间设计,约12.75米的惊人面宽,让所有房间都能沐浴在阳光之下,其次,南北面都是双联大阳台,景观面做到了极致。

台州中盛·悦江府建面约139㎡户型
该户型还拥有约60㎡方厅设计,没有任何柱子或者承重墙,能基于一线瞰江的优越条件,以及家庭生活的需要,自由设计各类场景。

台州中盛·悦江府效果图/仅为示意
宁波臻堇园建面约139㎡户型4房2厅2卫,户型方正,类“一梯一户”的设计,能将独立电梯厅完全利用起来,使用率非常高。三开间朝南的户型,南向面宽达到了约12.2米,“0过道设计”,客厅面宽约5.3米,!X空间,足以容纳一个开放式的茶室,尺度感非常强烈。

宁波臻堇园建面约139㎡户型图

宁波臻堇园实景图

宁波臻堇园实景图
南京金陵星图建面约139㎡3房2厅2卫户型,整体户型南北通透,户型方正,户型设计采用3+1多功能布局,为成长型户型设计理念。横向近13米的超大面宽,南向开间达到四开间标准,居住舒适性高。

南京金陵星图建面约139㎡户型
户型采用LDK一体化的餐客厨设计,结合约6.6米横厅设计,整个活动空间面积高达约50㎡,极大的增大了整个公区的尺度空间感。


南京金陵星图样板间

南京金陵星图效果图
厦门联发·保利臻樾建筑面积约139平四房产品,两梯两户,大面宽四开间朝南,约8.1米面宽的南向大阳台连接次卧,餐客厨一体的横厅模式更是使得整个空间宽敞明亮,舒展度简直媲美大平层。

厦门联发·保利臻樾建面约139平户型
超大方正的LDKB空间,避免了走道空间浪费,可以让空间更连贯,容纳不同的生活场景。

联发保利|臻樾样板房实拍图 
联发保利|臻樾项目效果图
杭州建发华发·江华玺云约139㎡的四叶草户型,实现了大四房设计,4个房间围合着LDK餐客厨一体化布局,带南北双阳台。

杭州建发华发·江华玺云建面约139㎡户型

建发华发·江华玺云效果图
杭州伟星·星瓒颂锦府建筑面积约139㎡,分边套和中间套两种互补户型。

杭州伟星·星瓒颂锦府建面约139㎡边套户型
边套三开间朝南,胜在双阳台加持——南向的生活阳台和侧方的赏景阳台。还附赠一个家政间,统统可以收纳入内。

杭州伟星·星瓒颂锦府建面约139㎡中间套户型
中间套的建筑面积约139㎡,则提供了另一种选择,其最大特色就是四开间朝南,并连通一个双开间的大阳台,整体呈现黄金分割比例的“刀锋”户型。

星瓒颂锦府效果图
本资料声明:
1.本文为建筑设计技术分析,仅供欣赏学习。
2.本资料为要约邀请,不视为要约,所有政府、政策信息均来源于官方披露信息,具体以实物、政府主管部门批准文件及买卖双方签订的商品房买卖合同约定为准。如有变化恕不另行通知。
3.因编辑需要,文字和图片无必然联系,仅供读者参考;

微信公众号“搜建筑”(ID:sjz9999)
合作、宣传、投稿
联系微信:soujianzhu006

