
▲2018年航拍



▲广场人视图©清筑影像

▲鸟瞰图©九里建筑摄影

▲东侧半鸟瞰©九里建筑摄影

▲中心广场鸟瞰图©九里建筑摄影

▲中心广场人视图©清筑影像

▲中心广场人视图©清筑影像

▲中心广场人视图©清筑影像



▲中心广场商业©初祎君

▲中心广场局部©初祎君


▲建筑细部©初祎君

▲多层办公立面©九里建筑摄影

▲多层办公细部©清筑影像


▲塔楼30层南向室内空间©初祎君


▲塔楼入口©清筑影像

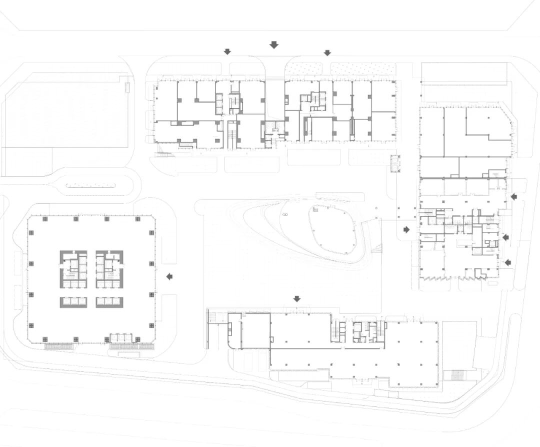
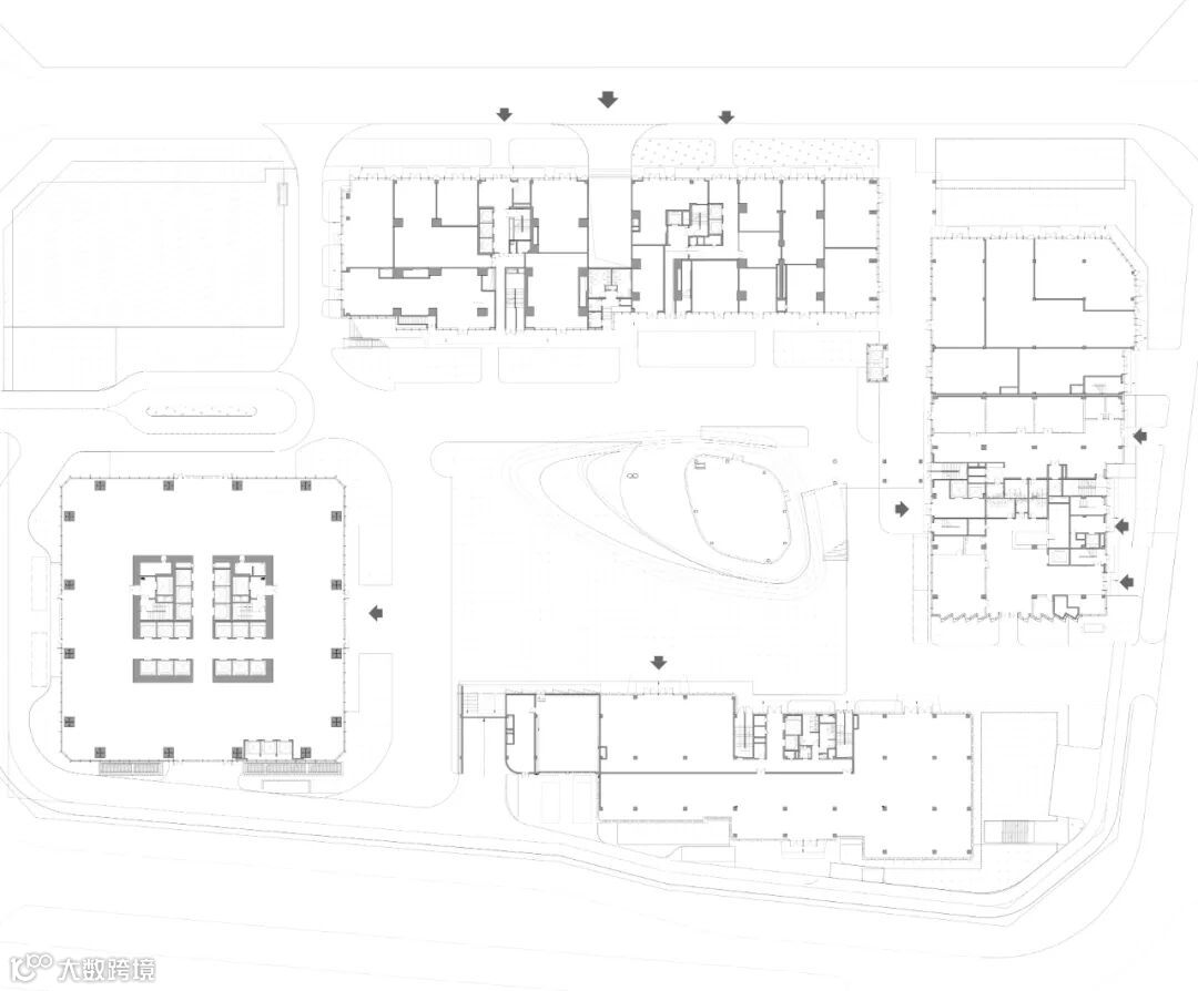
▲总平面图

▲首层平面组合图

▲办公平面图

项目信息
项目地点:广东省深圳市
客户:深圳华强云产业园管理有限公司
设计范围:规划、建筑设计
主要功能:产业研发办公、配套宿舍、配套商业,公共配套设施
用地面积:24000㎡
总建筑面积:192000㎡
设计/竣工年份:2018/2023
AUBE欧博设计团队:
主创建筑师:初祎君
项目负责人:丁荣
建筑设计:蔡寒丹、冯德泰、徐锐豪、郑晓雪、陈熙、许宗琦、彭勇、陈秋霞、叶函羽
建筑方案设计:深圳市欧博工程设计顾问有限公司
施工图设计:深圳市鹏清建筑与规划设计有限公司
▼ 更多精品·点击关注
本资料声明:
1.本文为建筑设计技术分析,仅供欣赏学习。
2.本资料为要约邀请,不视为要约,所有政府、政策信息均来源于官方披露信息,具体以实物、政府主管部门批准文件及买卖双方签订的商品房买卖合同约定为准。如有变化恕不另行通知。
3.因编辑需要,文字和图片无必然联系,仅供读者参考;

微信公众号“搜建筑”(ID:sjz9999)
合作、宣传、投稿
联系微信:soujianzhu006


