▲ 更多精品,关注“搜建筑”
为什么要重金投入外立面?
因为一个楼盘最大的体面就是外立面
如何设计建筑外立面并将设计与周边环境完美结合是建筑师和开发商的基本素养,建筑外立面在设计上有很多讲究,本期搜建筑从住宅外立面形体的虚实、比例、空间、手法、材质等多方面展开讲讲。
外立面一体化
整体建筑黄金比例分割
我们看到市面上的高端住宅多采用经典的「三段式」外立面设计手法,通过基座、主体、顶部的层级划分,营造稳定、庄重的视觉效果。
黄金比例划分:
1、基座(Base):高度约占建筑总高的1/8~1/6(通常为2-3层),以材质(石材/仿石铝板等),增强稳重感。
2、主体(Body):占比约60%-70%,注重竖向或横向线条韵律(如窗墙系统、装饰线条)
3、顶部(Crown):占比1/10~1/8(挑檐或装饰构件),通过檐口线、女儿墙收边形成视觉终点

▲示意图
各段精细化设计要点
1. 基座以及入户门头设计(标识性+功能性)
① 基座设计需要考虑材质应选择高耐候材料,比如天然石材、仿石材料等,既要美观又要耐用。
同时还需关注施工工艺,比如干挂石材的节点处理、预埋件的定位,以及如何避免常见的开裂、色差、标准化分缝处理等问题。
比如成都华发统建·锦宸院基座主要由各类石材组成,比如库班绿石材,延续了“弧形倒角”的设计语言,整个锦宸院的建筑立面实现了“零漆感”,据说其洋房的立面成本高达1500元/平。

▲锦宸院洋房局部立面实景图
比如合肥招商玺的立面基座采用石材,侧面采用仿石铝板,体现基座的厚重感。既优化了成本,又保持了立面的美观效果。

▲合肥招商玺实景图
飞片挑檐与防火玻璃有机结合,既能满足防火规范要求,又能体现立面效果及气质,同时节约成本。大胆采用了隐框立柱超宽曲面屏设计,这种创新设计极大地开阔了视野范围,使得居住体验超越了许多一线城市的顶级写字楼和酒店,展现了其独特之处。
▲合肥招商玺实景图
招商中旅中环臻邸在建筑材质上,基座采用深灰色石材+香槟金铝板,石材搭配铝板也是高端住宅常见的材料美学组合,为建筑增添了独特的魅力。

▲中环臻邸建筑设计示意图

▲中环臻邸实景图
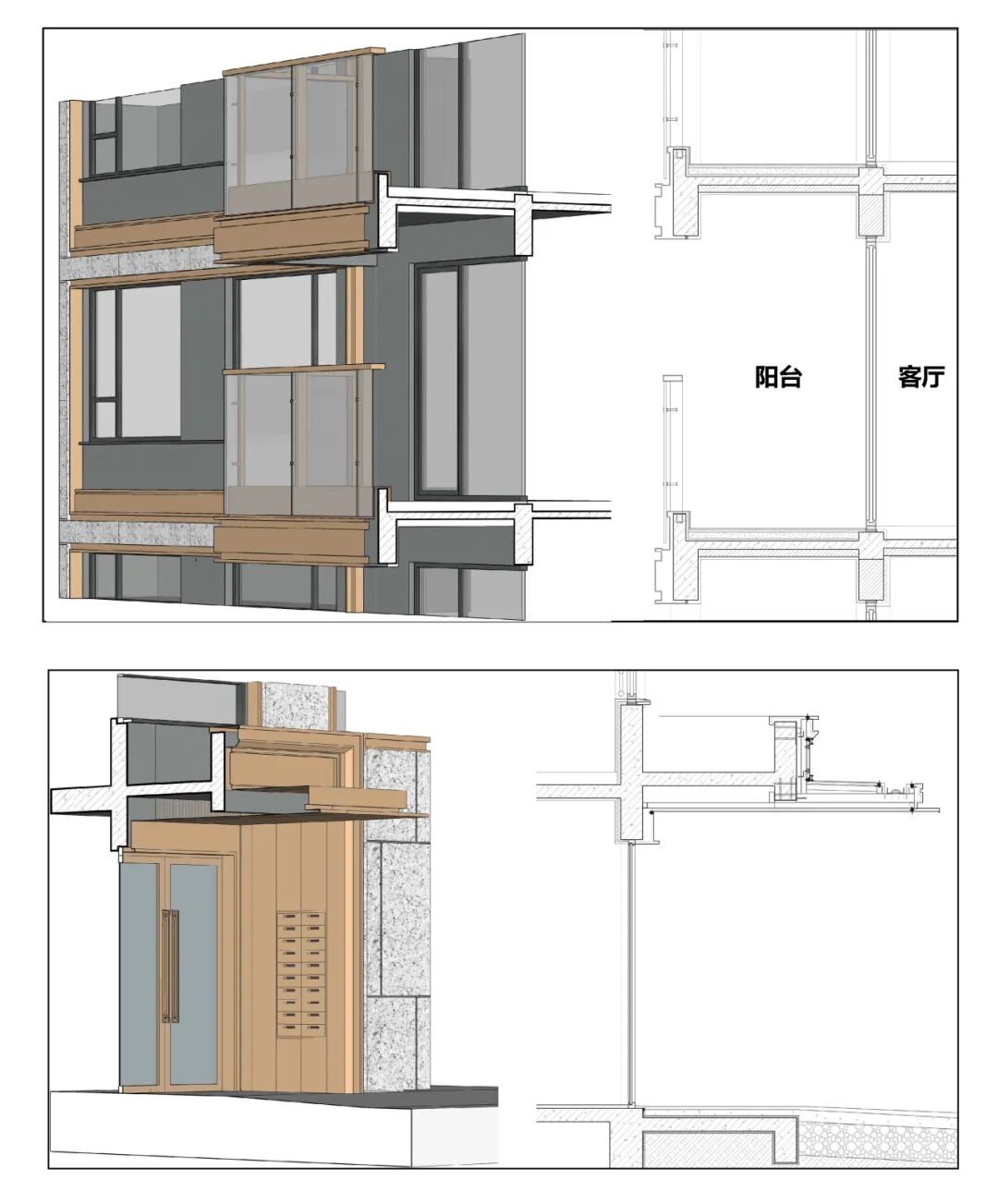
② 入户门头作为归家的焦点,需要强化仪式感。设计需要考虑整体风格、高度、材质、灯光等因素。此外,功能性的考虑也不能忽视,比如雨篷的排水、无障碍设计等。
比如龙湖·景粼天序在门头设计及材料选择上,选用多层次线脚造型和斜边处理,雨棚设置线型连续灯带,勾勒出动感流动效果;门头搭配玉石专属族徽,增强归家仪式感。仿石砖密拼的工艺,南北立面定制设计层间金属格栅,打造独有的立面肌理,兼具美学与实用性。

▲景粼天序入户门头实景图
近人尺度选用仿石砖、铝板、不锈钢等高品质材料,古铜色金属与通透玻璃搭配,结合专属定制单元门及暗纹蚀刻LOGO门把手,点缀天青色玉石。立面层间点缀咖色金属漆延续串联暖色的城市记忆,涂料历经十几次打样只为业主归家的一抹温暖质感。

▲景粼天序入户门头实景图
苏州青云台约6.3m挑高入户门头设计,气派十足,奢石镶嵌,金属勾勒线条,飘远的雨棚与壁柱的结合,让青云台的单元大堂获得震撼的通高空间。

▲青云台效果图
立柱和灯柱用普拉达绿奢石做装饰,顶部是整面的仿云石做吊顶,奢石名贵,造价单方过万。像顶部这种完整的玉感质面实在罕见,而且非常昂贵。

▲青云台效果图
台州建发·璞云入户大堂的设计上,以北宋都城建筑为样本,提取“版引檐”、“擗帘杆”、“避风䈋”、“勾窗阑槛”、“方格挂䈋”等设计,串联起整个立面。


▲入户大堂效果示意图
入户大堂首层无住宅落地,留出空间与外部环境对望,沟通,互动,精巧而庄重的设计让踏足至此的宾客感受宋代特有的仪式感。基座保留“擗帘杆”独特的美学特点,用运用简洁的线条来表现其纤细精巧,更具流线型的美感。“挂落”垂于“重檐”之下,让立面层次更加丰富,彰显淡雅精致的宋式建筑韵味;格栅与立面的简洁线条结合,为建筑增添独特视觉效果。


▲入户大堂效果示意图
2. 主体设计(0涂感、通透感材质+高端线条韵律感)
① 装饰线条
超流体曲线立面:具有差异化的颜值审美,弧形线条强化艺术韵律感,现代材质体现科技时尚感,大面积采光面凸显景观视野最大化等特点。
比如,杭州招商·杭著臻邸住宅中部标准段竖向采用金属划分身段的比例,横向采用浅色色横向腰线作为层划分,大面积玻璃幕,两种颜色形成对比,不失单调简约大气,建筑的南北两面,均有多处270°弧线元素,线条流畅高级,将观景视野进一步拉宽,还形成双面采光的转角厅。

▲杭著臻邸效果图
三亚保利海晏建筑整体融贯海洋的灵感,从海浪波纹提炼出美学形态,运用超流体曲线立面,令整个建筑立面显得轻盈优雅。金属铝板勾勒出的精工线条与雕刻工艺,精细打磨还原了建筑浑然天成的美感。

▲保利海晏效果图

▲保利海晏实景图
立面采用的大块超白玻璃,曲线形状的大阳台如层层海沫一般轻盈地漂浮在立面上错层的阳台设计让立面也更加的灵动。

▲保利海晏示意图
伟星长江之歌和伟星T10项目,做了360°全景环幕玻璃立面从弧形玻璃到弧形窗框,再到弧形铝板,这些流畅的曲线设计,赋予了建筑一种灵动而柔美的艺术气息。
伟星长江之歌的建筑层高约3.4米,与之相匹配的是更大比例和更高造价的Low-E落地玻璃,以及仅约73毫米窗框极限工艺。在横向维度上,采用了铝板和铝合金线条的“极简化”处理,使得整个玻璃外立面的效果和谐而统一,在整个南京都独树一帜。

▲伟星长江之歌实景图
伟星T10项目颠覆以往大多数高层千篇一律的垂直直线与棱角设计,建筑融入了国际超流体美学建筑,整体线条参考法拉利流线型车身,通过大面积LOW-E玻璃与铝板线条、直线与曲线的结合,化繁为简,用横向长窗,超大的窗墙比达到幕墙效果,打造东西山墙面都无材料割裂感的360°环幕立面。

▲伟星T10实景图
直角线条立面:通过缩窄建筑外框,采用大面玻璃结合“超纤细”线条,让立面更简洁,更高窗墙比的设计,让视觉上更具有挺拔的力量和稳重。
比如,徐汇康健·汇樾庭在建筑的外立面上,金色的笔触轻轻勾勒出近似油画金框的立面细节。玻璃的通透与石材的厚重相互映衬。

▲徐汇康健·汇樾庭实景图
香槟金的铝板,以“金边细框”细腻地勾勒出建筑的简约时尚与灵动典雅。通过扩展阳台玻璃栏板的尺寸,我们不仅增强了建筑外立面的通透度,还提升了整体的精致氛围,同时赋予建筑以现代感和尊贵气质。


▲徐汇康健·汇樾庭节点示意图
比如杭州建发华发·江华玺云13-16层小高层,以三段式设计立足钱塘江畔,四面大面铝板的外立面,悬浮式设计的窗框,装饰着“双眼皮”凹槽+定制华纹,竖向点缀的金色直线线条,阳光照耀下熠熠发光,非常具有辨识度。


▲江华玺云立面实景图
② 决定外立面颜值的材质、窗墙比
比如,建发·灯湖缦云外立面270°全幅转角窗,加上双层挑空,它们在立面上形成了约90%的超高窗墙比。


▲建发·灯湖缦云 实景图
南京首开桃园金茂府的立面设计采用了中国古代皇城基因的对称之美,以现代中正对称的布局与阅江楼的传统对称秩序遥相呼应。建筑超大光幕玻璃的流光立面搭配香槟金色铝板勾勒线条,高贵典雅。南向窗墙比高达0.52,大面阳台落地窗将室外的光线和景观最大化引入室内。

▲首开桃园金茂府效果图
重庆龙湖·江山颂在建筑立面的设计上,香槟金铝板与星空蓝玻璃交织,现代化经典三段式立面,主采光面约64%窗墙比,全落地窗设计。

▲江山颂 示意图

▲江山颂 意境图
3. 顶部设计(标志性+独特天际线)
中信泰富·九庐立面的顶部,做了可发光的塔冠,晚上回家的时候,远远看就像亮着的一盏灯。这种感觉就像是海上灯塔,为归家的人指明方向,温馨又温暖。

▲中信泰富·九庐外立面效果图,实际以交付为准
广州保利都荟天珺建筑塔冠设计彰显向上的峻拔气度,巧妙融合金属构架与彩釉玻璃,构筑出独特的审美风貌。在造型上,金属构架错落有致,犹如众星拱月,营造出环抱式的视觉盛宴。

▲都荟天珺效果图
成都龙湖·天玺项目巧妙融入圣爱德华皇冠造型流线,搭配深灰色、米白色和香槟色三种高定色系,彰显稳重大气的先锋美学立面。

▲龙湖·天玺外立面效果图
杭州招商·杭著臻邸住宅顶部采用构架升上去一层,屋顶飘檐采用金属框架和横向细致的格栅作为装饰,高低对比,简洁大气,让头部显得轻盈,同时具备很强的识别性和现代感的特点。

▲杭著臻邸效果图
结语:
住宅外立面的精细化设计是提升建筑品质和美学价值的关键,涉及线条线脚、玻璃窗扇尺度及施工工艺等多个维度的系统性考量。通过系统性整合设计、材料、工艺等要素,可实现外立面美学、功能与耐久性的全面提升。
本资料声明:
1.本文为建筑设计技术分析,仅供欣赏学习。
2.本资料为要约邀请,不视为要约,所有政府、政策信息均来源于官方披露信息,具体以实物、政府主管部门批准文件及买卖双方签订的商品房买卖合同约定为准。如有变化恕不另行通知。
3.因编辑需要,文字和图片无必然联系,仅供读者参考;

微信公众号“搜建筑”(ID:sjz9999)
合作、宣传、投稿
联系微信:soujianzhu006


