群山环抱的麦积山一峰独秀,断崖之上自前秦以来石窟开凿的历史述说着施主的笃信和工匠的虔诚,遗留下的是佛教雕塑艺术精湛的旷世杰作。麦积山游客中心以红砂岩的外表、循环往复的态势、光影变幻的空间、丰富翔实的展示,建立起连接过去与未来的桥梁。
登上麦积山石窟崖壁上的栈道,远眺周围的群山,众多起伏的山峦形成的巨大的环形构造。在视线可及之处,还有几个类似于麦积山的山体结构,麦积山只是这种结构中最大的一个。虽然,群山横亘在大地之上,安然且稳重,但内在的能量聚集,形成了一坡接一坡、一环套一环的较量,最终在节点之处形成了断崖峭壁。
麦积山石窟及周边历史遗迹是古代中原地区与古代西部地区长期交融与汇合的历史见证。在这个过程中,传入的佛教与中原地区原生文化发生碰撞,相互作用,并对国人的精神生活产生了深远影响。
探讨麦积山文化及艺术的意义首先要思考佛教的影响,设计便由此开始。环形结构是人类意识觉醒后被用于仪式性空间和纪念性场所最常见、最原始的一类空间形态,它与佛家的轮回观念相对应。一切有生命的东西如不寻求“解脱”,就永远在“六道”中生死相续,无有止息。当然,这些观念及注解在历史长河中经过文化交融发生变化,尤其是在与汉民族原生文化产生交流及融合的过程中,甚至在现代化的过程中,它已经超越佛教本来的意义,有了更加当代性的解读,这将预示着可持续发展的现实主义力量并作用于我们的生活体验。
环形空间是建筑体验的基本感受,同时将周边自然环境的山势起伏融于整个造型之中,促使人文情怀和环境力量叠加形成具有当代精神的能量场,是具有环境力量的公共空间参与者,并将这种态势漫延到整个场地设计中。
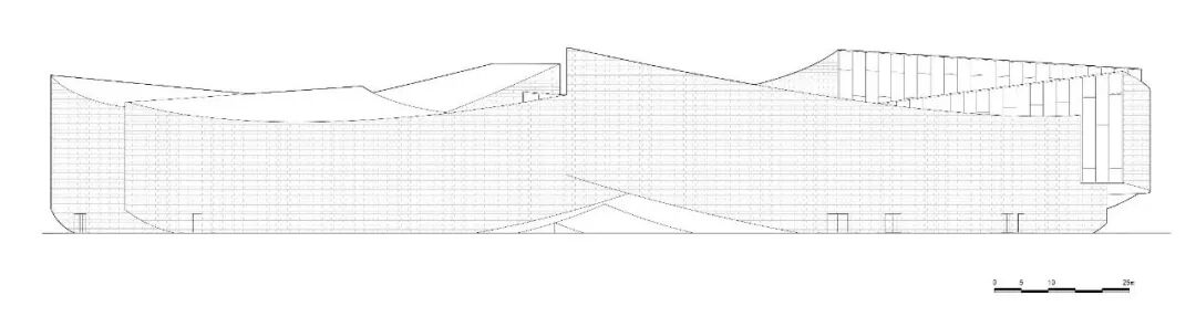
环形结构有分解为6个体量,且均是梯形造型,相互穿插在一起。在体型交界处出现了“缝隙”,在外面可视为造型的节点,而在内部则形成了室外光线的开口,光线以一种神秘的力量照进建筑中,并成为引导观众从一个空间走向下一个空间的召唤。游客中心的各项展示功能,正是在这样的空间编排下,不断展开的。
建筑的室内空间正是在这样的特殊的光线引导下展开的,建筑的主入口面向西侧道路,在两个体量相撞下,形成拱起的灰空间。这里可以直接看到环形结构中的庭院,顶部是由金属板彩绘吊顶呈现的麦积山石窟中的壁画内容,色彩既鲜艳又古朴,让人感到扑面而来的文化气息。
从此进入游客中心的室内,顺时针方向沿缓坡前行,首先是接待空间,然后依次是数字麦积山前厅、5D数字球幕影厅、演绎中心前厅、展览休闲区、最终到达文创中心,共计六个主题空间,同时该空间也是出发前厅的上空,至此完成动线的闭环。
入口集散服务大厅
室内空间最大的特色就是六个相对封闭且巨大的无柱空间由6个梯形筒体分隔而成、其中四个筒体是起结构支撑和抗震作用,每个筒体中布置了各种的服务空间。六个可以自由布局的空间和色彩灵感源于河西走廊东段中原文化对佛教文化的兼容并蓄。
环形没有明显的棱角和缺口,是一种完美形状,具有很强的包容性,没有明确的方向性和边界限制,能容纳和接纳各种事物。就像佛教以宽广的胸怀接纳众生,建筑的环形也象征着对不同文化、不同背景游客的包容,提供一个和谐共处的空间。
环形的流畅线条给人一种柔和、舒缓的感觉,能让人内心平静,仿佛置身于喧嚣尘世之外,营造出与佛教修行所追求的宁静氛围相契合的环境,让游客在进入服务中心时,能感受到内心的安宁。为游客之间的交流互动创造了良好条件,极大提升了游客的游览体验,成为兼具文化底蕴与现代功能的标志性建筑。
时间:2016年—2024年
面积:16,154㎡
类型:文化建筑
状态:已建成
地点:中国,甘肃天水
业主:天水市麦积山文化旅游发展有限公司
设计单位:朱小地工作室 + 北京市建筑设计研究院
主持建筑师:朱小地
设计团队:
建筑:汪大炜、樊华、张仔建、王健、李翔、崔晓勇、张政、姜薇、李祎玮、宋媛媛、刘坤、王昊楠、范文娟、刘雯静、程亚楠
结构:杨懿、盖克雨、唐绍雪、耿青、宋春阳、朱忠义(设计指导)
设备:孙亮、李洁、梁鹏、赵国成、刘洁琮、时汗林、白鹏飞
电气:梁巍、王绪、高扬、刘朔辰、王灵丽
室内设计:朱小地工作室 + 吴燕明工作室
景观设计:北京市建筑设计研究院 + 绿盟(北京)国际工程设计有限公司
灯光设计:北京清华同衡规划设计研究院有限公司 吴哲、唐莉
摄影:©存在建筑Arch-Exist ©王祥东 ©瀚墨视觉
视频:©存在建筑Arch-Exist ©吴燕明工作室
视频剪辑:张哲鹏
本资料声明:
1.本文为建筑设计技术分析,仅供欣赏学习。
2.本资料为要约邀请,不视为要约,所有政府、政策信息均来源于官方披露信息,具体以实物、政府主管部门批准文件及买卖双方签订的商品房买卖合同约定为准。如有变化恕不另行通知。
3.因编辑需要,文字和图片无必然联系,仅供读者参考;

微信公众号“搜建筑”(ID:sjz9999)
合作、宣传、投稿
联系微信:soujianzhu006
搜建筑·矩阵平台