
平墅特点
居住功能“扁平化”
一层一户
拥有“别墅”的私密性
注重公区的打造
拥有亟致的墅居体验
空间,尤其是景观豪宅产公共空间,理应是承接主人意志,对景观资源极致享有。
“LDKG”新型空间理念,是户型室内公区进阶的表现,设计从情感的维度出发,创造全新的生活方式,主要原因是其满足了人的更高层次需求。
济南龙湖·天奕二期注重公区的打造,通过LDKG一体化、双套房等一系列创新设计,满足现代亲情陪伴、家庭分享、自我独立等多种生活诉求。
该户型以8.3m的进深、10.6m的面宽打造88㎡超大边厅,形成全明采光面。中厨采用U型设计,在比一期产品更大的空间尺度内,以三角动线升级烹饪体验,西厨的独立大开间可搭配多种高端配置,满足现代化餐食需求。
阳台打开生活的边界,动线环绕各个生活场景,让空间流动起来,形成广阔的公区视野,生成高频社交。
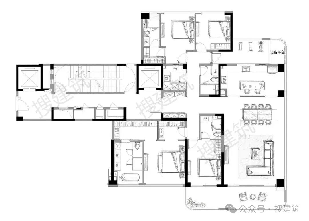
长沙绿城凤起麓鸣建面约285㎡经典户型采用“LDKG”一体化设计,形成无界聚合生活场景,四大公区打破边界、融为一体,构成家庭的核心区域。
270°环幕客厅,Super Flat曲面转角玻璃幕墙、金镶玉高级工艺,带来“超平面”美学体验,阔达8、9米的落地窗,让室内空间与室外景色的界限消融,呈现非凡的享受。
南北通透双阳台,让每一寸空间,变成光影美学之旅。约6m宽中西双厨与餐厅空间相连,动线优越,美味近在咫尺之间。三套房豪华配置,匹配塔尖居住需求,实现家人生活的“平权”。

建面约285户型图
样板间图

效果图
宁波伟星·玉堰珑印府建筑面积约232㎡户型,从家居的舒适度和房屋面积的利用率上来讲,这样的户型也是目前市场认可度很高的户型。
整个公区设计很大程度上避免了走到面积浪费,在客厅旁还可以开拓出X空间,可改造成书房、茶室、游戏房、瑜伽室等,和X空间相结合,整体空间进一步扩大。
整个楼盘的精装标准,每平米在8600到9000之间,客餐厅采用的是土耳其进口的直纹白玉天然大理石,而且石材大量使用了拼花工艺,费时费力费料,足见开发商的诚意。

注重室内与户外空间的融合
打造有天有地的庭院空间
项目实拍图
郑州未来天奕阳台采用奇偶错层设计,北向全部有阳台,视野非常宽广,能够很大程度看到东风渠的一线景观;每一户都能拥有无遮挡的观景视野。整个客厅双面全落地玻璃幕的设计,让整个客厅采光和视野无敌,而客厅的面积约80㎡。

同样是建面约288㎡的奇数层和偶数层户型,其最大的区别在于阳台的位置。南北双阳台双A立面,从南北看效果都一样,最宽约4米的悬挑阳台,采用柔美的弧形曲线,错层挑空,层高达到6.3米,既让外立面显得更灵动跳跃,也提升了居住舒适性。

建筑效果图
大平层一直被拿来与别墅比较,但事实上,现在很多大平层豪宅的户型设计越来越别墅化了。今天介绍的这些项目也是近两年全国比较值得考察的豪宅大平层产品。
本资料声明:
1.本文为建筑设计技术分析,仅供欣赏学习。
2.本资料为要约邀请,不视为要约,所有政府、政策信息均来源于官方披露信息,具体以实物、政府主管部门批准文件及买卖双方签订的商品房买卖合同约定为准。如有变化恕不另行通知。
3.因编辑需要,文字和图片无必然联系,仅供读者参考;

微信公众号“搜建筑”(ID:sjz9999)
合作、宣传、投稿
联系微信:soujianzhu006



