南京大学苏州附属小学
启迪设计
南京大学苏州附属小学位于苏州高新区科技城教育核心区。它是南京大学东区延伸科技创新链条、建设研学产业中心的关键环节。它于2024年9月正式投入使用。基地四周环绕着“西临太湖,东望高山”的优美景观格局。东南两侧有两条蜿蜒的河流环绕,自然资源丰富。
位于山水之间的独特自然优势,使得设计聚焦于如何摒弃传统小学过分强调效率的旧模式,创造一种集自然、环境教育、开放包容、灵活空间布局于一体的新型校园综合体。多种绿色建筑技术被用于创建一个弹性校园,以满足新时代的教育需求。
Nanjing University Suzhou Affiliated Primary School is located in the educational core area of Suzhou High tech Zone Science and Technology City. It is a key link in extending the scientific and technological innovation chain and building a research and learning industry hub in the eastern area of Nanjing University. It was officially put into use in September 2024. The base is surrounded by the excellent landscape pattern of 'the Taihu Lake Lake lies in the west and mountains look east'. The southeast sides are surrounded by two winding rivers, which are rich in natural resources. The unique natural advantage of being located between mountains and waters has led the design to focus on how to abandon the old model of traditional primary schools that overly emphasizes efficiency, and instead create a new type of campus complex that integrates nature, environmental education, openness, inclusiveness, and flexible spatial layout. Multiple green building technologies are used to create a resilient campus that meets the educational needs of the new era.
流线织网
针对校园西侧规划中的轨道交通建设可能带来的施工干扰,本项目采取以下设计策略。功能分区方面,将运动场布置于西侧地块,作为声环境缓冲带,中部布置文体综合区,核心教学区集中设置在东侧,确保500米直线距离外的噪音控制在50分贝以下。
交通系统方面,设计将包含专业教室的综合楼区域其融入带有最大45度转角的曲折走廊设计中,走廊连接各功能区实现全天候风雨连廊系统,避免行列式教学楼对视问题和东西向眩光。专业教室集群的模块化组合也使得空间效能大幅提升,通过折线形布局将建筑密度降低至21%,释放出占总用地27%的复合活动绿地,形成”专业教室-共享中庭-户外课堂”的三级教学空间序列。
作为功能枢纽的综合楼,通过与非线性的功能区域协同围合,构建出兼具私密性与开放性的复合庭院体系。针对上下学高峰的交通疏导需求,方案在南北轴线上设置了分流式出入口广场,并结合首层架空设计,实现视觉通廊的延展性。
In response to the potential construction interference caused by the planned rail transit construction on the west side of the campus, this project adopts the following design strategies. In terms of functional zoning, the sports field will be arranged on the west side of the plot as a buffer zone for the sound environment, the cultural and sports comprehensive area will be arranged in the middle, and the core teaching area will be concentrated on the east side to ensure that the noise level is controlled below 50 decibels at a straight-line distance of 500 meters. In terms of transportation system, the design will integrate the comprehensive building area containing professional classrooms into a winding corridor design with a maximum 45 degree corner. The corridor connects various functional areas to achieve an all-weather wind and rain corridor system, avoiding the problem of eye contact and east-west glare in the teaching building. The modular combination of professional classroom clusters also greatly improves spatial efficiency, reducing building density to 21% through a linear layout, releasing a composite activity green space that accounts for 27% of the total land area, forming a three-level teaching space sequence of "professional classrooms shared atrium outdoor classrooms". As a functional hub, the comprehensive building constructs a composite courtyard system that combines privacy and openness by synergistically enclosing non-linear functional areas. In response to the traffic diversion needs during peak school hours, the plan has set up a diversion style entrance and exit plaza on the north-south axis, combined with the first floor elevated design, to achieve the extensibility of the visual corridor.
同时首层架空的设计手法,使所有户外活动区域相互连接,形成人流汇聚的活力地带,人流集散效率提高40%以上。这种水平向的动态组织,同步为垂直向的空间拓展预留了可能性。
空间体验维度上,通过引入下沉广场、退台式布局以及出挑露台等设计元素,进一步丰富了校园室外活动空间的体验层次,为孩子们增添了探索与发现的乐趣。通过抬升线性屋面的边角,使屋顶轮廓更加起伏有致,丰富了建筑的视觉层次,与整体建筑流线完美融合。
At the same time, the design technique of overhead on the first floor connects all outdoor activity areas to each other, forming a dynamic zone for the gathering of people, and increasing the efficiency of people flow distribution by more than 40%. This horizontal dynamic organization synchronously reserves the possibility for vertical spatial expansion. In terms of spatial experience, the introduction of design elements such as sunken plazas, setback layouts, and protruding terraces further enriches the experiential level of outdoor activity spaces on campus, adding fun to children's exploration and discovery. By lifting the corners of the linear roof, the roof contour is made more undulating, enriching the visual hierarchy of the building and perfectly integrating with the overall building flow.
▲景观庭院初步构思手稿
渗透围合
地块巧妙地融入了城市的自然景观与交通网络之中,其东南两侧紧邻郁郁葱葱的城市绿带,还与一条蜿蜒流淌的河流相伴,为地块增添了几分宁静与灵动。西北两侧则直接毗邻城市主干道,交通便捷。建筑物在东侧与南侧的设计上巧妙地展现出一种半包围的空间布局,既不完全封闭,又与外界保持着恰到好处的联系。
这样的设计不仅使得校园周边的美景能够自然地融入其中,为地块增添了一抹亮丽的风景线,同时也为人们提供了更为开阔的视线交流空间,行走通道也显得更加宽敞与舒适。更重要的是,这样的空间布局还有利于空气与自然风的自由流通,营造了一个更健康、宜人的学习环境。
The plot cleverly integrates into the natural landscape and transportation network of the city, with lush urban green belts on its southeast sides and a winding river accompanying it, adding a touch of tranquility and liveliness to the plot. The northwest sides are directly adjacent to the main urban roads, with convenient transportation. The design of the building on the east and south sides cleverly presents a semi enclosed spatial layout, which is neither completely enclosed nor maintains just the right connection with the outside world. This design not only allows the beautiful scenery around the campus to naturally blend in, adding a touch of beautiful scenery to the plot, but also provides people with a wider space for visual communication, and the walking path appears more spacious and comfortable. More importantly, this spatial layout is conducive to the free circulation of air and natural wind, creating a healthier and more pleasant learning environment.
北侧教学楼通过中部内凹式设计,巧妙塑造出一个35米进深的礼仪广场,与6米高的架空层共同构成”悬浮式”过渡空间。建筑形态以”展开的书卷”为设计母题,通过流畅的曲线轮廓与南大附属学校的文化气质形成呼应。
这一设计实现了三重价值:
首先,通过体量退让形成1000余平方米的缓冲广场,有效缓解了建筑对城市道路的压迫;其次,采用竖向长窗与横向外廊的建筑造型,使内院与外部广场的视觉通透性提升30%;最后,西北两侧通过统一模数的律动立面,与主干道形成连续而富有韵律的城市界面。这种差异化的边界处理策略,既保证了教学区的静谧需求(西北侧噪声衰减达15dB),又通过东南侧的渗透性界面实现了与城市的有机对话,最终使校园成为连接社区与自然的活力枢纽。
The northern teaching building cleverly creates a 35 meter deep ceremonial square through a concave design in the middle, and together with a 6-meter-high elevated floor, forms a "suspended" transitional space. The architectural form is designed with the theme of "unfolded scroll", echoing the cultural temperament of Nanjing University Affiliated School through smooth curved contours. This design achieves triple value: firstly, by reducing the volume, a buffer square of over 1000 square meters is formed, effectively alleviating the pressure of buildings on urban roads; Secondly, the architectural design of vertical long windows and horizontal corridors is adopted to increase the visual transparency between the inner courtyard and the external square by 30%; Finally, the northwest sides form a continuous and rhythmic urban interface with the main road through the rhythmic facade of a unified module. This differentiated boundary processing strategy not only ensures the quietness requirements of the teaching area (with a noise attenuation of 15dB on the northwest side), but also achieves organic dialogue with the city through the permeable interface on the southeast side, ultimately making the campus a vibrant hub connecting the community and nature.
层叠串联
为了集约高效地利用场地,基于”五分钟可达圈”理念,设计将多种功能用房和活动空间立体叠置。西侧建筑体块主要功能聚焦于学校的核心公共活动区域。突破了功能分区的固有模式,创造性地将食堂置于建筑群的心脏位置——不仅是物理层面的中心枢纽,更是师生日常交流的能量场。
由于负一层食堂的东侧开挖下沉庭院,这个被阳光庭院环抱的餐饮空间,通过错层平台与室外楼梯,引导人流自然地向上延伸至悬浮的体育馆。体院馆位于食堂上方,采用可开启的玻璃顶棚,晴天时阳光倾泻而下,使运动空间有良好的自然采光与自然通风。、图书馆作为知识灯塔被精心安置在南向最佳观景位,为了给室内更好的光环境,南立面采用折叠的穿孔金属板作为外遮阳构建,成为过滤强烈阳光的智能遮阳系统。读者在任意阅读角落都能透过落地窗欣赏河流景观,而二层延伸出的阅读舱,则为孩子们提供了充满童趣的私密学习空间。
In order to intensively and efficiently utilize the site, based on the concept of "five minute reach circle", multiple functional rooms and activity spaces are designed to be stacked in a three-dimensional manner. The main function of the western building block is focused on the core public activity area of the school. Breaking through the inherent mode of functional zoning, creatively placing the cafeteria at the heart of the building complex - not only as a physical hub, but also as an energy field for daily communication between teachers and students. Due to the excavation of a sunken courtyard on the east side of the negative first floor cafeteria, this dining space surrounded by a sunny courtyard naturally extends upwards to the suspended sports hall through staggered platforms and outdoor stairs. The sports hall is located above the cafeteria and features an openable glass ceiling. On sunny days, sunlight pours down, providing good natural lighting and ventilation for the sports space. The library, as a knowledge lighthouse, is carefully placed at the best viewing position facing south. In order to provide a better indoor lighting environment, the south facade is constructed with folded perforated metal panels as external shading, becoming an intelligent shading system that filters strong sunlight. Readers can enjoy the river landscape through french window at any reading corner, while the reading cabin extended from the second floor provides children with a private learning space full of childlike fun.
▲校园西侧公共活动组团剖透视图
学校两处大型会议空间均位于西北角,一处是从负一层到二层通高的阶梯式报告厅,另一处是位于报告厅上方的多功能厅。报告厅巧妙地利用地形高差,将观众席嵌入建筑基座,其屋顶顺势形成露天剧场,通过两部室外楼梯可便捷地去往位于四楼的多功能厅,在垂直方向与上方的多功能厅构成垂直轴线。
为了让孩子们在课间有限的时间内到达各层活动,设计师将无处不在的”意外空间”藏进建筑:转角处的圆形游戏舱、楼梯下方的秘密基地、连廊外侧的观察平台,这些非正式学习空间如同珍珠般串联起整个建筑。
Two large conference spaces in the school are located in the northwest corner, one is a stepped lecture hall that runs from the basement to the second floor, and the other is a multifunctional hall located above the lecture hall. The lecture hall cleverly utilizes the height difference of the terrain to embed the audience seats into the building base, and its roof forms an open-air theater. Two outdoor stairs provide convenient access to the multifunctional hall located on the fourth floor, forming a vertical axis with the multifunctional hall above. In order to allow children to reach each floor for activities within the limited time between classes, designers have hidden ubiquitous "unexpected spaces" in the building: circular game cabins at corners, secret bases under stairs, and observation platforms outside corridors. These informal learning spaces are like pearls connecting the entire building.
▲校园主要流线分析图
在当代教育变革背景下,我们提出”环境育人的韧性校园”设计范式——这不仅是物理空间的营造,更是对教育本质的重新诠释。校园作为孩子们成长的第二家园,其空间应当具备如同生命体般的适应性与生长性:既能抵御突发公共事件的冲击,又能随着教学需求演变而有机更新。
In the context of contemporary educational reform, we propose the design paradigm of "resilient campus for environmental education" - which is not only the creation of physical space, but also a reinterpretation of the essence of education. As the second home for children's growth, the campus should have adaptability and growth like a living organism: it should be able to withstand the impact of sudden public events and be organically updated with the evolution of teaching needs.
设计师需要以”儿童尺度”重新丈量每个角落,将心理咨询室的柔和曲线、合作学习区的灵活家具、户外探索区的可控风险等细节,转化为潜移默化的教育语言。这种韧性设计体现在三个维度:空间韧性,如多孔化的庭院布局促进自然通风;功能韧性,如复合型场馆支持教学模式迭代;以及情感韧性,如通过材质触感和色彩心理学构建安全感。当孩子们在可攀爬的图书架间发现阅读乐趣,在雨季能观察雨水花园的水循环系统时建筑便超越了容器属性,成为滋养生命韧性的立体教科书。
Designers need to re measure every corner with a 'child's scale', transforming details such as the soft curves of the counseling room, flexible furniture in the collaborative learning area, and controllable risks in the outdoor exploration area into subtle educational language. This resilience design is reflected in three dimensions: spatial resilience, such as porous courtyard layout promoting natural ventilation; Functional resilience, such as composite venues supporting iterative teaching modes; And emotional resilience, such as building a sense of security through material touch and color psychology. When children discover the joy of reading among the climbing book shelves and can observe the water circulation system of the rain garden during the rainy season, the building surpasses its container properties and becomes a three-dimensional textbook that nourishes life resilience.
项目图纸
▲总平
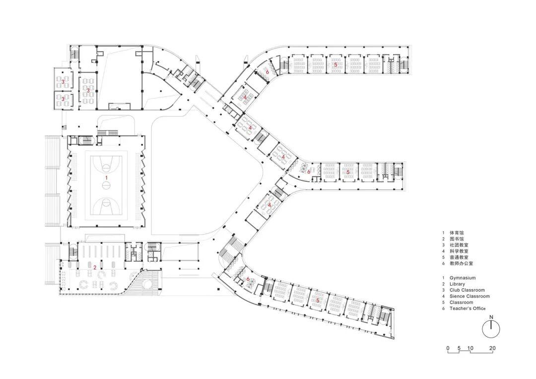
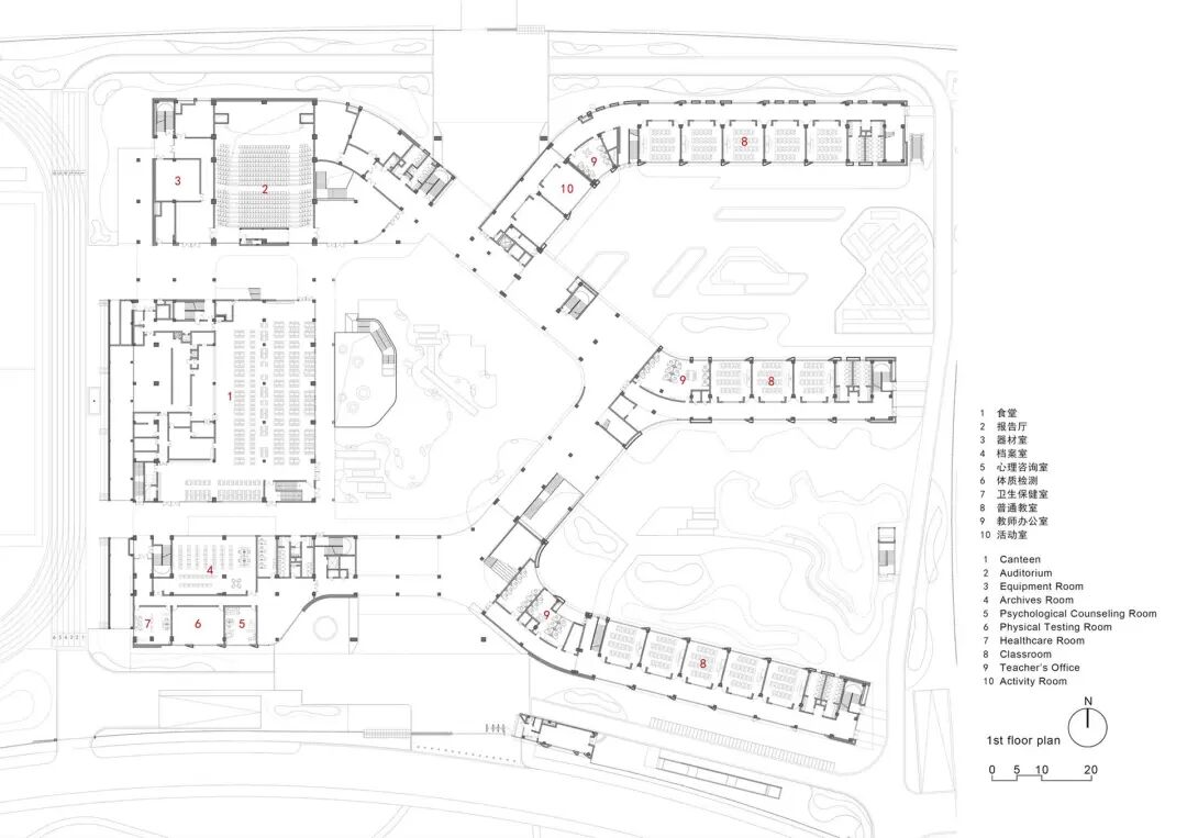
▲一层平面图
▲二层平面图
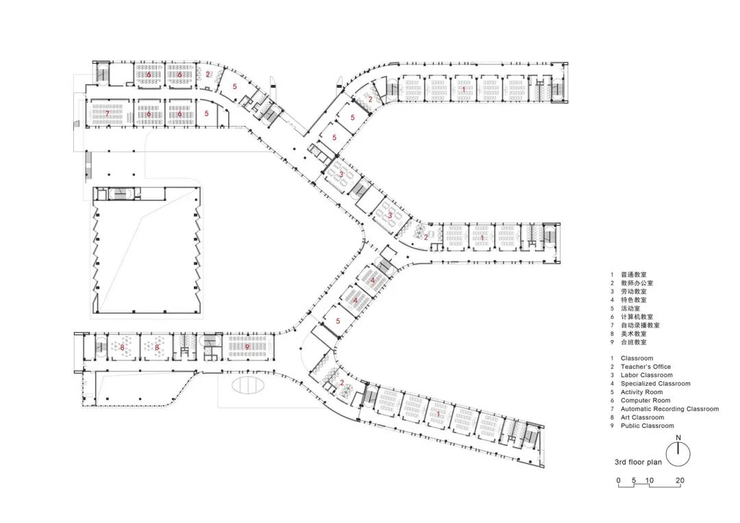
▲三层平面图
▲四层平面图
▲五层平面图
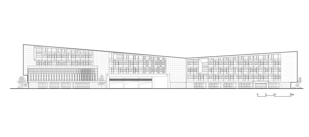
▲南立面图
▲北立面图
▲西立面图
▲剖面图
▲示意图
2025新产品趋势·考察学习
各地第四代+高品质 | 金沙+冶都+新东升
▼点击下图,了解报名
本资料声明:
1.本文为建筑设计技术分析,仅供欣赏学习。
2.本资料为要约邀请,不视为要约,所有政府、政策信息均来源于官方披露信息,具体以实物、政府主管部门批准文件及买卖双方签订的商品房买卖合同约定为准。如有变化恕不另行通知。
3.因编辑需要,文字和图片无必然联系,仅供读者参考;
微信公众号“搜建筑”(ID:sjz9999)
合作、宣传、投稿
联系微信:soujianzhu006


