▲ 更多精品,关注“全球精品楼盘考察”
2025,各地住宅的发展趋势来了……
重庆的四代和高品质住宅产品,累计了大量落地经验,在此,搜建筑携手四代和高品质住宅专家,通过楼盘案例,分享、探讨当前市场如何落地实施,如何通过创新,赋能产品力升级,助力企业发展。
温馨提示:重庆楼盘活动,本次安排6-7个参观,部分项目根据现场情况可能会有调整。感兴趣的朋友请及时报名。
三、高品质住宅:创新趋势实操方法
报名+咨询
咨询微信:soujianzhu03
咨询微信:soujianzhu008
2、联系电话:181 3265 7351(微信同号)
金茂 • 璞印金开
建筑设计:天华建筑
立面采用曲线设计,以横向线条为主顺应地势走向,大屋顶飘板和弧形线条;打造轻盈度假场景感。上百次打磨弧形倒角仿铜铝板、艺术漆与磨砂玻璃结合温润雅致,呼应璞玉质感。
遴选温德姆灰石材&墨染流云大理石,结合高定弧线铝板,定制瑰丽单元门堂通过局部装饰元素和冷暖系材质搭配,臻造东方气质。
项目倾力打造建面约207㎡的云印户型及240㎡的户型,精心营造东方高端定制生活的典范。每一户均为独立天地,每一层犹如私人世界,设有入户私院、全景卧室花院以及全面屏社交庭院,形成三大庭院体系,完美诠释合院的经典精神。每户配置空中花园,配备约40㎡的露台,于平层空间中实现对庭院生活的向往与追求。
左右滑动查看更多户型图
华润置地 · 嘉宸

国瑞 • 长江赋
项目位于重庆市南岸区国际迎宾半岛 ,两江四岸核心区唯一留白地,国瑞阳光地产集团顺应城市发展,集城市运营商之力,融合弹子石生态城市功能提升示范区项目,构筑重庆新名片和对话世界的地标门户。
项目总占地约66亩,建筑体量7.85万方,容积率1.8,住宅430户,纯四代宅住区,商业4500方,采用围合式布局,楼间距最宽约88米,规划142-310㎡的国瑞绿色健康住宅。
重庆滨江第四代大平层住宅。真正的改善基因从来不是孤立存在,而是与城市顶级资源形成共生地脉。
高定大门+下沉庭院+小区会所+大中庭,这些奢居必备的配套也是一个不落下。有为业主量身奢定运动中心,规划高奢泳池、球类运动场、城市会客厅、健身俱乐部等私属空间,构建专属顶峯圈层的超感生活场景(最终品牌业态以实际招商为准)。
开发商很厚道,这是重庆平层层高突破至3.6米第四代住宅。
3.3-3.6m层高赋予空间阔境尺度,6.6米挑高的开阔,缔造约40-60㎡空中庭院。
【户型产品】
【D2】建面142㎡+赠送55-59㎡=实得面积约200㎡
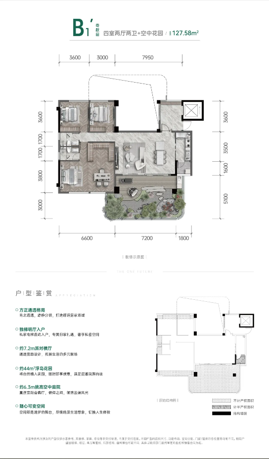
国瑞 • 学府壹号


▲项目示意图
▲项目示意图
左右滑动查看更多户型图

▲项目示意图
约40㎡的空中花园,挑高约6.3米,将别墅的独院场景搬进天空。
龙湖•观萃
观,与世界相处的方式;萃,是内心丰盈的艺术。观萃凝练出“观世界,心隐萃”的独特主张,以空间重构人与世界的对话方式,让松弛感在每一个角落自然流淌,为居者打造一个既与世界紧密相连又自在隐逸的心灵栖居之所。

在外立面上:观萃运用了大面积的公建化玻璃幕墙,单扇玻璃最大宽度约2.5米,能呈现270度无敌视野景观。简洁干练的建筑轮廓,搭配香槟金+莫兰迪灰+贝金米黄的融洽色彩点缀,整体颜值非常高雅,经久耐看。
约1500㎡超大奢阔酒店式落客庭院,营造奢石水景的奢华仪式入口。约400㎡水景打造星光浮岛花园,打造重庆第一精神光塔封面,成就隐逸自然的宁谧天地。
约600㎡鎏光逸境核心水庭,重庆最大的环幕观景窗,同时串联礼遇花园、臻院树王、霍比特谧境等臻雅六境,于此静坐观澜,悠然随心。
轴线仪式草坪,自然天成的绿野之丘,酒店化户外精致圈层社交场。林樾会友空间,甄选澳大利亚悉尼北岸蓝花楹,闲庭蓝楹漫山城的意蕴由此悄然展开,与开放式会客厅叠合成一幅流动的画卷。
左右滑动查看更多户型图(143平、121平、101平)
保亿 • 中央润府
双面金铝板弧形比普通的铝板线条贵30%,但奢华效果和楼盘花期,秒杀市面上的真石漆外立面。
为解决隔层对视问题,中央润府做到了这类排布的均好和平权,在偶数层增加了内置生活阳台,让奇偶层的获得感同样丰盛:都有约6.3米的庭院挑高,露台+阳台总面积都在30平上下,都预留约50cm覆土深度,都与室内公区深度结合,客/餐厅得到延伸,自然又流淌进家庭生活的日常。
海成•云湖郡
海成云湖郡的超强产品内核,是它的第四代住宅产品,这是一个新的产品形态,将别墅的垂直尺度与大平层的横向尺度融合,创造出大平层墅居的生活感受。作为保证隐私的四代宅产品,在项目的细节打造上,海成云湖郡完美兑现了远超同档位项目的惊喜品质和格调。
项目建筑外立面局部呈现,以大气优雅的建筑形体比例、弧形线条展现了几何美学精髓。0.31的窗地比、大面积的玻璃、曲角阳台等创新设计,营造通透敞亮的采光效果,赋予建筑独特精神韵味,领衔人居进阶风潮。
海成云湖郡实景图
立面已有部分呈现,外挑的金色门檐、隽永的深灰底、银白+香槟金的弧形腰线,那枚「鎏金花瓣」镶了一圈深蓝色晶莹剔透的「花边」,自平面中撑开新天地。


海成云湖郡实景图
项目营造150米*7米的阔尺门界,遴选马达加斯加蓝翡翠奢石乌克兰幻影石材上墙,约100㎡的奢石界面迎宾,高定归家礼序,绽放生活艺术风采。
海成云湖郡实景图
先进入大门,再经过围合聚气的艺术归家庭院,这是云湖郡住区的「玄关」,走进它,催人疾行的城市就被甩在身后了。
步入林下会客厅,森境掩映,水院如境,错落的植物盒子空间与曲廊的光影呼应,以熠熠生辉的光芒,流动的线条,在光影间表达自然、艺术与城市底蕴。

约137㎡样板间实景
保亿•御景润府
御景润府以约6.2米挑高浮岛花园为亮点,户户配置超20㎡空中花园,独创270°环幕视野。

四代住宅,巧妙利用精致的露台空间
匠心独运地构建出一个崭新的家庭场域
在这里,自然与人的距离被无限拉近,无需远行寻觅
松弛的惬意与满眼的绿意
重庆科学城置业·龙湖·凤栖湖畔
建筑主色系以香槟金、月影白配色,辅以质感真石漆,整体色泽优雅,温润克制,与湖光山色交相辉映。
第四代住宅户户拥有约30平、挑高6米的“天空院”,如同悬浮在空中的森林浮岛,舒展大气,这不仅拥有更大的观景面,也让业主获得更多的赠送面积。
运用了大面积的中空LOW-E玻璃,0.34的窗地比,使得整栋楼的视觉效果显得更加通透明亮。采用系统门窗和全景落地玻璃,不仅品质更好,也更节约业主的装修成本。
升级屋顶弧形倒角约1000mm,铝板弧形倒角约900mm,打造超流体立面。
单元大门曲线设计和弧形挑檐设计,使建筑整体更加柔和,采用古铜色铸铝门,边框运用大面积玻璃、金属铝板和石材,顶部采用铜色铝板,质感十足。单元门带人脸识别系统和带呼梯功能的可视对讲,实现无触感归家。
海蓝宝和挪威森林、意大利凿光石材交织出的入户门头,远远看去,直线若尺、外有端方。走进去,却以非对称设计强调韵律感,劳斯莱斯星空顶之下,弧线如凤、浮生若梦。
咨询微信:soujianzhu03
咨询微信:soujianzhu008
2025年·新产品方向
《 品牌地产 | 精品楼盘活动 》
杭州、苏州、上海
成都、郑州......
广州、福州、重庆
西安、青岛......
扫描二维码 加好友咨询
领队微信:soujianzhu03
本资料声明:
1.本文为建筑设计技术分析,仅供欣赏学习。
2.本资料为要约邀请,不视为要约,所有政府、政策信息均来源于官方披露信息,具体以实物、政府主管部门批准文件及买卖双方签订的商品房买卖合同约定为准。如有变化恕不另行通知。
3.因编辑需要,文字和图片无必然联系,仅供读者参考;
推荐关注
全球精品楼盘考察
扫描二维码关注

微信公众号:全球精品楼盘考察
合作、宣传、投稿
联系微信:soujianzhu006

