▲ 更多精品,关注“搜建筑”
市场,从来不缺购买力,缺的是想象力。
当市场还在流行横厅、方厅、边厅时,如何再次跳脱、创新性地带来系统性的惊喜、实现真正的户型变革迭代。
“断层式”创新产品——「全景舱」大平层
所谓「全景舱」指的就是户型的客厅或卧室如同凸出的飞机驾驶舱,三面环绕着大面积的玻璃窗。
创新「全景舱」设计,带来了观景体验的又一次飞跃,环幕景观视野面真的是无敌。
更大化视野之下,还有无柱化全景舱设计,对楼板的要求会更高,工程造价也会更高。
全景舱设计,它所呈现的各种生活化的场景,不仅是空间上的满足,更是精神需求的匹配,所传递的未来感和生命力,让人难以抵抗,是真正的「革命性」的产品「迭代」。
1
不同部位的“全景舱”设计
· 「全景舱」厅
一直以来,端厅都是高阶生活空间的专属,而这次各大地产又在空间设计上迭代升级,三面采光的「全景舱」厅,算是端厅户型的一种升级版。
比如,成都华润置地上璟润府建面约172㎡户型,约65㎡环幕LDK厅的全景舱厅,有270°环幕视野,彷如置身于大自然的3D投影中。
成都华润置地上璟润府建面约172㎡户型示意图
整个舱体向外悬挑了约4.2m,一字排开西厨岛台、餐厅、客厅,并形成了约14.4m的连续采光面,更大化追求视野的极致感。
约172㎡创意样板间实拍图,非交付标准
为了做到空间及场景的更大化,植入“空中院馆”的概念,全景舱LDK厅,链接X可变空间,可随心定制为书房、茶室、画室.........解锁家的N种美好可能,营造出了200㎡以上户型空间才有的居住体验感。
约172㎡创意样板间实拍图,非交付标准
比如,越秀·天悦云萃户型因厨房后退而形成第三面,使客厅获得三面采光,连续采光长度达约19米,实现全景舱式270°采光观景的互动社交空间。
越秀·天悦云萃建面约173㎡户型图
越秀天悦云萃建面约173㎡展示样板实拍图(以实际交付为准)
再比如,成都华润置地青羊润府约192㎡端户产品,不仅实现了空间尺度上的提升,全景舱+空中院落的引入,也赋予了它儫宅化的非凡视野。
完全悬挑的全景舱,视野感和采光远超常规端厅。同时,约5.55m的开间搭配约8.55m的进深,比常规7m横厅,尺度感更为优渥,加上一体直连的宽绰厨房和阳台,空间的体验感再上新高。
建面约192㎡创意样板展示实拍合成图
实拍图
· 「全景舱」卧室
疗愈身心的卧室已不再只是休息的地方,观景视野需求也愈发重要。
比如,很多户型都配置超大L型飘窗、超大阳台等,开阔的空间和视野,加上多功能体验,将空间的居住功能与自然美景结合并升华、非常棒。
而此次全景舱的设计亦是不止于厅的运用,超广角视野,从客厅到卧室全面升级,即使是躺在床上,也能拥有更旷阔的视野,欣赏到无敌的景观。
比如,成都华润&华发·阅天府建面约199㎡双端厅户型,卧室三面朝向,结合三面落地玻璃幕墙,约39㎡U型浮空全景主卧,仪式感满满,高贵感油然而生,双排步入式衣帽间,三独立套房等设计,进一步提升居住舒适。
实景图
比如,成都龙湖·观萃建面约182㎡户型,把当下最前沿的全景仓搬到了卧室:
成都龙湖·观萃项目建面约182㎡户型图
成都龙湖·观萃项目效果图
比如,成都保利天府瑧悦建面约188㎡户型,约26㎡U型全景次卧,享连续采光观景面:
成都保利天府瑧悦建面约188㎡户型示意图
保利·天府瑧悦意境图
2
全景舱蝶变与升级
· 单全景舱
单全景舱,即只有一个全景舱设计。
比如,无锡建发·玺云建面约215㎡户型,L型转角飘窗+南侧阳台开间约8.3米(轴线距离)围合成约270°景观,将整个客厅的通透性充分放大。
无锡建发·玺云建面约215㎡户型装修示意图
三面超广角环幕视野,环绕式采光,让观景效果直接x3,装进整个小区中轴园林,以及市府芯的繁华,气场足以征服每一位在场的参观者。
展示样板间,不作为交付承诺
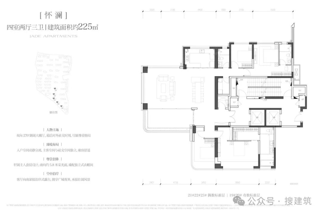
比如,西安华润·世园润府建面约225㎡河景大平层户型,超30米的观景面,约20㎡的空中院落,墙体对空间的约束感已近乎“无界”,居家就能最大限度享受世博园与灞河的一线景致。
西安华润·世园润府建面约225㎡户型示意图
尺度轩敞的南向露台,叠加端厅空间,场域就放大了数倍,突破空间想象力。
世园润府建面约225㎡户型样板间实拍
世园润府实景图
比如,成都越秀·湖与白建面约178㎡户型,真正270°采光U型端厅,南北双阳台,连续约21m长三面采光,公区使用面积约80㎡,形成全景舱式270°采光观景的互动社交厅,这种处理带来的不仅是200㎡以上户型客厅的既视感,更多还有客厅聚会和观景体验的改变。
成都越秀·湖与白建面约178㎡户型示意图
· 双全景舱
双全景舱,即有两个全景舱部位设计。
比如,成都华润&华发·阅天府,其建面约252㎡创新“双全景舱”户型,消除转角结构柱,采用圆弧转角玻璃处理,使端厅采光视野更为广阔,客厅和主卧皆实现了270°三面环形采光。
成都华润&华发·阅天府建面约252㎡户型示意图
约77㎡的U型悬浮全景聚厅突破了传统开间与进深观念,为居住者提供全新视觉与空间体验。
实景图
全景舱主卧悬挑阳台设计,打造无遮挡全景阳台,观景视野优越。

实景图
此外,户型中心区域“交互式空中院落”,将客厅与主卧两大全景舱空间连接,增强了空间通透感,同时也作为玄关空间的补充,提高了中部交通效率,实现开门见景,拉满入户仪式感。
实景图
比如,华润置地金融城·锦宸府建面约280㎡户型同样采用了“双全景舱+空中院馆”的设置。
华润置地金融城·锦宸府建面约280㎡户型示意图
建面约280㎡户型实景图
立面效果示意图
空中院馆实景图
实景图
再比如,成都华润置地青羊润府建面约238㎡户型,「双全景舱+空中院落」的户型设计,最大化的把自然享受延伸到室内。
青羊润府建面约238㎡户型示意图
客餐厅与主卧均采用了全景舱设计,并用空中庭院进行连接。在豪奢级的尺度之上,阔幕玻璃窗和空中庭院也让生活与自然更加亲密。
青羊润府建面约238㎡户型空间展示 @华润置地
殿堂级主卧:约6.9m开间的主卧,已经可以比肩常规横厅的客餐厅开间,而超48㎡的尺度,已经大过多数酒店的行政套房。

青羊润府建面约238㎡户型空间展示 @华润置地
华润青羊润府效果示意图
结语
纵观市场上很多项目表面看来非常前卫,但无论是户型设计还是功能性都非常传统。
豪宅创新是很需要下功夫研究的,升维设计理念才能打造超越常规产品的空间感、尺度感和功能性,远远拉开与其他项目的差距,用诚意与创新为高端市场展示超越时代的想象力和创造力,提供超改善产品的新样板。
2025新产品趋势·考察学习
各地第四代+高品质 | 金沙+冶都+新东升
▼点击下图,了解报名
本资料声明:
1.本文为建筑设计技术分析,仅供欣赏学习。
2.本资料为要约邀请,不视为要约,所有政府、政策信息均来源于官方披露信息,具体以实物、政府主管部门批准文件及买卖双方签订的商品房买卖合同约定为准。如有变化恕不另行通知。
3.因编辑需要,文字和图片无必然联系,仅供读者参考;
微信公众号“搜建筑”(ID:sjz9999)
合作、宣传、投稿
联系微信:soujianzhu006



