▲ 更多精品,关注“搜建筑”
楼市政策大好,“大室”所趋!
在现今的房地产市场中,高端住宅领域,大平层和别墅平分秋色,随着产品日益进化,大平层的设计越来越趋于别墅化。
目前市面上的豪宅大平层都进化到什么程度了?
为何200㎡+的大平层能成为豪宅代名词?
扁平的空间布局、开放的互动交流空间、私密的生活空间,居家生活的功能被巧妙地集合在一起,进可全家交流,退可互不干扰,能够为人们提供更为便捷的生活享受。
不同面积段的客群需求不同,户型空间的设计也要有较大区别:
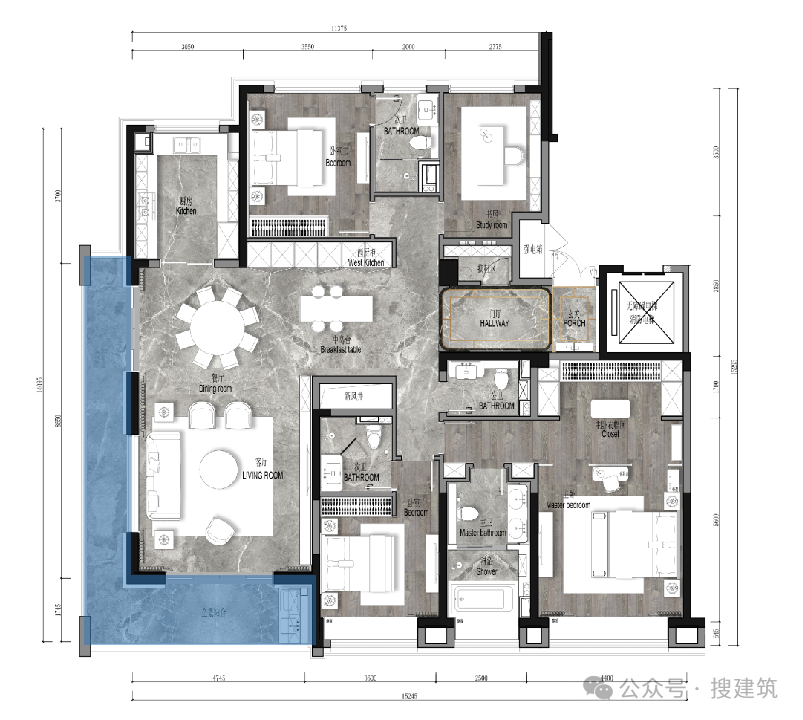
200平以上的豪宅大平层户型,不是在改善户型基础上的放大
1、设置独立玄关或内外双玄关,升级为“玄关库”
2、动区占整个户型面积50%以上
3、增加岛台功能、X空间,餐厅需满足6-8人位
3、南北双阳台设计,有条件的设计独立储藏间等
4、最少双套房设计,主卧套不小于35-40㎡
5、次套房大于20㎡、其他房间≥15㎡
本期搜建筑为大家解析, 200平以上的户型设计要点 ,以及当下市场流行的200㎡大平层项目有何特点。
豪宅大平层的「超级玄关」
1、私梯入户,设置独立玄关或内外双玄关
2、超有效率的玄关柜/玄关库
超级舒适尺度的外玄关及强大收纳功能的内玄关,已成豪宅的必选项。
有的项目在玄关处设置独立行李间和玄关柜,也有的项目直接将收纳柜升级为收纳库。
比如南京中海·江南玖序项目其建面约200㎡和270㎡的户型,做到了独立私梯入户的归家效果,内外双玄关设计,还有一个独立的储物仓库「玄关800库」,以‘看不见’的收纳为设计目的,随心打造居家收纳问题▼

▲南京中海·江南玖序 建面约200㎡户型示意图
玄关一定要提前规划好,比如外出归家的脏衣服、出门必备的物品,以及鞋子雨伞等,使整个玄关空间更井然有序。
3、豪宅标配的“对景玄关墙”
玄关的设计非常重要,通透型玄关不仅保证内部的私密性,而且半遮半掩的设计,打造“隔而不断”的效果,增加空间的轻盈感。
比如广州中海大境建面约270㎡的「超级单品」,对景玄关的创新设计,满足都市人对于院落式生活方式的居住需求▼

▲建面约270㎡户型示意图

▲广州中海大境实景图
再比如,南京绿城&华发·金陵月华的对景玄关给足业主归家应有的尊崇、私密与仪式感。入户地面以月华定制的四色石材拼花,简约而不失设计,格调高雅,通过对细节的雕琢,让空间美得沁人心脾。
▲金陵月华 四房两厅三卫 约205㎡户型示意图
▲金陵月华建面约205㎡样板实景图
▲金陵月华建面约270㎡样板实景图
4、还有一点比较重要,那就是入户门和智能门锁,精装交付的楼盘可以把控一下入户门的品质,很多业主最后换掉重来的案例很多,建议一步到位,避免浪费资源。
以D10天元265㎡为例,入户门选用深圳湾一号同源重奢铸铝门,一侧设计有专属定制门牌,门上配以线条简洁的三星入户门锁。宽约1.5米、高约2.4米,顶天立地设计,“编织纹理”质感,让门变成一件“艺术品”。
注重公区的打造
重塑室内空间场景
200平米+户型,客厅面积一般多>50-60㎡:
1、边厅、横厅、竖厅,客厅开间不宜小于5米;
2、整个公区一体化,满足“大空间、多场景“布局;
3、去客厅化设计,阅读办公、影音娱乐...实现“N+1种可能性”;
比如中海寰宇天下建面约218㎡御海户型,270°宽景巨幕客厅,近70%窗占比,全屋阳光洒进屋内,视野更开阔,LDKG一体设计,亲疏有度之间,缔造百变社交场▼
▲寰宇天下 建面约218㎡御海户型
站在270°超长转角阳台,IMAX巨幕一线海景尽收眼底,远眺琴澳盛景。

▲寰宇天下 样板间实景
再比如,成都华发&华润置地阅天府 全新组团云上珏,其建面约230㎡户型「端厅全景舱」形式呈现,客餐厅约60m²,U型悬浮仓设计,270°三面采光和视野▼

▲云上珏建 面约230㎡户型示意图
再比如,南京中铁建·花语江南建面约240㎡的大平层,将广角边厅与L型跑道式阳台相结合,采光面长达15米的全视野景观阳台,整个空间更加明亮通透,感官体验更丰富。

▲花语江南建面约240㎡户型示意图
4、中厨+岛台+餐区设计,餐厨满足社交需需求
拥有便捷型家务动线:比如厨房-餐厅-洗衣房-晾晒区,这种有承上启下关系的动线,要求便捷、快速简单。距离不能远,路径尽量少一些弯路。
成都华发&华润置地阅天府 云上珏重点强化了公区以及中厨空间,厨房系统,烟机灶具为FOTILE方太最新研发的全球唯一一款制冷空调油烟机(CXW-258-LC15-A1.i)。德国进口GAGGENAU嘉格纳冰箱,意大利进口Veneta Cucine威乃达厨柜,以及西厨岛台均纳入交标之内。
▲ 意境效果呈现,非交付标准
5、配置南北双阳台/独立洗衣房/储藏间等
南向阳台进深宜大于2米,观景社交更加舒适。可观赏性动线:注重人与观赏物之间的互动与体验、观赏过程当中的心情感受。
比如,温州保利天珺建筑面积210平米户型,在目光所及的公共区域,LDK一体化设计巧妙打破常规空间界限,南北双阳台的设计,南阳台约9.1米的开间,约2米的进深,为日常生活带来更为宏伟的舞台。

▲保利天珺 面积210平米户型示意图
而北向阳台可设计为家政间,根据人口多少配备洗衣机、烘干机、消毒柜等,而且还要拥有晾晒空间、熨烫区域和清洁用品收纳区等。

▲ 保利天珺 实景图
6、在这里提一点,外立面门窗体系,它决定了整套房子的节能系统和舒适度。还有就是全屋设备(地暖、新风)以及全屋智能系统的投入,能提供满满“情绪价值”,一个手机控制所有,这块的钱很值得花。
▲ 广州越秀·琶洲南TOD 实景图
还有越秀的瑞麓府项目采用贝克洛系统窗,门扇设计有防撞块系统设计、防误操作装置。有效保护五金,让门窗更耐用持久。外阳台所使用提升推拉门的设计应用搭配上拥有国家专利的门窗密封组件,能有效抵御台风和水气侵蚀、隔绝空气污染。
▲贝克洛系统窗示意图
▲越秀·瑞麓府实景图
双套房设计
每代人都有私属空间
200平米以上的户型,一般都做双套房设计。其中主卧套不小于35-40㎡,次套房大于20㎡、其他房间≥15㎡。
比如郑州中海·时光之境项目的建面约218㎡户型,主卧“小家化”设计,双套房双衣帽间▼

▲建面约218㎡户型示意图
▲建面约218㎡户型 样板间实景图
1、房间配套大飘窗或阳台,景观视角达到最大
近年来,住宅建筑的立面趋于公建化,尤其是高端项目,整个外立面几乎全是玻璃幕墙,再加上大阳台、大飘窗,不仅得房率提高了,还能营造景观扑面而来的感觉。
比如,杭州滨江越秀·潮语鸣翠轩建面约241平米户型,卧室大面观景,甚至还可270°观景▼
▲潮语鸣翠轩 建面约241㎡户型图
2、主卧套房“小家化设计”
如今大平层产品的主卧都朝着星级酒店行政套房的方向演化,兼具玄关、衣帽间、五件套主卫乃至书房、吧台等功能:
• 面积不小于35-40㎡五星级酒店套房式主卧,需满足南向采光,避免北向;
• 主卫满足明卫要求,有条件的尽量不与衣帽间动线重叠,避免动线过长;
• 衣帽间尽量满足自然采光,并布置独立化妆空间;
比如,广州越秀瑞麓府建面约253㎡户型,南向阔绰双主卧套,带独立卫浴间,居住舒适度成倍释放,一家人不同生活作息也不怕过多打扰。南向奢阔老人房,既保证足够宽敞的居住空间,同时又设有南向独立全明卫生间,设计更人性更舒适,满足了父母健康、舒适的居住需求。

▲建面约253㎡户型示意图
约40㎡豪华主卧套,“小家化”设计,配置奢阔休息区、奢享型独立卫浴、步入式衣帽间、独立梳妆台、约270°观景飘窗犹如广角镜头一般,视野突破边界,舒展心境,园林风景一览无余。

▲创意户型展示,非交付标准
3、另外一个套房可作为老人房
老人房的设计尤为重要,50%以上的疾病起因都来自于老人跌倒,卧室、卫生间要有一键呼叫,紧急时刻帮大忙。地面无高度差且防滑的设计是基本配置,另外建议老人房卧室门宽≥900mm,为行动不便的老人提供方便。
卧室有互控的开关,上床随手就能关掉灯,另外在走廊、楼梯、卫生间、床头等地方多装一些灯光,光源一定不能太复杂,可以选择一些地脚灯、小夜灯更合适。
结语
豪宅大平层之所以为豪宅大平层,不仅仅体现为空间阔绰,更体现为空间秩序考究,有条不紊。
200㎡+户型的设计,充分凸显了聚焦在大面宽尺度、创新空间、平权同住三方面的优势。让每个家人都有最优的居住体验。
2025年8月 考察学习·新产品趋势
各地第四代+高品质 | 金沙+冶都+新东升
▼点击下图,了解报名
1.本文为建筑设计技术分析,仅供欣赏学习。
2.本资料为要约邀请,不视为要约,所有政府、政策信息均来源于官方披露信息,具体以实物、政府主管部门批准文件及买卖双方签订的商品房买卖合同约定为准。如有变化恕不另行通知。
3.因编辑需要,文字和图片无必然联系,仅供读者参考;
推荐一个
专业的地产+建筑平台
每天都有新内容
扫描二维码关注

微信公众号“搜建筑”(ID:sjz9999)
合作、宣传、投稿
联系微信:soujianzhu006




