大元建筑工场 Kris Yao | Artech
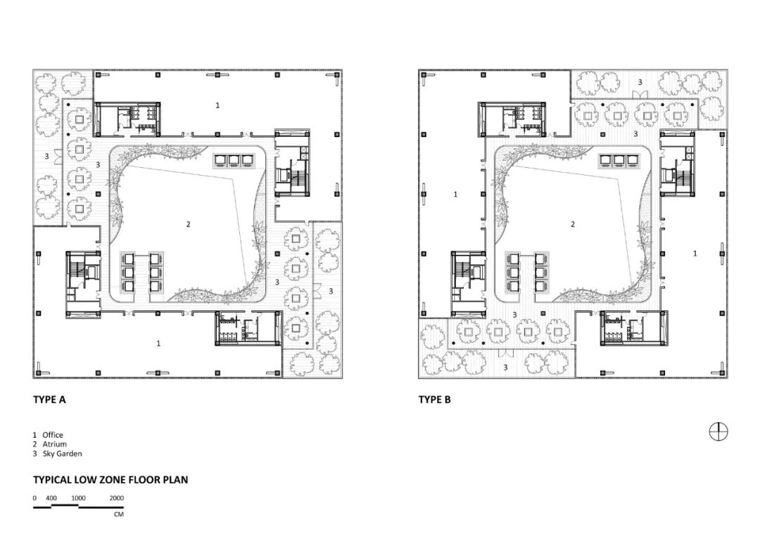
The Hainan Energy Trading Building stands proudly in Jiangdong New District, an emerging industrial, financial, and residential development on the outskirts of Haikou, the capital of China’s Hainan province. The Yankuang Group, owner and occupier of the building, specializes in mining production and sales, high-end coal processing, and modern logistics, and the early entry of the firm’s headquarters in Jiangdong New District paves the way for other leading businesses to follow suit. The building is a floating box above a landscaped ground floor, and an impressive central courtyard greets visitors as they enter the atrium. The rigid lines of the exterior contrast with the sky gardens positioned at regular intervals—a blend of rigidity and softness that creates a harmonious whole, mirroring the fledgling district’s aim of combining existing site conditions with cutting-edge technology.
The sustainable design of this project goes hand-in-hand with Yankuang Group’s green-energy initiatives. Firstly, greenery is maximized with the exterior sky gardens as well as abundant planting in the interior. The sky gardens punch in opposing corners in an orderly fashion, occurring every four floors and rotating 90 degrees each time. Inside, multiple tiers of curving balconies span the spaces between the elevator boxes, and these are densely packed with unruly plants that spill out over their edges. This is a nature-filled space designed to provide employees with a sense of peace and well-being.
Secondly, the courtyard creates a pleasant microclimate, made possible by effective shading and stack ventilation strategies in the 75-meter-high atrium. Due to the differences in air pressure, temperature, and density levels at each floor, incoming fresh air forces stale air upward and out through the roof opening, keeping the interior well-ventilated and thermally comfortable for its users.
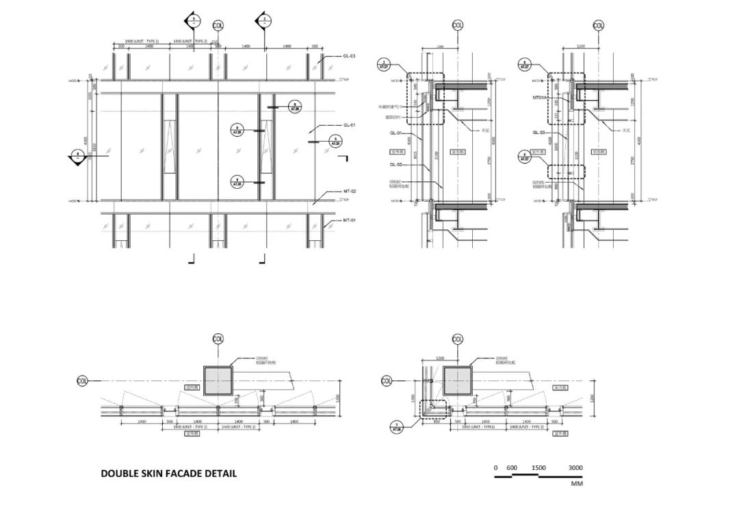
One particularly spectacular feature is the energy-efficient double skin facade design with high-transparent glass, which from the inside provides office workers with unobstructed views of the coast and downtown area and, from the outside, proudly showcases the building’s structure—clean, slender, yet very robust. None of the pillars interrupts the spacious sky gardens that rotate every four levels, allowing the volume of the other four floors above to cantilever up to 14 meters. This is achieved through mega-bracings that minimize the lateral deflection of the structure and provide a feasible solution for strengthening earthquake resistance.
Sufficient daylight pours through the double-skin facade on all four sides, lowering the need for artificial lighting. The electric louvers between the inner and outer glass layers can be automatically adjusted by the sensors of the solar tracking system, which, together with the intelligent lighting control system, greatly increase the comfort of the indoor environment and reduce the use of air-conditioning systems to reach energy-saving goals. In addition, the slanted roof and the offset facade at four-story intervals provide the sky gardens and the office spaces with ample natural light while shading most of the corridors and atrium to prevent overheating in the warm Hainan climate. The roof also pays tribute to the traditional Jiangnan home, in which rain is designed to run down slanted planes on four sides and gather in a square courtyard below, signifying the flow and retention of good fortune into a family—or, in this context, a company. These design strategies also greatly increase the sustainability of the building, making the Hainan Energy Trading Building a standout example in the world of green architecture.
分析图
项目信息
建筑师:Kris Yao | Artech
地点:中国海口
面积:65726 m²
9月5-6号 学习·天津 “全首层架空”新模式
9月12-13号:
中小房企·高品质住宅建造峰会
▼点击下图,了解报名
1.本文为建筑设计技术分析,仅供欣赏学习。
2.本资料为要约邀请,不视为要约,所有政府、政策信息均来源于官方披露信息,具体以实物、政府主管部门批准文件及买卖双方签订的商品房买卖合同约定为准。如有变化恕不另行通知。
3.因编辑需要,文字和图片无必然联系,仅供读者参考;
推荐一个
专业的地产+建筑平台
每天都有新内容
扫描二维码关注

微信公众号“搜建筑”(ID:sjz9999)
合作、宣传、投稿
联系微信:soujianzhu006


