大数跨境
0
0

极简现代小学 | 设计策略

极简现代小学 | 设计策略 搜建筑
2025-09-19
2
导读:建筑主体藏入山坳,依山就势、错落连接,

 更多精品,关注搜建筑

厦门市金榜小学

一致建筑工作室

火车站是在一个城市开启一段旅程的起点。在厦门岛,火车站一带同时还是自然山体与繁华城区的交接点。金榜小学就选址于厦门站东侧的山边。
Train stations are the starting points of journeys in a city. In Xiamen Island, the train station area serves as a junction between the natural mountainous terrain and the bustling urban area. Jinbang Elementary School is situated on the eastern side of Xiamen Station, near the mountains.
区位标高

基地上曾经有粮食仓库和大型车场,在新的城市道路形成后,场地变得狭促且不规则,地面也因使用功能的需要被完全硬化,靠近道路的山体变得陡峭且岩石裸露,成为自然山林展示在城市的一处伤疤。
修复土地伤痕,化解基地上的不适高差、大面积硬地、及目前的低效使用状态,对城市来说,是一件非常紧要的事情,设计团队在自然与城市之间,寻找谦和、融洽,能促进山与城互为增色的衔接方式,再合理地置入学校的使用功能。东坪山的一脉入城被保留下来,它与不规则的基地东西向贴邻,带来了不同于常规思路的校园格局——“集聚、延伸、漫延、覆盖”,倚山邻路,顺势而为。
Site's covering. The site once housed grain warehouses and a large parking lot. After the formation of new city roads, the space became narrow and irregular, and the ground was completely hardened due to functional needs. To repair the scars on the land and address the uncomfortable elevation differences on the site, the design team sought a harmonious and seamless connection between nature and the city. They looked for a way to enhance the integration of the mountain and the city, and to sensibly incorporate the functional use of the school. The continuity of Dongping Mountain into the city was preserved, aligning with the irregular east-west orientation of the site, leaning against the mountain and adjacent to the road, following the natural flow.

建筑与山的体块关系示意

山之形。在金邦广场对面,郁郁葱葱的绿色屏障和连绵的山地地形创造了一个风景如画的场景。设计团队选择了相对集约的形态策略,建筑主体藏入山坳,依山就势、错落连接,将原来山坳一侧的陡直化为有节奏的退台;沿着入城山脉的西侧,运动区建筑体平铺般倚山面城,用长而低的体量护住山体,延续其平缓的趋势。
山脉是建筑的背景,围抱校园,建筑群体量适宜,一部分有节奏地抬升、一部分自然放松地舒展开,整体塑造了金榜路东侧新的城市形态,空间开敞,姿态友好,校园景观、校园活动如画卷般连续地呈现给城市,自上而下展示自然与人、与城市积极融洽的图景。
The shape of the mountain. Across from Jinbang Square, lush green barriers and continuous mountainous terrain create a picturesque scene. The design team opted for a relatively intensive morphological strategy, adapting to the natural contours of the mountain and creating staggered connections. They transformed the steep side of the mountain hollow into a rhythmic terraced structure, with sports facilities extending like a spread-out cityscape against the mountain, using long and low volumes to shield and extend the gentle trend of the terrain. The mountain range serves as the backdrop, embracing the campus. The architectural masses are appropriately sized, with some rhythmically elevated and others naturally stretching out, collectively shaping a new urban form on the east side of Jinbang Road. From top to bottom, it showcases a harmonious tableau of nature, people, and the city actively integrating.
风过庭。新的校园建筑坐落在山洞内的集群形式中,各个庭院周边的开口互通,带来视线通透、便捷联系,山谷风顺坡而上,轻拂绿植,过庭穿廊,再由天井拔起。对流过程改善了当地春夏季节湿热气候的不利影响,引导林间新鲜空气进入校园,使得教室内外,清爽宜人。
各个庭院分设主题,并因地制宜配置活动场所,为学生们提供了课余交流的多样选择。景观庭院、架空空间、坡地平台铺满山坡,学生们在不同标高上下跑动,风雨无阻,享受着校园里的山地之乐,庭院之乐。
The wind blowing through the courtyard. The new campus buildings are situated in a clustered form within the mountain hollow, with openings around each courtyard facilitating clear sightlines and convenient connections. The mountain valley wind smoothly ascends the slope, gently brushing through the greenery, passing through courtyards and corridors, and rising through atriums. This convective process improves the adverse effects of the local hot and humid climate during the spring and summer seasons, guiding fresh forest air into the campus and creating a refreshing and pleasant atmosphere both inside and outside the classrooms. The courtyard spaces offer students various options for informal communication during their leisure time. Students can move freely at different elevations, enjoying the pleasures of the mountainous and courtyard landscapes regardless of wind or rain.
阳光顶。建筑在多个台地上架起、连接,整体校园形成一个具有充分可达性的观景平台群。在坡向城市的山脉西侧,不同标高的屋顶平台,适合远眺,也适合对望。
金榜路上的人们看着学校,在火车站旁的绿色山边,台地与屋面的错落、堆叠,塑造了多个环游路径,想像孩子们在课间自由地跑出教室,去到不同高度的平台眺望,一边是山,一边是城。
A terrace integrated with nature. The buildings are erected on multiple terraces, interconnected to form a campus that serves as a panoramic platform with excellent accessibility. Located on the western side of the mountain facing the city, the roofs of various elevations create platforms suitable for both distant views and mutual observation. People on Jinbang Road can look at the school from the green mountain next to the train station. The staggered and stacked terraces and roofs shape multiple circulating paths. One can imagine children freely running out of classrooms during breaks, going to platforms at different heights to gaze out, with mountains on one side and the city on the other.
项目图纸

场地平面

1号楼一层平面图

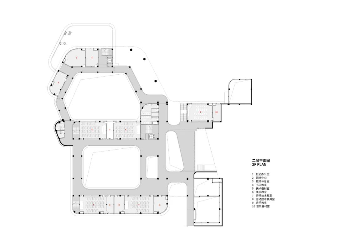
1号楼二层平面图

1号楼三层平面图

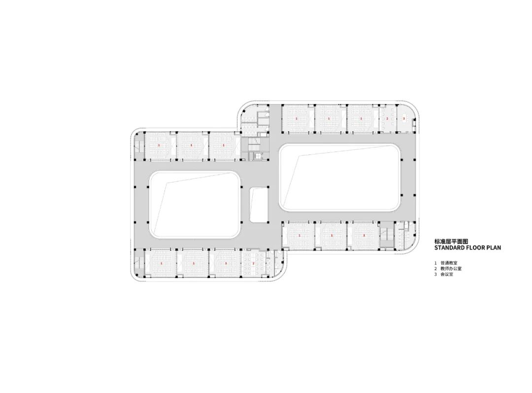
1号楼标准层平面图

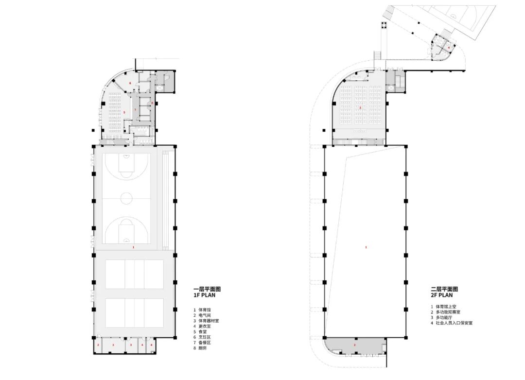
2号楼一层平面图

南立面

项目信息

项目名称:厦门市金榜小学

项目类型:建筑

项目地点:福建省厦门市

建成状态:建成

设计时间:2021.02-2021.11

建设时间:2022.01-2023.06

用地面积:21187.31平方米

建筑面积:19870平方米

建设单位:厦门市思明区教育局

方案设计单位:厦门合立道工程设计集团一院一致建筑工作室ONENESS STUDIO

施工图设计单位:厦门合立道工程设计集团五院

设计单位联系方式:orangegood@qq.com

代建单位:厦门建发城服工程管理有限公司

主创建筑师:郑思洋 魏伟

项目经理:黄哲威

建筑方案设计:陈茜颖,贺韬,许志钦,林仕超,余晨铭,李名泽,黄镇洲,王林祺

建筑施工图设计:柯森夏,陈健榕,黄晓聪,李仁义

结构:陈伟力,余金峰,林智寰,杨超,彭晨星

电力:汪启丁,陈德刚,李弘晟

给排水:陈超南,王旖岚

暖通:陈建胜,王琪

施工:中国建筑第八工程局有限公司

摄影师:罗联壁
更多精品 校园建筑
▼点击关注


9月25-26号·考察学习

杭州:高端住宅·新产品趋势

合院/排屋/院墅/叠墅/大平层

▼点击下图,了解报名

图片
本资料声明:

1.本文为建筑设计技术分析,仅供欣赏学习。
2.本资料为要约邀请,不视为要约,所有政府、政策信息均来源于官方披露信息,具体以实物、政府主管部门批准文件及买卖双方签订的商品房买卖合同约定为准。如有变化恕不另行通知。

3.因编辑需要,文字和图片无必然联系,仅供读者参考;


推荐一个
专业的地产+建筑平台
每天都有新内容
扫描二维码关注
图片

微信公众号“搜建筑”(ID:sjz9999)

合作、宣传、投稿

联系微信:soujianzhu006

搜建筑·矩阵平台

【声明】内容源于网络
0
0
搜建筑
关注全球时尚的、新的建筑资讯。
内容 10717
粉丝 0
搜建筑 关注全球时尚的、新的建筑资讯。
总阅读2.8k
粉丝0
内容10.7k