▲ 更多精品,关注“搜建筑”
140㎡处于首改与再改客群的交界点(一线城市属首改,二三线属再改),总价可控性强。相比竞品常见的120-130㎡三房,可以通过空间优化实现4房功能,形成错位竞争优势。
那么。万科在140平米这个面积段的产品设计:得房率、空间布局、动线规划、功能分区有什么创新?
万科140㎡的产品哲学:精准锚定改善型需求痛点,将户型从物理空间升维为「居住解决方案」
①独立电梯入户,私享前厅空间,注重入户私密性。
③ 空间利用率高,布局方正,没有空间浪费。
④ LDKB一体化设计,超大阳台。
⑤ 主卧套房设计更加人性化
01
电梯:达到独梯入户的归家效果
入户玄关:兼具仪式感与功能性
140㎡客群属 "功能改善型",核心诉求是 "总价可控下的空间效率最大化"。独立电梯厅带来的价值非常之高。
独立专梯归家入户意味着专属、独享、私密,而且将前室与玄关柜结合,设计可上锁的 "扩展收纳区"(计入产权面积),转化为实用价值。
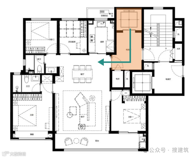
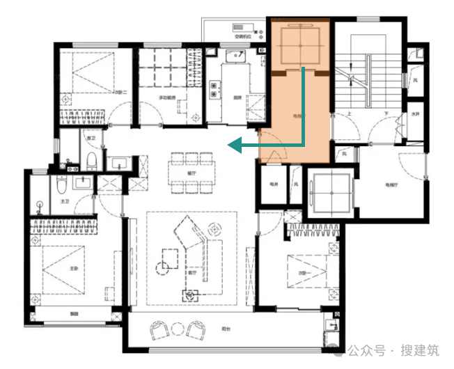
比如徐州万科·翠湾中城的户型设计,均设计有6-8㎡的独立电梯厅。建面约142㎡户型,电梯门开直接归家入户,与邻里保持友好距离,带来独特的尊崇感,贵客到访,朋友莅临,类似一梯一户的私密尊崇感受,彰显生活排场,尽享专属礼遇。

▲万科·翠湾中城建面约142㎡户型图
万科·翠湾中城社区大门约两吨重,近2000平入户前厅、对标北京柏悦酒店打造的约5米挑高入户大堂及石材组合拼花地面,搭配星级酒店办公休憩区,让回家的每一步都充满仪式感与尊贵感。
▲万科·翠湾中城实景图
外立面采用大面积玻璃搭配铝板、米白色石材设计,竖向+横向线条营造秩序感和轻盈感,全景落地玻璃,让自然光线与室外美景无缝衔接,展现出一种低调而奢华的美感。
▲万科·翠湾中城实景图
再比如南京万科·星耀都荟花园建面约140㎡户型,4房2厅2卫设计,相比传统住宅,独立私属电梯厅避开了嘈杂的环境,让生活更具安全性与私密感,是隐蔽室内空间的第一保障。
▲万科·星耀都荟花园建面约140㎡户型图
▲万科·星耀都荟花园客厅X空间示意图
02
大面宽、全景观的空间布局
如今,越来越多的户型产品注重面宽尺度的大小,大面宽代表着更多的采光、更好的通风、更佳的居住体验。
五面宽(南向五开间)设计作为改善型住宅的「空间革命」,正在重塑高端市场的产品标准。其价值不仅体现在感官体验升级,更深层次地解决了土地价值挖掘、功能场景适配、客户心理溢价等系统性问题。
五面宽设计已从单纯的空间创新,演变为「产品战略武器」。
比如苏州万科·锦上和风华苑建面约145㎡户型,南向5开间设计,横厅高达约6.1米,足足两个开间,而且3个卧室均朝南设计,格外增加空间的通透感。
▲万科·锦上和风华苑建面约145㎡户型图
03
LDKB一体化设计
放大公区,让空间布局更加合理
空间设计餐、厨、客、阳台一体化,已经成为大户型的标配,把空间利用到极致的同时,更在乎家庭成员间的互动情景,在无障碍的超大空间里自由交流,增进家人感情。
比如合肥伟星万科星遇光年建面约144㎡户型:作为改善型户型,144㎡的户型可能设计为四室两厅两卫,适合家庭成员较多的家庭。LDKB一体化其空间更为宽敞,能够满足更多的生活场景需求,如设置独立的书房或休闲区等。
▲伟星万科星遇光年建面约144㎡户型图
居住空间更加灵活多变,厨房、客厅、餐厅一体化格局设计,以及阳台配备的大飘窗,让空间布局更加合理,视野更加开阔,居住舒适度显著提升。
▲伟星万科星遇光年效果图
外立面采用了公建化的外立面设计,以银灰色与香槟金色为主色调,颜值与品质兼具。
▲伟星万科星遇光年效果图
合肥万科朗拾森屿建面约143㎡户型,作为项目中的明星户型,143㎡的户型只设置了三室两厅两卫,不仅拥有超大的居住空间,还保留了宽敞的公共空间。将餐客厅放在了极为重要的位置,让家庭公共活动空间均以“客餐厅”为核心向周边延展,形成家庭交流区。
▲朗拾森屿建面约143㎡户型图
客厅一侧的主卧是套房设计,带独立衣帽间和卫生间,兼顾私密与功能性。进深5.8米的尺度,超越片区内同等面积户型的进深尺度。
▲万科朗拾森屿 建面约143㎡样板间实景图
▲ 朗拾森屿布局图
▲ 朗拾森屿布局图实景图
沈阳万科·胤樾142㎡洋房户型做到了“负公摊”,不仅仅是加强版的”四叶草“结构,南向总面宽达到了约13.3米,做到了6米宽厅设计,三点五个面宽朝阳面采光。南北双阳台,南北通透,LDKB一体化设计,将工作室、茶室、儿童活动室、观景、观影等功能相融合。
▲万科·胤樾142平户型图
▲万科·胤樾样板间实景图
▲万科胤樾实景示范区
比如苏州万科东方雅苑建面约146平米户型,家政动线(玄关-家政间-厨房)与生活动线(客厅-阳台-卧室)分离,避免干扰。
▲万科东方雅苑建面约146㎡户型图
万科东方雅苑楼盘的建筑设计独具匠心,体现了现代与传统的完美结合。外观采用欧式建筑风格,线条流畅,造型精美。每一栋楼宇都经过精雕细琢,彰显着高贵典雅的气质。
▲万科东方雅苑效果图
04
主卧设计更加人性化
主卧套房作为改善型产品的核心价值点,需实现功能复合化、场景精细化、体验酒店化 的设计目标。
比如沈阳万科浑南新都心建面约145㎡户型的豪华主卧套房设计,分离式衣帽间+阳光梳妆台空间,约2米的进深,平衡进深功能分区;主卫功能性增强,收纳升级,超大容量镜柜、台面等,最重要的是270°飘窗的设计,最大化景观视野。

▲万科浑南新都心建面约145㎡户型示意图

▲万科浑南新都心实景图
结语
万科的140平户型产品成为其在城市主流市场收割改善客群的「战略武器」,值得同业在设计迭代与产品系规划中学习与借鉴。
10月·考察学习
天津 “全首层架空”新模式
洋房/叠墅/院墅/小高层
▼点击下图,了解报名
1.本文为建筑设计技术分析,仅供欣赏学习。
2.本资料为要约邀请,不视为要约,所有政府、政策信息均来源于官方披露信息,具体以实物、政府主管部门批准文件及买卖双方签订的商品房买卖合同约定为准。如有变化恕不另行通知。
3.因编辑需要,文字和图片无必然联系,仅供读者参考;
推荐一个
专业的地产+建筑平台
每天都有新内容
扫描二维码关注

微信公众号“搜建筑”(ID:sjz9999)
合作、宣传、投稿
联系微信:soujianzhu006


