▲ 更多精品,关注“搜建筑”
搜建筑【大门入口合集】系列,前几期我们分享了:
今天分享【大门入口合集】之——氛围感利器「星空顶」设计
如今,星空顶不仅已成为高端地库的标配,在社区入口门头设计中也获得了越来越广泛的运用。
星空顶,作为一种极具魅力的氛围照明,将现代科技与艺术结合,成为营造空间氛围的利器。它不仅体现了社区的高端定位与豪华品质,更为居住者带来了前所未有归家视觉享受。

1
平面式星空顶
平面式星空顶设计多为透光穿孔铝单板 ,将铝单板冲上不同孔径,再进行规则或不规则的组合排列,配上背面的灯光,形成一个星空图案的吊顶。
天津城投水西·东方天宸二期
归家门庭媲美隐奢度假酒店,酒店式落客区设计搭配超约40米流线型梦幻星空顶,气势恢宏。花好月圆的水景雕塑,如轻柔的乐章奏响归家序曲,匠心造极,重塑归仪。
▲实景图
武汉越秀·天悦文华
建筑设计:水石设计
景观设计:成都赛肯思创享生活景观设计股份有限公司
精装设计:菲洛米斯PHILOMIS、SUNS尚石设计
照明设计:bpi照明设计
照片摄影:武汉市嘉隽房地产开发有限公司、张鹏
社区入口结合景墙整合城市界面,化零为整,弱化地库出入口,打造近100米宽的形象昭示面,交互式景观迎宾界面和开放的入口空间,形成一条面向城市空间的超级界面。整体完整的形象进一步提升了项目的尺度感和气势,搭配黑金的色彩搭配,彰显沉稳气质。
▲入口
主入口处将空间放大,打造酒店式落客区,郁郁葱葱的植被环绕起到了视觉缓冲的作用,很好的保护了私密性,也让住户归家有富足的仪式感和领域归属感。

▲主入口氛围
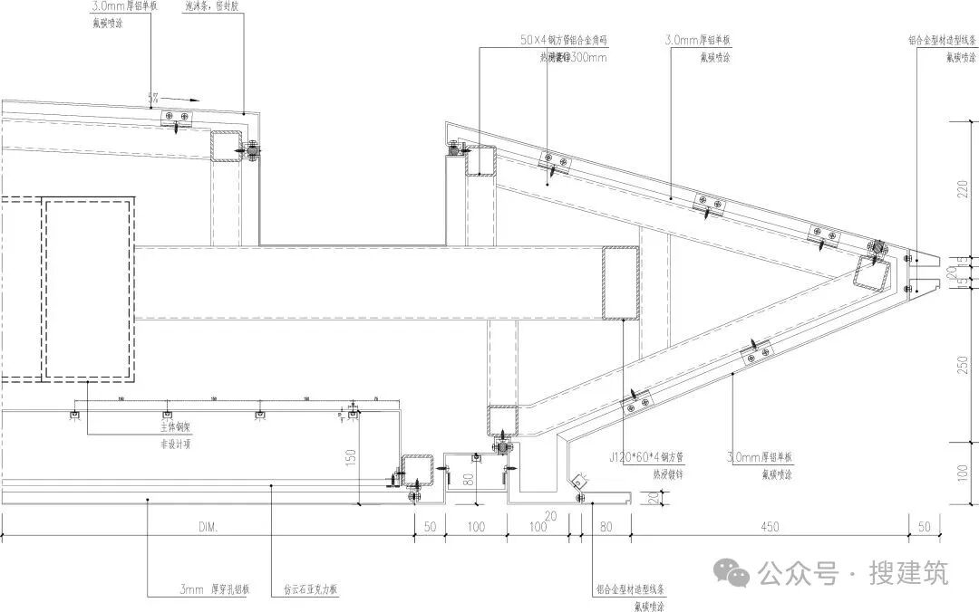
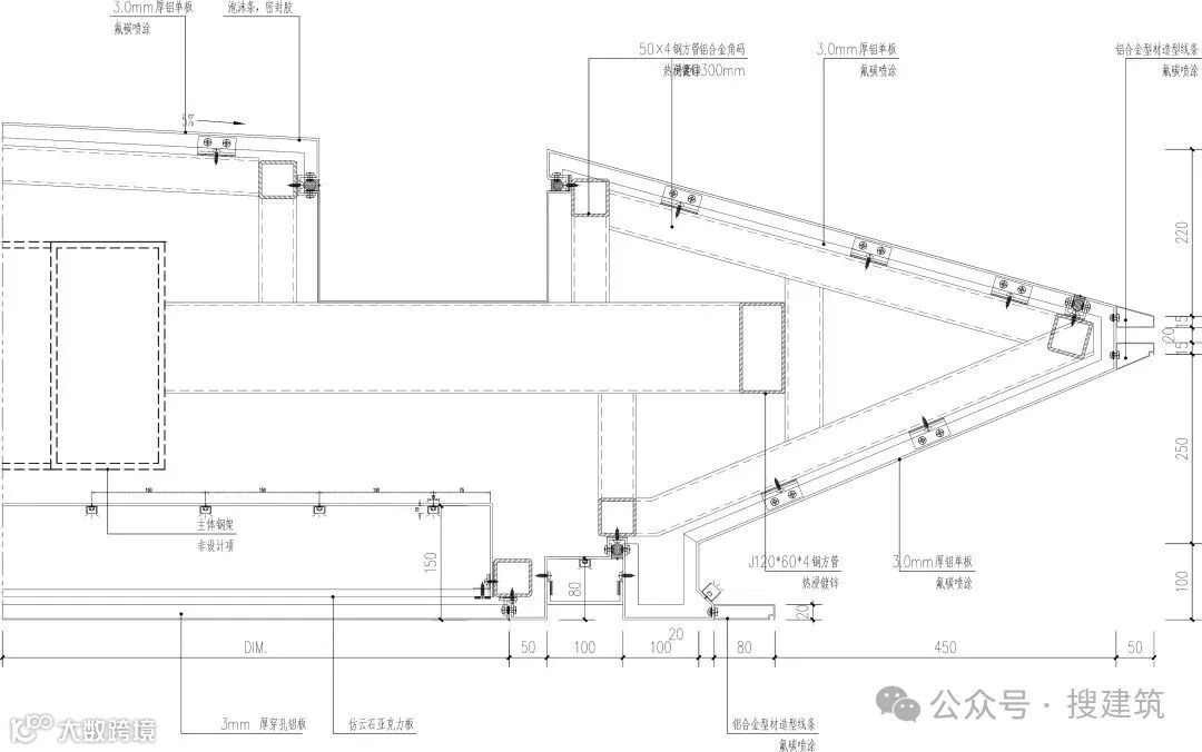
星光顶运用参数化设计,模仿宇宙星云的形式,结合入口金属帘形成渐变的星光图案。经过多轮尺寸推敲,穿孔板的最大尺寸控制在1324mm*2200mm,穿孔孔洞最大孔尺寸为50mm,孔最大间距为60mm,可避免穿孔板板块分隔及加强肋对穿孔图案的破坏。
▲材料分析
▲星光顶平面图

▲星光顶节点图
西安招商·揽阅
社区入口置身于2000平方米城市区域级的社区剧场之中,通过商业互动水景,公园自然草坪,社区休憩平台,共同营造大社区的活动生活剧场。
▲实景图
酒店式落客、无雨落客、入口景观中轴对称,共同打造入口的归属感及尊贵的仪式感。
▲实景图
西安南飞鸿·乐境雅荟
建筑设计:上海水石建筑规划设计有限公司
景观设计: 广州山水比德设计股份有限公司
景观施工:西安门安装饰设计工程有限公司、陕西赫泰园林景观工程有限公司
景观摄影:陈葵、广东新山水文化发展有限公司
星级酒店式高定入口挑高约5米,星空顶设计。外墙采用“豪宅御用大理石”普拉达绿奢石,搭配深灰色高端石材、精致玫瑰金属铝板,焕发出不同的华彩,江河鸣翠艺术雕塑、灵动水系、松风长歌互相映衬,呈现一道靓丽的城市界面。营造尊崇归家礼仪。
▲实景图
合肥龙湖·亚伦璟云上府
龙湖亚伦璟云上府大门,高约10米,展面约75米,灵感源自行云之翼,寓意业主步步高升,前程似锦。厦门W酒店同款银河星空奢石,颗颗璀璨灯珠镶嵌而成的璀璨星空顶;原产自巴西的璀璨年华奢石;泰山甄选的约6米高泰山松;长约21米、宽约4.5米的挑台叠水;入口建筑采用云翼线条、学士帽檐造型,寓意着云燕展翅高飞……
▲龙湖亚伦·璟云上府门庭实景
▲龙湖亚伦·璟云上府门庭星空顶实景图
▲示意图
惠州中海·龙湖·臻如府
项目名称:惠州中海龙湖臻如府
景观设计:ACA麦垦景观事业二部
建筑方案及立面设计:广州宝贤华瀚建筑工程设计有限公司
标识设计:柏熙标识
惠州中海·龙湖·臻如府入口约60m超尺度的界面,约9m的净高,与商业形成了九开间格局,九开间源于中国皇家建筑,“五进宅、九开间” 的建筑型制,是中国古建的最高格局,至高的尊贵感。
▲实景图
运用简练的设计语言,干净的线条,将景观与建筑完美融合为一个整体,尽显豪宅气质。归家动线营造五重归家礼序,尊享高贵府门礼序。
▲实景图
入口营造迎宾水景,叠水的形式以 “龙鳞”的形态演绎,考虑到很多小区都做不到24小时不间断的开喷泉,因此专门甄选巴西进口的黑金沙大理石整石打造入口水景,这种石材内部带有金色晶体,在阳光照耀下无水状态亦可呈现出金光闪闪的光芒,就像龙身上层层叠叠的鳞片一样闪耀。
▲实景图
武汉万科·锦绣湖山
示范区建筑设计: 致逸设计
交付区建筑设计:日清设计
示范区设计团队: 朱煜,林振方,熊家东
景观设计: 上海朗道
室内设计: 李玮珉、珠海明德
施工图设计: 长厦安基
照明设计: 上海城市之光
幕墙设计: 浙江中南建设集团有限公司
建筑摄影:赵奕龙
▲V形入口立面用材解析
▲星空顶的细节演变
▲灯带星空顶与香槟色金属构件
成都中交·锦江颂
景观设计:蓝调国际
建筑设计单位:上海天华建筑设计有限公司
摄影单位:EN-STUDIO
酒店式环岛仪式满满,高奢门庭:普拉达绿奢石点缀,六根金属廊柱装饰,星空吊顶,每一步都是尊崇。
▲中交·锦江颂美学示范中心实景图,非最终交付标准
成都中国电建·国宾华曦府
古铜色巨幅星空穹顶,形成视觉中心,以空间的多维广度,营造着随日月光影变化的前庭礼序。
▲入口实景图
创新星空顶:区别于传统的星空顶设计,项目星空顶的肌理设计,融入了国宾华曦府专属的项目logo图形,通过重新组合衍化,形成了菱形的基本肌理。
通过对穿孔大小及穿孔率的参数化控制,形成了由中心向两翼延展的渐变效果,让星空顶的效果随着飞檐的环抱展开形成极富动感及韵律的效果。
▲国宾华曦府项目专属logo
▲国宾华曦府项目专属logo元素提取与重组
▲国宾华曦府项目专属logo星空顶肌理布局
在方案落地深化过程中,考虑到星空顶特殊的高度,单元拼接的尺度也对整体呈现的感观有所影响,在保证穿孔率按照相同比率且满足照明需求的同时,拼接单元的尺寸也做了不同的对比,最终实现了大气又不失肌理感的星空顶效果。
▲国宾华曦府项目专属logo星空顶肌理单元尺寸比较
▲国宾华曦府项目专属logo星空顶呈现效果
南通招商·通州府
长约130米、高约6米的恢弘城市形象门庭,融合宝格丽酒店式洄游落客区、服务式迎宾楼、“银河顶”门楣、地面水磨拼花,均以高配材质臻造,直接将仪式感&质感拉满。
▲实景图
青岛中巍·云山墅
建筑设计|上海日清建筑设计有限公司
设计总负责|宋照方
项目负责人|王克文
设计团队|张婷婷 申宸宇 汪晔 薛凌峰 文素彬 冯波 邓雨
施工图设计|北京中健和华建筑设计有限公司山东分公司
景观设计|上海纬图景观设计有限公司
样板间精装设计|梁志天室内设计(北京) 有限公司上海分公司
会所精装设计|南京名谷建筑景观设计有限公司
会所灯光设计|关永权灯光设计(北京)有限公司
延展约77.77米的超大跨度艺术门廊,由4根巨型钢柱支撑,两侧悬挑近18米,在这里,开放、共享与封闭、私密被重新定义,创造出一个既能满足居者隐私诉求,又能融入城市脉络、自然肌理的多功能空间。
▲设计手稿
▲实景图(图源:中巍云山墅)
▲施工现场与实景呈现
门廊顶棚满铺星空天幕,穿孔铝板通过参数化表皮设计,呈现中间密两边疏的灯光渐变效果。中央悬挂9*12米巨型龙鳞灯毯,由365块定制模块组成,作为廊下的主照明。
武汉城建·保利花语和岸
建筑设计:XAA冼剑雄联合建筑设计事务所
主入口利用有序对称的空间手法打造府系式小区入口,80米长的门楼,豪华大气,星空吊顶,流光溢彩。
重庆保利·拾光年雅颂
星级酒店式的大门,宽度达到了约53m的惊人尺度!约6m高的迎宾景墙上,铺满了从全世界精心挑选出的潘多拉灰、威尼斯棕天然奢石,头顶香槟金铝板+星空顶打造,归家尊崇感和仪式感拉满。
▲实景示范区
中国铁建·贵阳铁建城·黑钻
入口区大气庄重,营造仪式感,并以光影回廊延伸归家路线的景观体验,围合静谧廊道空间,给人们带来度假酒店式的归家体验。
▲实景图
成都中铁·拾贰宸
约71米宽、7米高的迎宾门头,高奢酒店式设计,加持星空顶,界面气场拉满。
▲实景图
门头立面采用爱马仕灰仿大理石砖+金属条装饰的结合,两侧为六块“保加利亚灰”的天然大理石坊门,再搭配立于门厅两侧的2棵香橼和6根朴树,气派十足。
2
立体式星空顶
立体式星空顶,采用立体模块化拼接,内嵌灯源,进一步增强了星空效果的层次感和立体感,而这样的工程耗时耗力成本也是成倍成倍的。
长沙万科·滨江一号
建筑设计:杰地建筑设计有限公司
照明设计:北京光湖普瑞照明设计有限公司
摄影:4U STUDIO
约36m宽、约9m高的奢阔面宽的翡丽门庭,以高级又松弛的形态刷新金融中心城市界面。约8m悬挑雨篷,挑高约4.8m,尽显高门大户的气势。
▲实景图
大门雨棚采用了规格尺寸较小的点光源安装于立体双曲线金属叶片型内部,呈现出如花瓣绽放般的效果,柔和闪烁的点光装饰了大门顶面的几何穿插形态,在光的映射下显的层次感十足,熠熠星光,更加表达了建筑的艺术性。
▲实景图
武汉招商·武昌序
建筑设计:霍普股份
景观设计 :广州山水比德设计股份有限公司
精奢酒店式大门设计,约70米大尺度超强界面、独特立体式星空顶、多种名贵奢石名树、独特斜面立体水景等等,营造豪宅归家的震撼力和尊贵感。
▲实景图
项目特邀请全国著名灯光设计大师朱海燕女士(关永权灯光设计)进行专门灯光设计 ,如此大手笔御用大师级团队来进行灯光设计,市场少见。
▲实景图
天津城投·东方紫宸
约50米宽,高约7米的奢阔门庭形制,搭配香槟金色辅以墨金蓝色调,庄重沉稳大气,恰似一幅精心绘制的东方画卷。
▲实景图
头顶超长星空顶璀璨夺目,营造出“5D”氛围的归家仪式感。专属定制的四根金蓝立柱,蓝色岩板配以古铜拉丝工艺不锈钢,采用成本每平米高达约1000元的热弯工艺重金打造,入口处两棵价值不菲的迎客松,透露着不动声色的矜贵,各处细节无不彰显其“全高定奢装”。
▲实景图
成都新绿色·曜玥台
社区大门宽约60米,以爱马仕灰石材+古铜金属打造景墙,烘托出极光月环水幕喷泉的艺术感,把成都5+2区域“卷大门”的传统在郫都区发扬光大。

▲实景图
成都龙湖西宸·御湖境
120M超长市政界面,切角绿化空间拉大横向展面和街角广场,极致轴线水景+碧湖水院空间+标志性定制雕塑,呈现归家礼序价值感。
▲实景图
入口大门长49M、高7M,色调以深色花岗岩为主色调,细腻的拉槽面与灰金色不锈钢结合,沉稳精奢,低调中尽显雅致。50米的沿街面气势恢宏,无比尊贵。菱形的星空幕墙,将夜晚的灯光转化为无数流动的星辰。
▲实景图
延伸阅读:
卷疯了!豪宅爆火出圈的——「星空顶」+「入口设计」
卷疯了!豪宅「星空地库」合集,竟然还有钻石星空顶……
洋房/叠墅/院墅/小高层
▼点击下图,了解报名
1.本文为建筑设计技术分析,仅供欣赏学习。
2.本资料为要约邀请,不视为要约,所有政府、政策信息均来源于官方披露信息,具体以实物、政府主管部门批准文件及买卖双方签订的商品房买卖合同约定为准。如有变化恕不另行通知。
3.因编辑需要,文字和图片无必然联系,仅供读者参考;
推荐一个
专业的地产+建筑平台
每天都有新内容
扫描二维码关注

微信公众号“搜建筑”(ID:sjz9999)
合作、宣传、投稿
联系微信:soujianzhu006



