▲ 更多精品,关注“搜建筑”
绿城 · 桂语安澜
CTD上海芊清
在天津空港,一座承载绿城理想与人居情怀的作品——桂语安澜,正从容绽放。它不仅创下市场的瞩目佳绩,更将图纸上的构想,悉数化为可触可感的品质实景。如今,社区大门与业主会馆已实景开放,一座国际金奖作品正从蓝图走进现实。今天,就让我们一同走进现场,感受这座“立体森林”如何以空间叙事,重新定义天津的人居标准。
项目以1.2的超低容积率,精心规划了12栋8-9层一梯两户洋房及3栋四层叠拼。洋房舒朗排布于西侧,以一条“超级中轴”与双景观芯串联起社区的脉络。叠拼产品则自成体系于东侧,通过南北走向的林下绿洲与洋房和谐共生,在保有独立领域感的同时,巧妙地以景观消融了建筑边界。共同构筑了一个“一半花园,一半墅”的纯粹生活场域。
▶鸟瞰图
▶景观布局
面对独特的地块条件,设计团队提出了核心策略——“超级底盘”。通过全架空停车设计,将社区整体抬升约5.6米。这一创新之举,不仅彻底解决了一楼潮湿的传统痛点,更赋予了社区卓越的安全感与私密性。地库由“地下”变为“地上”,从而释放出宝贵的地面层空间,为超过2.1万方的立体园林及业主会所、多功能架空层等配套设施,提供了绝佳的承载基底。
【全架空停车设计】思路,确实是一个多赢的创新:
从设计角度: 彻底改变了传统社区的空间格局。实现彻底的人车分流,提升安全与静谧;重塑地面空间功能,回归“家园”本质;增强地库可视性与归家仪式感。
从开放商角度:节约成本与时间,提升资金效率。大幅度降低土方开挖与支护成本;缩短建设周期,加速资金回笼;简化施工流程,降低技术风险;提升产品溢价与去化速度。
从政府角度:推广此类设计理念,激励开发与优化城市管理。提升土地出让吸引力,激活土地市场;推动城市规划理念升级,社区地面层可以更好地与城市街道界面融合,营造活跃的沿街商业和公共空间,增加城市活力;绿色、低碳、以人为本的社区建设。
▶剖面示意
打造双重独立雨污分流,保障社区无忧排水.
▶双核排水系统
按照规范要求设置消防登高场地,和消防出入口,利用消防坡道下空间,设置非机动停车区。
▶剖面示意
平台设置防护栏杆,栏杆内侧设置绿化隔离带,在开阔视野中,构筑无形的安全边界。
▶立体防坠系统
依托于社区架空层的规划,我们打造了一条东西贯穿约120米的“超级中轴”。它将传统的归家路径,升华为一个极具仪式感与度假感的‘八进八景’体系。这沉浸式的归家体验,让功能与意境层层递进,使得每一次归家,都成为一场穿越风景的心灵旅程。
▶八重空间归家礼序
▶八重空间归家礼序
实地到访,最先感受到的便是社区大门带来的强烈仪式感。出入口是一个约66米宽、6.9米高、进深约13米的立体门庭,它与两侧架空层无缝衔接,形成了约180米的连贯界面,社区的大家风范,在现场一目了然。
▶主入口效果图
▶主入口实景
门庭之下,一座微型园林被浓缩于此,精选的原生泰山松虬曲苍劲,黑山石如峰峦卧立,叠水静若明镜,共同构成一幅立体的山河礼赞画卷。
▶安悦盈门实景拍摄
门庭两侧采用铂金钻整石搭配内嵌的翡翠奢石,结合竖向金属装饰条,于奢华之中尽显细节。整个墙体石材采用弧形内切工艺,呈现出宛如卷轴徐徐打开的褶皱质感。
▶实景拍摄
顶部铝板亦暗藏巧思,编织的金色琉璃板搭配千余盏琉璃灯挂帘,打造出波光粼粼的视觉效果;中间是定制的万字纹转印金属格栅,寓意“吉祥、万福、生生不息”,与地面的宝相花纹铺装遥相呼应,将美好的祝福,藏于门庭垂落的光影之间。
▶实景拍摄
穿过门庭,便步入一片开阔的下沉水院——逸澜庭院。设计取“汇水归堂”之意,水面之上错落的汀步似叶叶扁舟,右侧的船型雕塑名为“枕澜栖月”,寓意‘以波澜为枕,伴明月如梦’,为业主营造归家之初的安宁与美好。水院中栽种着两棵元宝枫与一株海棠,所谓‘枫映秋水,春栖海棠’,花叶颜色随四季流转,此处不仅是山水画卷,更是自然的灵动诗篇。
▶效果图
▶实景拍摄
穿过水院,便是高约10米、宽约9.9米的社区归家大堂。通体的玻璃幕墙与转角的弧形处理,让建筑远望如同三组晶体雕塑,在虚实交错的光影中,静静呈现当代建筑美学。
▶实景拍摄夜景
步入归家大堂,即进入了面积约1400平的业主会所。会所整体环绕中央下沉庭院——山水后庭设置,涵盖了归家待客、运动健身、知己茶话、亲子互动、办公阅读五大功能模块。室内设计采用【都市海派】风格,地面铺设丰富的石材拼花,墙面则综合运用了奢石、壁布、金属、木饰面等多种材质,营造出精致而温暖的氛围。所有空间均采用整面玻璃幕墙与庭院分隔,实现室内与户外的无界交融,确保在会所的每个角落,都能享受到充沛的自然光。
▶平面布局
▶效果图
▶实景拍摄
“全龄奢享”是安澜会馆功能设计的核心出发点,从孩童到老人、从喜静到喜动的不同人群,都能在这里找到专属的生活乐趣。真正的奢华感源于对细节的精确掌控与对空间情感的深度思考,让每一处设计都兼具美学张力、工艺精度与人性化关怀。
▶实景拍摄(观景书吧)
▶实景拍摄(邻里欢谈)
▶实景拍摄(归家通道)
被大堂和会所包裹的中央庭院【叠澜雲谷】,面积达620平。设计灵感源于北宋画家郭熙的【三远法】之【平远法】,以缓坡、片石、疏林、静水铺陈出一片空阔淡远的画境。下沉庭院的侧面,一条名为【观澜景廊】的风雨连廊连通着大堂与泳池会所。廊道一侧的立柱,将空间划分成连续的段落,行走其间向外望去,庭院景致被剪裁成一幅幅流动的框景画作。
▶效果图示意
▶效果图示意
在健身区和泳池顶部,还特意打造了一个【四季花厅】。在这个独特的空间里,得以栽种北方罕见的植物,营造出一片常绿的微气候环境。同时,这里也是孩子们的‘雨林学堂’,让自然教育与探索的乐趣,无缝融入日常的生活场景。
▶效果图
▶效果图
建筑外立面采用宽幅玻璃,营造出轻盈、现代的视觉质感。横向线条的通透设计,形成了超大的窗墙比。顶部轻盈外挑的屋檐,让建筑天际线更显柔和舒展。设计中更植入“空中浮岛”基因,通过奇偶层露台的错跃生长,与外挑的玻璃栏板空中院落,构成了一个个悬浮的“玻璃盒子”。这不仅让每户都拥有一个“空中小院”,更使整个建筑群宛如一座向上自然生长的‘立体森林’。
▶洋房立面
▶叠拼立面
“洋房花园化”/“空中平墅”: 中部洋房及叠拼普遍拥有双层挑高空中庭院;洋房首层配备下沉庭院或首层庭院,实现“有天有地”。标准层亦享丰富立体空间。
“叠拼独栋化”:立体动线设计确保4户业主独立归家,互不干扰。下叠享下沉庭院+二层外挑露台;上叠拥首层双层挑高露台+屋顶露台。户户拥有景观小院、归家小院、空中庭院,立体景观层次丰富,私密性及尊享感大幅提升,远超传统叠拼。
▶叠拼示意
▶下沉庭院效果示意
洋房(79-118㎡)均为三室两厅,超越期待的空间尺度,超高的得房率(90%-98%),打破传统户型的空间桎梏,,以118㎡平户型为例,南向三开间设计,客厅开间达到约6.6米,超宽横厅与餐客厨一体化布局,让空间更显通透。

▶103㎡户型图
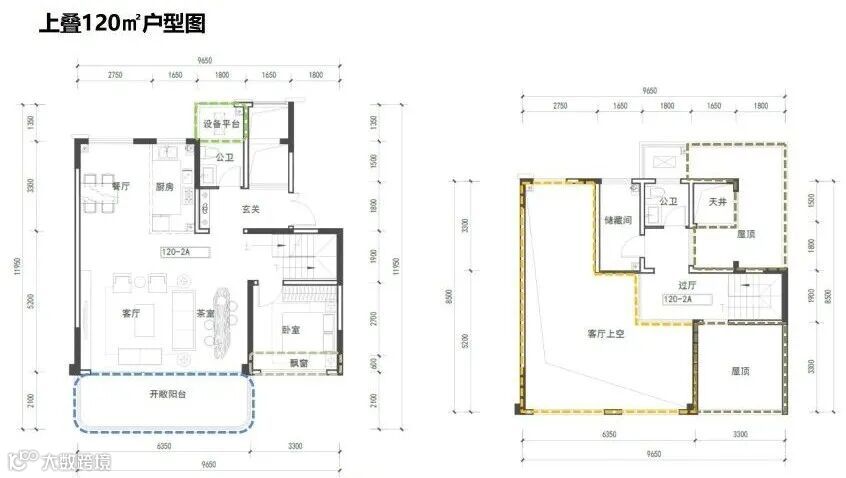
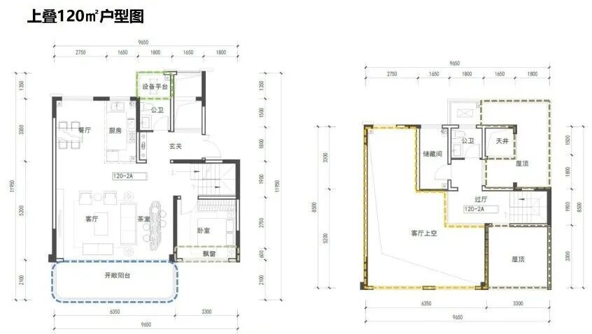
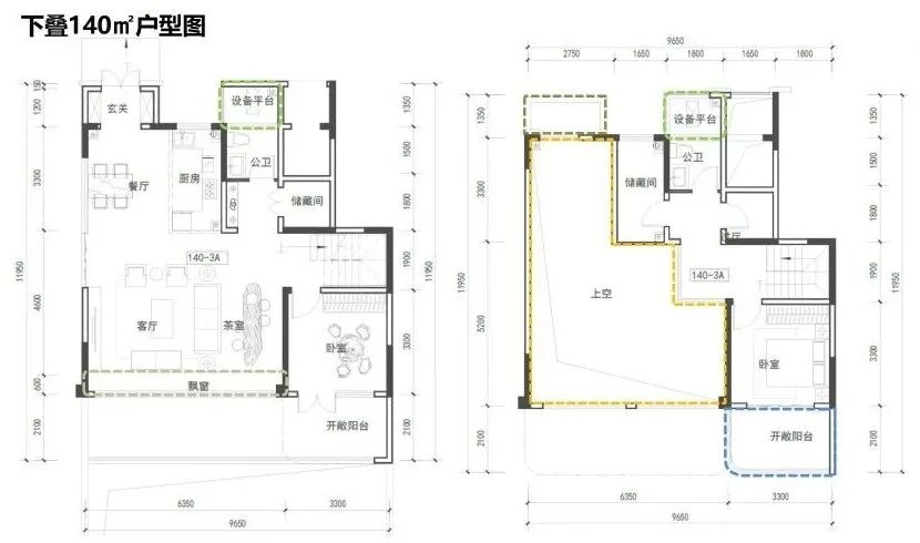
叠墅(下叠约140㎡,上叠约120㎡)立面灵动多变,空间体验卓越。
创新建筑手法(错挑、外跨、借用、层叠)显著提升得房率:叠墅达120%-200%。完美契合新一代低密产品对“有天有地、独立归家、南向大面宽、避免对视、强大社交空间、强烈园林感”的核心诉求。
▶下叠140㎡户型图

从宏观的规划布局到微观的归家体验,从创新的产品形态到复合的生活配套,CTD上海芊清设计以全方位的思考与持续的设计革新,重新定义了天津的人居标准。桂语安澜不仅是一个住宅项目,更是一个自然、建筑与生活共融的有机生命体。真正的好设计,能超越居住本身,成为滋养生活的容器。经得起图纸的推敲,更经得起实景的品鉴。绿城 · 桂语安澜,正是CTD上海芊清献给这座城市的一份设计答卷。
项目档案
项目名称:天津绿城·桂语安澜
项目地点:天津
用地面积:32907.1㎡
建筑面积 :71958.29㎡
施工图设计:黄河,范鸿远,马征,游新辉,杜肖东
景观设计:张轩,张麟,田梦涵,易伟林,喻树祥,王超敏,时婷婷
12月11-12 杭州:“创新抬升地库”新模式
12月19-20 天津:“地上架空车库”新模式
洋房/叠墅/院墅/小高层
本平台声明:
1.本平台为建筑设计技术分析,仅供欣赏学习。
2.本资料不视为要约,所有政府、政策信息均来源于官方披露信息,具体以实物、政府主管部门批准文件及买卖双方签订的商品房买卖合同约定为准。如有变化恕不另行通知。
3.因编辑需要,文字和图片无必然联系,仅供读者参考;
微信公众号“搜建筑”(ID:sjz9999)
合作、宣传、投稿
联系微信:soujianzhu006



