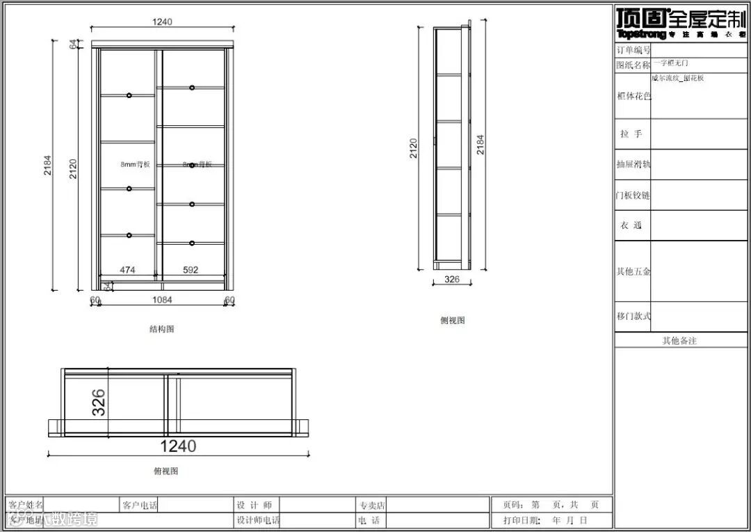
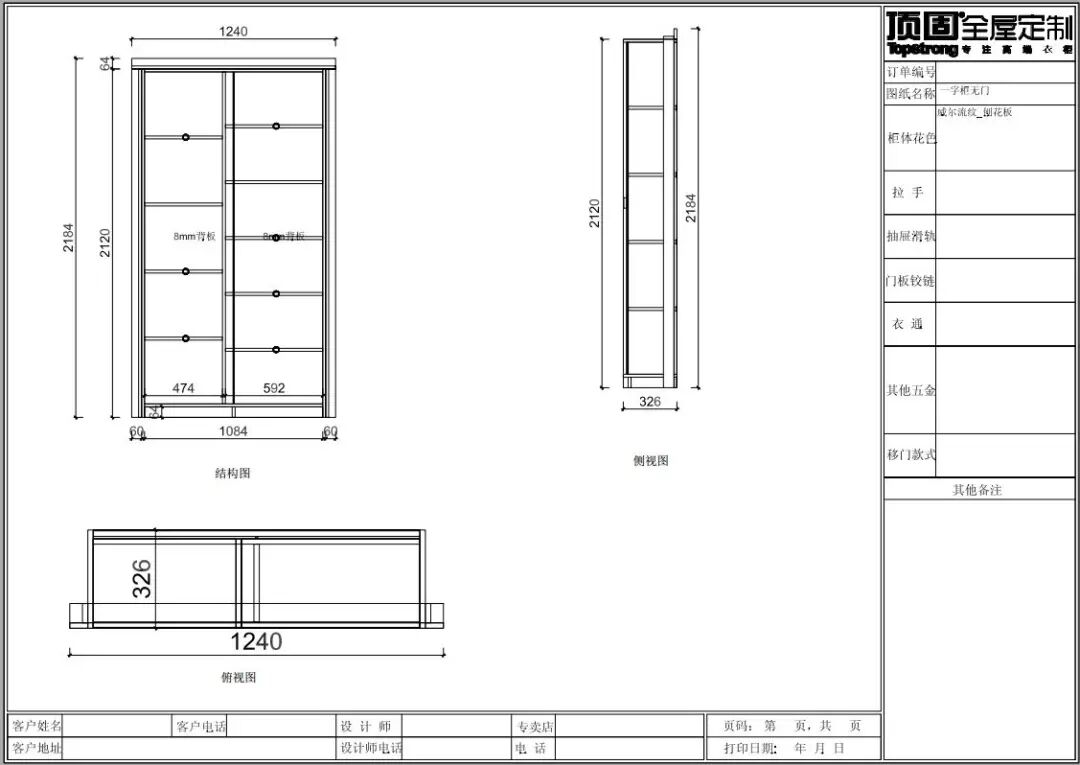
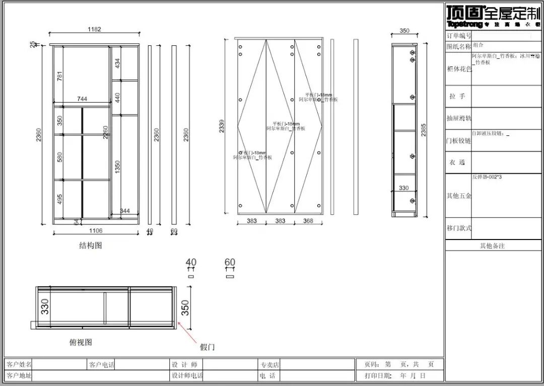
出图包括结构图、侧视图、俯视图;
结构图上标总高、内空宽、总宽,不作多余标尺;
侧视图上标高度(可不标)、深度透视出内部结构;
俯视只标总宽、柜深(板件深),不作多余标尺;

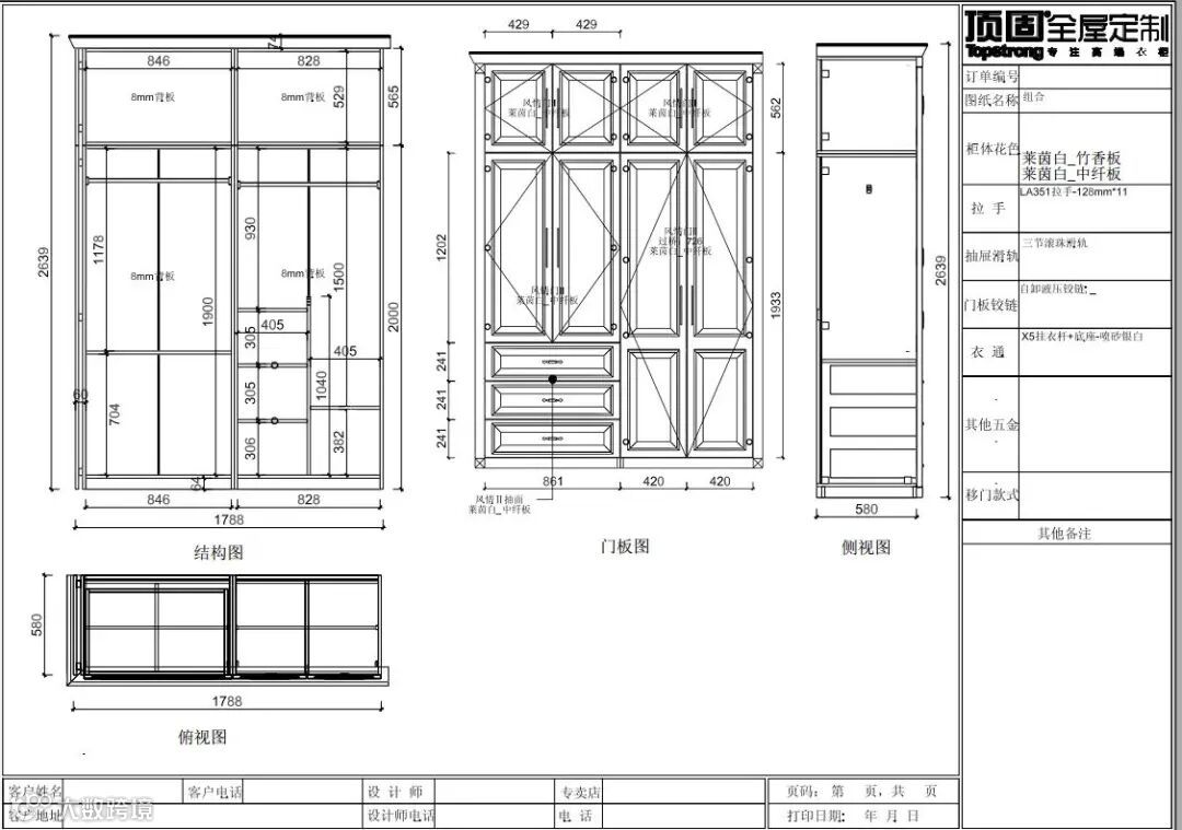
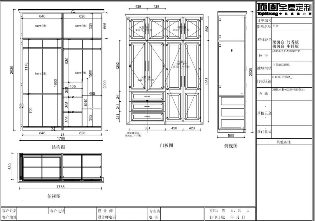
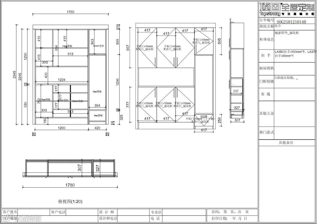
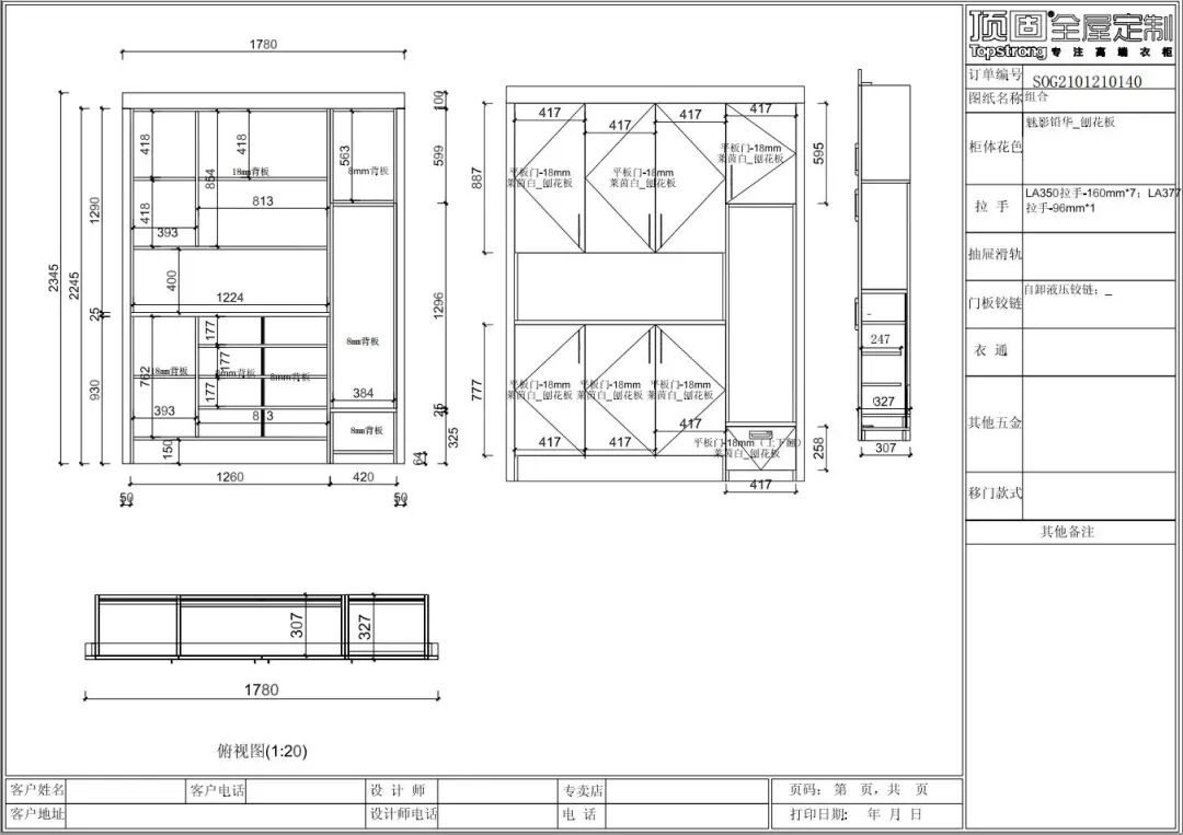
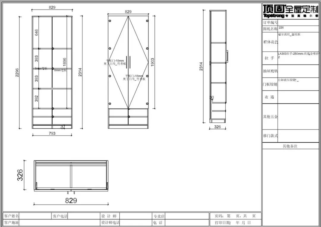
结构图上标总高、内空宽、总宽;图上结构中竖板高要标、门板内部内空高要标,其余内空处不作标尺;
门板图上需要标出门高度、宽度,快速检查是否符合工艺,门板型号、颜色;
侧视图上标高度(可不标)、深度透视出内部结构,快速检查出结构有无内缩;
俯视只标总宽、柜深(板件深),不作多余标尺;
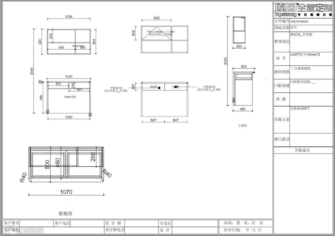
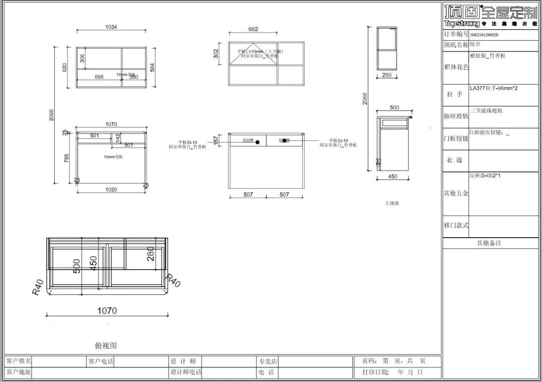
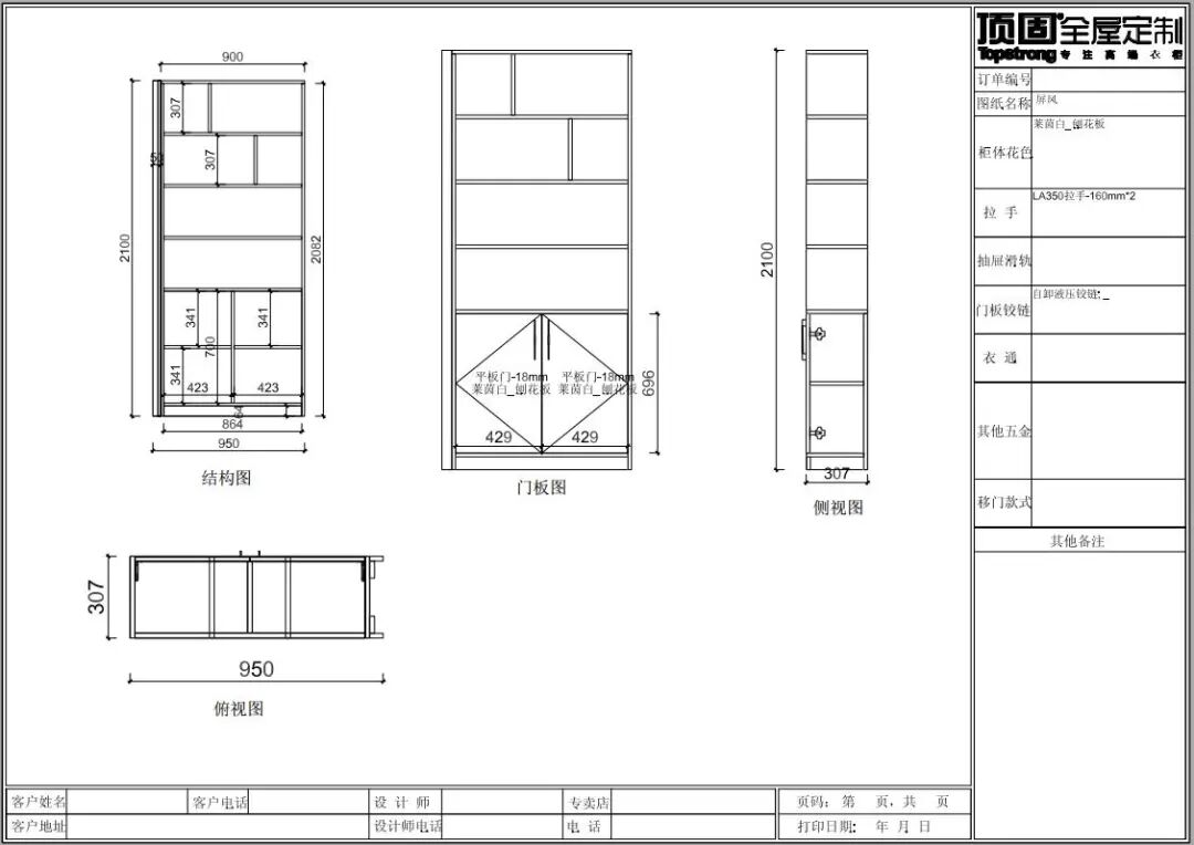
结构图上标总高、内空宽、总宽;图上结构内部中竖板高要标、门板/抽面内部内空高要标,其余内空处不作标尺;
门板图上需要标出门板/抽面高度、宽度,备注门板信息、过桥位置,快速检查是否符合工艺;
侧视图上标高度(可不标)、深度,透视出内部结构,快速检查出结构有无内缩;
俯视只标总宽、柜深(板件深),不作多余标尺;

结构图上标侧板高、内空宽、总宽;图上内部中竖板高要标、门板内部内空高要标,其余内空处不作标尺;
门板图上需要标出门高度、宽度,备注门板信息(注意翻门是否要支撑杆);快速检查是否符合工艺;
侧视图上标高度(可不标)、深度,透视出内部结构,快速检查出结构有无内缩;
俯视只标总宽、柜深(板件深),不作多余标尺;

结构图上标侧板高、内空宽、总宽;图上内部中竖板高要标、门板内部内空高要标,其余内空处不作标尺;
门板图上需要标出门/抽面高度、宽度,备注门板/抽面信息;快速检查是否符合工艺;
侧视图上标高度(可不标)、深度,透视出内部结构,快速检查出结构有无内缩;
俯视只标总宽、柜深(板件深)、台面倒角值,不作多余标尺;

结构图上标总高、内空宽、总宽;图上内部中竖板高要标、门板内部内空高要标,其余内空处不作标尺;
门板图上需要标出门板高度、宽度,查看门板型号、颜色信息是否有误,快速检查是否符合工艺;
侧视图上标高度(可不标)、深度,透视出内部结构,快速检查出结构有无内缩;
俯视只标总宽、柜深(板件深),不作多余标尺;
结构图上标总高、内空宽、总宽;图上门板内部内空高要标,其余内空处不作标尺;
门板图上需要标出门板高度、宽度,如门宽有出现小数,同则标门板覆盖宽(含缝),查看门板型号、颜色信息是否有误;快速检查是否符合工艺;
侧视图上标高度(可不标)、深度,透视出内部结构,层板特殊后内缩,在图上量出位置。
俯视只标总宽、柜深(板件深),不作多余标尺;
注意事项
一字柜出图、标尺可参照以上案例,目的要做到保持图纸简洁、清晰、规范;我们设计出图时要举一反三,万变不离其宗,致力于其图纸的标准化,美观化。
尺寸标注总高、宽、深,只标用到尺寸,多余尺寸不出现在图纸上,门板/抽面信息要注意是否有误,订单内花色是否正确。
最终目的要做到图纸简洁、清晰、规范、标准,致力于其图纸的标准化,美观化。
实际以软件操作为准,如存在问题或疑问可及时联系咨询组或相关群进行反馈解决。

