01
工厂土地信息
Kimsong Artiwood工厂出售
位置
春武里府宝云赫马拉杰工业区
(WHA春武里工业区一区)
🔺距离春武里府是拉差宝云分区331号公路约4公里处
🔺紫色用地
地块特征
带有2栋建筑的长方形地块
宽116米,长132米
面积10莱,1颜,92平方哇(25.15亩)
距林查邦港28公里
距离素万那普机场106公里
距离莲花超市8公里
距离芭堤雅47公里
距离Piyavej医院4公里
距离罗宾逊宝云8公里
距离帕塔纳体育度假村11公里
适用于建造工厂、仓库、货仓。
售价2.5亿泰铢(约5357万人民币),可议价
02
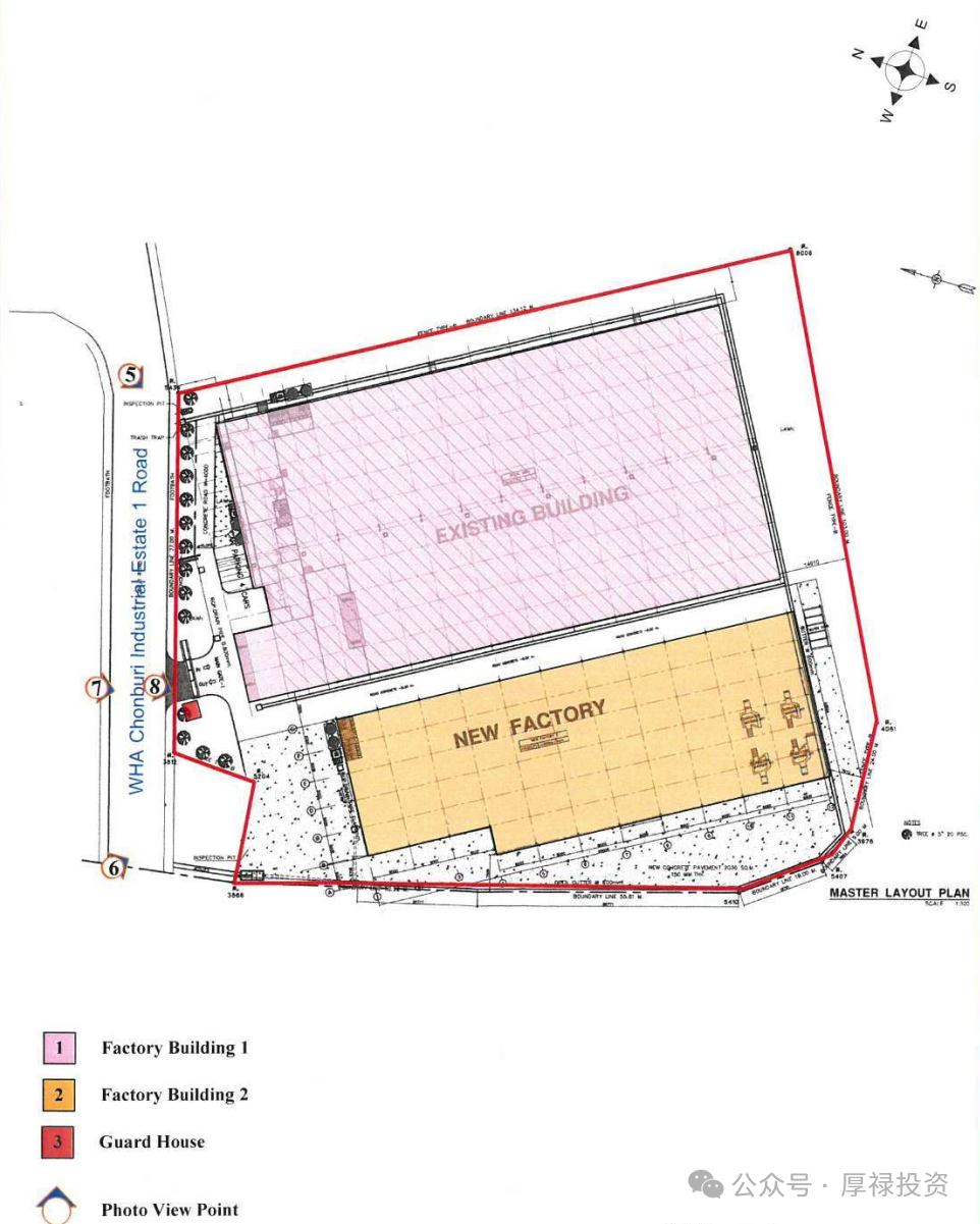
实地图
厂房一 总面积大约6840平方米
厂房二 总面积大约4068平方米
警卫室 总面积大约12平方米
实地图
·END·
咨询或购买
欢迎联系我们
厚禄投资介绍:
上海厚禄投资有限公司成立于2015年,主营科创板PE股权投资业务。早年从事上市公司重组并购业务,在业内获得良好口碑及佳绩。
2025年厚禄投资与见华国际携手设立泰国办公室,致力于为中国企业出海泰国投资设厂,包括泰国工业用地买卖,BOI申请等。
BP投递:quain.zhong@glbfinance.net
咨询热线:021-63332362

